
Predaj domu 6+1 • 139 m² bez realitkyRotkehlchenweg 134 Wiesbaden-Nordenstadt Nordenstadt Hessen 65205
Ponúka sa novým, starostlivo udržiavaným, láskavo vybaveným a energeticky úsporným riadovým stredovým domom s tepelno-vzduchovým čerpadlom v veľmi výhodnej lokalite Wiesbaden-Nordenstadt.
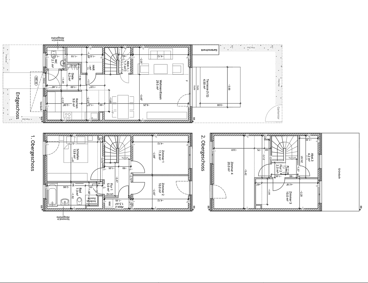
Dom okrem svojej premyslenej dispozície s celkovo 6 izbami zaujme aj peknou južne orientovanou terasou a starostlivo upravenou, nenáročnou záhradou vrátane praktickej záhradnej skrine.
V prízemí má váš nový domov – okrem modernej vstavané kuchyne – útulný obývací a jedálenský priestor. Odtiaľ sa priamo dostanete na slnečnú terasu a do peknej záhrady. Prízemie je navrhnuté priestranne a otvorene – varenie, stolovanie a bývanie tvoria komunikačné centrum rodinného života. Veľké posuvné dvere harmonicky integrujú záhradu do obývacej časti a vytvárajú svetlú, priateľskú atmosféru. Dvere až k stropu v celom dome dodávajú mimoriadne príjemný a priestranný pocit.
Na prvom poschodí sa nachádza kúpeľňa s prirodzeným osvetlením, vybavená vaňou a bezbariérovou sprchou, spálňa a ešte dve izby.
Druhé poschodie – úplne bez šikmých stien – ponúka dve ďalšie izby, z ktorých jedna má takmer 20 m² a je ideálna ako domáca kancelária, izba pre hostí alebo individuálne využiteľný obytný priestor. Okrem toho sa tu nachádza jeden z celkovo troch praktických úložných priestorov domu. Či už ako pár alebo rodina – na dvoch horných poschodiach si každý nájde svoje osobné útočisko a aj hostia môžu byť komfortne ubytovaní.
V prízemí sa nachádza aj technická miestnosť domu s moderným kúrením na báze tepelno-vzduchového čerpadla, ktorá zároveň poskytuje ďalší úložný priestor.
Pôdorys je dokonale prispôsobený potrebám rodiny: 139 m² obytného priestoru na troch úrovniach, rozložených do 6 izieb, ponúka rôznorodé možnosti využitia. Detská izba, pracovňu, herňa alebo izba pre hostí – tu si každý nájde priestor pre svoj rozvoj.
Vitajte vo vašom novom domove!
Bývanie v novozastavanom území Hainweg vo Wiesbaden-Nordenstadt!
Novozastavané územie Hainweg v obľúbenom wijsbadskej časti Wiesbaden-Nordenstadt spája bývanie v blízkosti prírody s mestským komfortom a vynikajúcou dostupnosťou v rámci metropolitnej oblasti Rýn-Majn.
Tu si vychutnáte pokoj moderného, rodinne priateľského obytného prostredia s bezprostrednou blízkosťou polí a zelenej plochy – a pritom využijete veľmi dobrú infraštruktúru a krátke cesty do centra Wiesbadenu.
Kvalita života medzi prírodou a mestom:
Nordenstadt patrí k žiadaným obytným lokalitám v oblasti Rýn-Majn a spája historický šarm s modernou kvalitou bývania.
Dom sa nachádza v mimoriadne rodinne priateľskom prostredí: tri materské školy sú v bezprostrednej blízkosti. Rovnako aj moderné domov pre seniorov, umiestnený v blízkosti veľkého ihriska – kde sa prirodzene stretáva mládež so staršími a vzniká tak živé, ustálené obytné prostredie.
Priamo pri ihrisku, na začiatku Hainparku, vás láka zmrzlináreň s veľkou slnečnou terasou na oddych – obľúbené stretnovacie miesto v danej štvrti.
Rozľahlé polia a pešie aj cyklistické trasy začínajú v pešej vzdialenosti od domu a ponúkajú ideálne možnosti na oddych. Ponuka voľnočasových aktivít je široká: futbalový klub, dva tenisové kluby (T2 a TC Nordenstadt), niekoľko fitness centier a aj hudobný klub poskytujú množstvo aktivít. Rovnako sú rýchlo dostupné aj oblasti Taunus, Rheingau a obľúbený Opel-Zoo.
Infraštruktúra – všetko v bezprostrednej blízkosti:
Nordenstadt ponúka vynikajúcu lokálnu infraštruktúru s krátkymi cestami:
Nakupovanie & zásobovanie:
• Aldi, Lidl, Netto, Globus, Rewe
• dm drogerie
• Pekáreň Lüning
• Ďalšie obchody, banky a poskytovatelia služieb
Zdravie & starostlivosť:
• Praktickí lekári a špecialisti
• Lekáreň a zdravotné centrum
• Nové DRK senior centrum s mnohými ponukami, vrátane fyzioterapie
Rodina & vzdelávanie:
• Tri materské školy
• Základná škola na mieste
• Stredné školy vo Wiesbadene
Voľný čas & šport:
• Športové centrum (tenis, fitness, plávanie)
• Športové areály, tenisové kluby, fitness centrá
• Ihriská a golfový klub
• Reštaurácie a gastro ponuky
Lokalita je ideálna pre rodiny, dochádzajúcich, páry aj seniorov.
Výborná dopravná dostupnosť:
• Diaľnica A66/A3: cca 2 minúty
• Centrum Wiesbadenu: cca 13 min (autobus), 15 min (autom)
• Centrum Frankfurtu: cca 25 minút
• Letisko vo Frankfurte: cca 15 minút
• Centrum Mainzu: cca 30 minút
• S-Bahn Hochheim: cca 13 minút
Frankfurt nad Mohanom, Mainz a letisko sú rýchlo dostupné.
Výhľad do budúcnosti:
Plánovaná rýchlodoprava „Wallauer Spange“ so stanicou S-Bahn v Delkenheime/Wallau ešte viac zlepší spojenie smerom na Frankfurt – čo predstavuje ďalšiu výhodu lokality.
Záver:
• Pokojná, prírodná poloha
• Rodinne priateľské prostredie
• Veľmi dobrá infraštruktúra
• Rôznorodé voľnočasové aktivity
• Optimálna dopravná dostupnosť
Tu bývate uvoľnene medzi zeleňou – a napriek tomu centrálne v oblasti Rýn-Majn.
- Veľký obytný a jedálenský priestor
- Moderná vstavaná kuchyňa
- Kúpeľňa s prirodzeným osvetlením vybavená sprchou a vaňou
- Samostatná toaletná miestnosť pre hostí
- Trojité izolačné okná a posuvné okná
- Dvere až k stropu na bežných poschodiach
- Masívna parketa (FSC certifikovaný ošetrený dub)
- Podlahové kúrenie
- Kvalitné obklady a sanitárne výrobky od renomovaných značiek
- Jednoduchý vstup do sprchy vďaka bezprahovému obkladu sprchy
- Domáca technická miestnosť
- 3 úložné miestnosti
- Záhradná terasa
- Nenáročná záhrada so záhradnou skrinkou
- Ekstensívne zateplená strecha so zelenou plochou
- Najmodernejšie pripojenie na high-speed internet (Vodafone)
- Riadový dom je reálne oddelený s terasou a záhradou
- Kúpna cena riadového domu: 759 000 € + 2 parkovacie miesta v podzemnej garáži (povinné): 40 000 € = celková kúpna cena: 799 000 €
Zodpovednosť: Upozorňujeme, že informácie, dokumenty, plány, výpočty rozlohy atď. pochádzajú od developera alebo zo stavebných podkladov. Za správnosť alebo úplnosť uvedených údajov či dokumentov sa nezodpovedá. Je preto na vás, aby ste overili ich správnosť. Ponuka nehnuteľnosti je bez záväzku a môže obsahovať chyby. Jedná sa o súkromný predaj.
Upozorňujeme, že pôdorysy nie sú mierkované.
Parametre nehnuteľnosti
| Vek | Nad 50 rokov |
|---|---|
| Stav | Veľmi dobrý |
| Číslo inzerátu | 996906 |
| Úžitková plocha | 139 m² |
| Celkové poschodia | 3 |
| Dostupné od | 4. 3. 2026 |
|---|---|
| Dispozícia | 6+1 |
| PENB | A - Mimoriadne úsporné |
| Plocha pozemku | 122 m² |
| Cena za jednotku | 5 748 € / m2 |
Čo táto nehnuteľnosť ponúka?
| Garáž | |
| Terasa |
| MHD 3 minúty pešo |
V okolí nehnuteľnosti nájdete
Stále hľadáte to pravé?
Nastavte si strážneho psa. Ponuky vybrané na mieru dostanete súhrnne 1× denne e-mailom. S Premium profilom máte po ruke rovno 5 strážcov a keď sa niečo objaví, informujú vás obratom.




































