
Predaj domu 5+1 • 149 m² bez realitkyHölderlinweg 39 Münster Hiltrup Nordrhein-Westfalen 48165
Hölderlinweg 39 Münster Hiltrup Nordrhein-Westfalen 48165MHD 4 minúty pešo • Parkovanie • GarážBez maklérskych poplatkov!
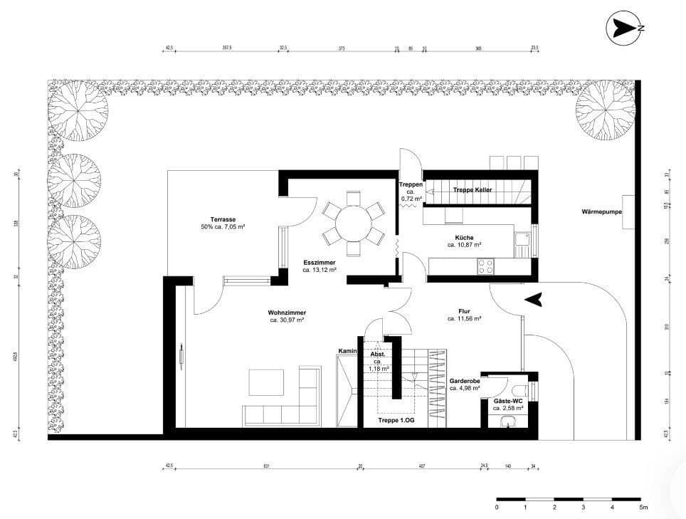
Tento rodinný dom, postavený ako riadový dom na rohu v obľúbenom záhradnom štýle Gartenhof (postavený v roku 1983), spája premyslenú architektúru s vysokou kvalitou bývania. Nachádza sa v ustálenej, rodinne prívetivej štvrti Münster-Hiltrup-West.
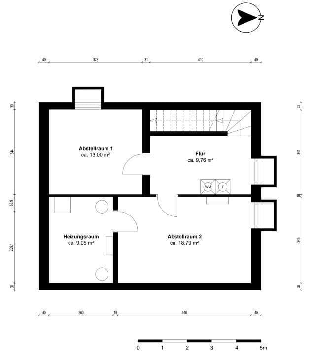
So skoro 150 m² obytného priestoru, priestranným pôdorysom a pivnicou s rozlohou približne 50 m², dom ponúka ideálne podmienky pre rodiny s až tromi deťmi a pre moderné pracovné požiadavky.
Bývanie s výhľadom a možnosťou úniku
Srdcom domu je svetlý obývací a jedálenský priestor v tvare L s pôsobivou šírkou 8,63 m. Kvalitná talianska mramorová podlaha so vstavaným podlahovým kúrením vytvára pocit otvoreného priestoru. Slnečná terasa je vybavená kvalitnými obkladmi a disponuje novou elektrickou markízou (2023). Vďaka rohovému umiestneniu majú všetky miestnosti maximálne súkromie a voľný výhľad do zelene. Pivnica ponúka dodatočný úložný priestor.
Flexibilné využitie – pripravené na pracovný svet zajtrajška
Vybavené podkroví je ideálne ako tiché domáce pracovisko alebo izba pre hostí. Priestorové oddelenie umožňuje sústredenú prácu a poskytuje vysokú flexibilitu pre budúce modely bývania a pracovného života.
Energeticky úsporný a pripravený na budúcnosť
Kvalitná izolácia strechy a fasády, dvojsklo okná a kompletná obnova vykurovacieho systému v roku 2024 (vzduchové tepelné čerpadlo, investícia cca 40 000 €) vedú k solídnej energetickej triede D (114,8 kWh/m²). Ďalšie opatrenia (okná, vetranie, fotovoltaika) sú voliteľné. K dispozícii je individuálny plán renovácie (ISFP) od nezávislého energetického poradcu.
Kvalitné vstavané prvky – hneď sa môžete nasťahovať
Zakázkové vstavané riešenia optimalizujú obytný priestor, najmä v 1. poschodí a podkroví. Nadčasová vstavaná kuchyňa značky Gaggenau, mierkovaná šatník, drevený krb, flexibilne upracovateľné mahagónové prvky v prízemí, vybavené detské izby, vstavané skrine v rodičovskej spálni a moderná kúpeľňa so stennými príborníkmi dopĺňajú ponuku.
Žiadaná lokalita – príroda, mesto a rodinný život
Dom sa nachádza v pokojnej hracej ulici – len 100 m od najbližšieho ihriska. Školka, základná škola a stredné školy sú bezpečne a rýchlo dostupné, rovnako ako možnosti nakupovania, autobusové zastávky (s intervalom 20 minút do centra Münsteru), športové kluby a rekreačná oblasť Steiner See.
Samotný Hiltrup, s viac ako 30 000 obyvateľmi, je najväčšou časťou Münsteru a ponúka výbornú infraštruktúru: vlastnú železničnú stanicu, priame napojenie na diaľnice (A1, A43), početné autobusové linky, modernú zdravotnú starostlivosť a širokú ponuku športových a rekreačných aktivít – až po golfový klub.
⸻
Zhrnutie: Nasťahujte sa – cíťte sa dobre – nič vám nebude chýbať
Tento udržiavaný, premyslený a už energeticky zmodernizovaný dom je okamžite k dispozícii. Spája kvalitu života s funkčnosťou a nachádza sa v jednej z najžiadanejších častí Münsteru.
A to najlepšie: Žiadna maklérska provízia!
Parametre nehnuteľnosti
| Vek | Nad 50 rokov |
|---|---|
| Stav | Dobrý |
| Číslo inzerátu | 996784 |
| Úžitková plocha | 149 m² |
| Celkové poschodia | 3 |
| Dostupné od | 16. 3. 2026 |
|---|---|
| Dispozícia | 5+1 |
| PENB | D - Menej hospodárne |
| Plocha pozemku | 322 m² |
| Cena za jednotku | 4 396 € / m2 |
Čo táto nehnuteľnosť ponúka?
| Pivnica | |
| Parkovanie | |
| Terasa |
| Garáž | |
| MHD 4 minúty pešo |
V okolí nehnuteľnosti nájdete
Stále hľadáte to pravé?
Nastavte si strážneho psa. Ponuky vybrané na mieru dostanete súhrnne 1× denne e-mailom. S Premium profilom máte po ruke rovno 5 strážcov a keď sa niečo objaví, informujú vás obratom.





























