
Prenájom bytu 2+1 • 74 m² bez realitky, Porýnie-Falcko
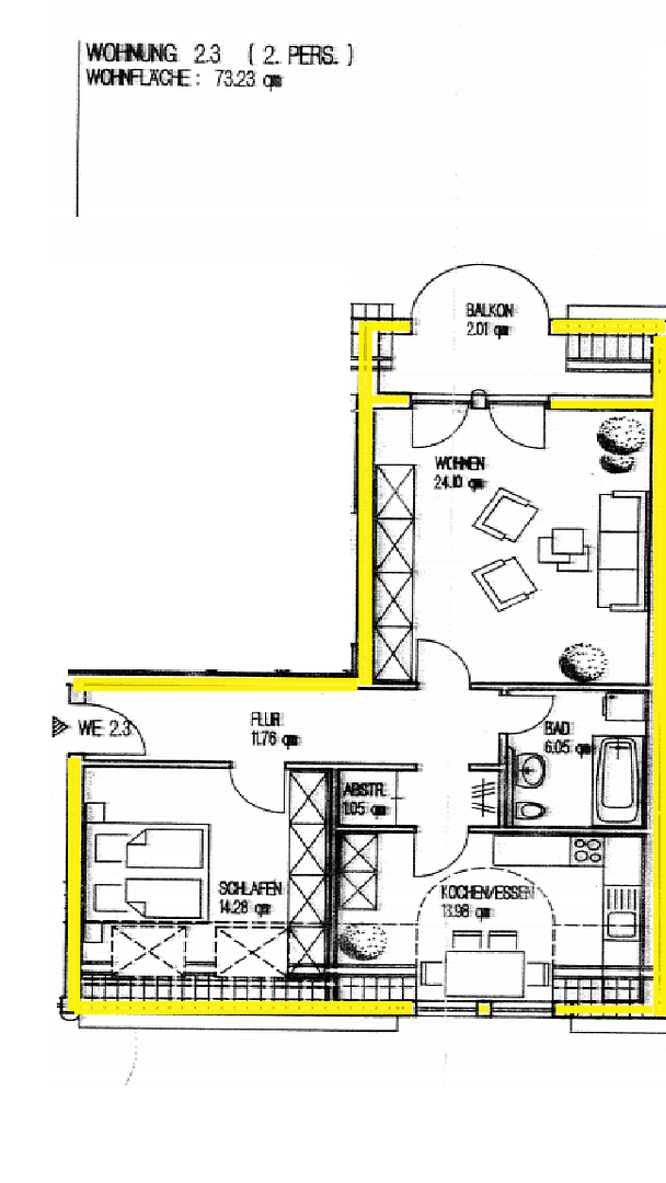
, Porýnie-FalckoMHD 2 minúty pešo • ParkovanieDobre dispozíciou navrhnutý 2 izbový byt s kuchyňou a kúpeľňou v podkroví.
Byt bol na jeseň 2020 čiastočne zrekonštruovaný.
Pri žiadosti o termín prosím vezmite na vedomie, že je potrebné priložiť seba-hodnotenie – podrobnosti nájdete v časti: Čo očakávame od nájomcu;
Chov zvierat
Z dôvodu veľkosti objektu (16 obytných jednotiek) nie sú psy povolené. Ozdobné vtáky, ozdobné rybičky, drobní hlodavci, ako aj výlučne v byte chovaná mačka, sú povolené.
Prehliadky
Piatok 07.03.2026 od 14:00 do 16:00
Prosím, dohodnite termín kontaktovaním e-mailom na uvedenú adresu.
Pri žiadosti nezabudnite na seba-hodnotenie!!
Pokojná poloha na okraji obce
Zabudovaná kuchyňa so umývačkou riadu - 100,00 € mesačne.
Balkón je čiastočne zakrytý (sklenená strecha).
Čo očakávame od nájomcu
V vyplnenej seba-hodnotení (ktorú si môžete stiahnuť) – uveďte úplné meno, súčasné bydlisko, rodinný stav, povolanie a informácie o aktuálnom pracovnom pomere – by ste sa mali vo svojej žiadosti predstaviť.
Rozpoznateľné, pomocou umelej inteligencie generované žiadosti budú ignorované.
Pre dohodnutie prehliadky sa okrem seba-hodnotenia / prihláškového formuláru očakáva aj uvedenie kontaktných údajov (e-mail a telefón). V prípade, že tieto údaje nie sú poskytnuté, nebude žiadosť spracovaná!
Parametre nehnuteľnosti
| Vek | Nad 50 rokov |
|---|---|
| Stav | Dobrý |
| Poschodie | 2. poschodie z 2 |
| PENB | C - Hospodárne |
| Cena za jednotku | 10 € / m2 |
| Dostupné od | 1. 3. 2026 |
|---|---|
| Dispozícia | 2+1 |
| Číslo inzerátu | 996357 |
| Úžitková plocha | 74 m² |
Čo táto nehnuteľnosť ponúka?
| Balkón | |
| Parkovanie |
| Pivnica | |
| MHD 2 minúty pešo |
V okolí nehnuteľnosti nájdete
Stále hľadáte to pravé?
Nastavte si strážneho psa. Ponuky vybrané na mieru dostanete súhrnne 1× denne e-mailom. S Premium profilom máte po ruke rovno 5 strážcov a keď sa niečo objaví, informujú vás obratom.



















