
Predaj domu • 239 m² bez realitky, Šlezvicko-Holštajnsko
, Šlezvicko-HolštajnskoMHD 2 minúty pešo • ParkovanieV centrálnom okolí mesta Heide sa tento viacrodinný dom prezentuje ako investičný objekt s rozvojovým potenciálom. Pôvodne postavený v roku 1920 ako roľnícky dom, bol objekt v roku 1983 prestavaný na viacrodinný dom so štyrmi obytnými jednotkami. Dnes sa predstavuje ako funkčná nehnuteľnosť s približne 239 m² obytných priestorov na parcele o veľkosti 924 m².
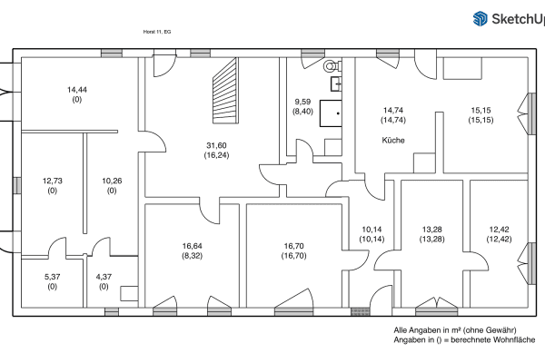
Štyri byty majú dispozície od 2 do 4 izieb s obytnými plochami približne 38 m², 54 m², 58 m² a 89 m². Všetky štyri byty sú spoľahlivo prenajaté a v súčasnosti prinášajú ročný nájomný príjem vo výške celkovo 21 870,00 €. To zodpovedá faktoru 18,1, prípadne hrubej výnosnosti okolo 5,5 %. Nájomné platby prebiehajú pravidelne a počas uplynulých rokov takmer nepretržite bolo objekt plne obsadený. Náklady na kúrenie a ostatné služby sú účtované transparentne a na základe spotreby. Na presné meranie spotreby tepla a teplej vody sú inštalované merače od firmy Brunata. Pre zimnú údržbu je zverená firma.
Vybavenie zahŕňa okrem iného aj plynové ústredné kúrenie značky Vaillant z roku 2018, ktoré okrem vykurovania zabezpečuje aj ohrev teplej vody. Kúrenie je každoročne udržiavané špecializovanou firmou. Plastové okná a dvere boli obnovené v roku 2017 a prispievajú k energetickej efektívnosti nehnuteľnosti. Antracitový dvojitý drôtový plot bol inštalovaný v roku 2022. Byty boli v posledných rokoch postupne modernizované (podlahy, kuchyne, dvere, kúpeľňové vybavenie, žalúzie a pod.).
V exteriéri zaujme objekt dlhá príjazdová cesta, samostatné záhradné priestory pre jednotlivých nájomníkov a spoločný prístrešok – ideálny pre bicykle alebo záhradný nástroj. Veľkosť pozemku zároveň umožňuje dostatočné súkromie a rôzne možnosti využitia vonkajšieho priestoru.
Ide o solídny investičný objekt s perspektívou zhodnotenia – či už pre držanie v portfóliu alebo ako východiskový bod pre budúce úpravy existujúceho stavu. Dokumentácia, ako sú stavebná správa, výpočet obytných plôch, pôdorysy, energetický preukaz aj pohľady, je k dispozícii a v prípade záujmu môže byť predložená.
Interiérové fotografie pochádzajú zo zodpovedajúcich odovzdaní bytov. Pre ochranu súkromia nájomcov vás prosím, aby ste pozemok nenavštevovali bez predchádzajúceho dohodnutia.
Nehnuteľnosť sa nachádza v centrálnom a dobre prepojenom okolí okresného mesta Heide – pulzujúceho menšieho mesta v srdci Dithmarschen s približne 22 000 obyvateľmi. Heide, ako regionálne centrum medzi Severným morom, močiarom a vyvýšeným územím, je atraktívnou lokalitou pre bývanie aj podnikanie s stabilným dopytom po bytoch.
Poloha objektu sa vyznačuje vyvinutou obytnou štruktúrou a ponúka príjemnú zmes pokojného bývania a blízkosti k ústredným zariadeniam. Pešo dostupné sú rôzne možnosti nákupov, reštaurácie, kaviarne, poskytovatelia služieb ako aj zdravotnícke a školské zariadenia – ideálne pre každodennú obsluhu. Vďaka blízkosti k centru obyvatelia profitujú z krátkych vzdialeností k najvýznamnejším častiam centra s veľkým trhoviskom, pešačkou zónou a kultúrnymi podujatiami.
Dopravné spojenie je veľmi dobré: Heide ponúka regionálne železničné spojenie so spoji vo všetkých smeroch (okrem iného do Büsumu, Neumünsteru a ďalej), čo uľahčuje dochádzanie a mobilitu. Verejné autobusové linky dopĺňajú ponuku v miestnej doprave. Vďaka blízkosti diaľnice A23 je Heide priamo napojené na nadregionálnu cestnú sieť, čo robí dochádzanie napríklad do Hamburgu alebo do okolitých obcí veľmi pohodlným.
Poloha spája stabilný dopyt po bývaní, dobrú infraštruktúru a krátke vzdialenosti – faktory, ktoré dlhodobo podporujú prenajímateľnosť a hodnotovú stabilitu tejto investície.
Parametre nehnuteľnosti
| Vek | Nad 50 rokov |
|---|---|
| Číslo inzerátu | 995966 |
| Úžitková plocha | 239 m² |
| Celkové poschodia | 2 |
| Dostupné od | 1. 6. 2026 |
|---|---|
| PENB | G - Mimoriadne nehospodárne |
| Plocha pozemku | 924 m² |
| Cena za jednotku | 1 653 € / m2 |
Čo táto nehnuteľnosť ponúka?
| Parkovanie | |
| Terasa |
| MHD 2 minúty pešo |
V okolí nehnuteľnosti nájdete
Stále hľadáte to pravé?
Nastavte si strážneho psa. Ponuky vybrané na mieru dostanete súhrnne 1× denne e-mailom. S Premium profilom máte po ruke rovno 5 strážcov a keď sa niečo objaví, informujú vás obratom.

















