Predaj domu 7+1 • 222 m² bez realitkyHorst 11, , Šlezvicko-Holštajnsko
Horst 11, , Šlezvicko-HolštajnskoMHD 5minút autom • Parkovanie • GarážPonúkame náš priestranný a udržiavaný rodinný dom s veľkým priestorom vnútri aj vonku, s rôznymi parkovacími možnosťami a aktívnym optickým pripojením – najmä bez makléra, t. j. bez provízie.
Potrebujete priestor? Potom je táto nehnuteľnosť presne pre vás. Využitie objektu je možné aj pre viageneračné bývanie alebo čiastočne ako dovolenkový objekt. Prenájom samostatného bytu sa tiež hodí, keďže obývací priestor je možné rozdeliť na dve jednotky. V priebehu rokov prebehli opakované modernizácie (okná, podlahy, kúrenie, kúpeľňa a podobne). Väčšina izieb je vybavená prírodnými drevenými podlahami alebo laminátom, zatiaľ čo chodby v prízemí sú obkladané dlažbou.
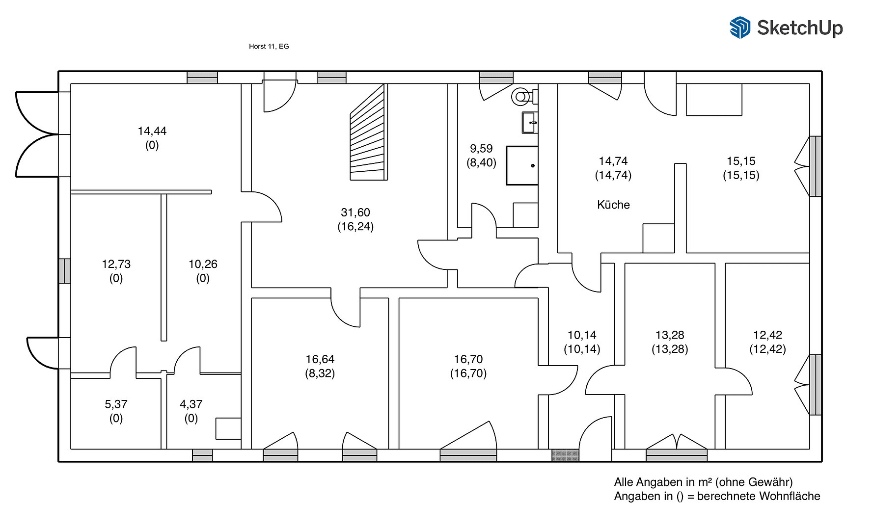
Do domu vstúpite zo severnej strany do veľkej predsiene s garderóbou a kútikom na pokec. Priestor susedí s izbou pre domáce práce, ktorá ponúka veľa miesta pre vaše zásoby a chladničky, s garážou a oddeliteľnou obytnou časťou prízemia. Odtiaľ sa pomocou drevených schodov dostanete do poschodia. Vedľa garáže nájdete malú dielňu pre dom a záhradu, ďalšie úložné priestory aj miestnosť pre kúrenie.
Vstupom do poschodia sa ocitnete v približne 40 m² veľkom štúdiu, ktoré by sa mohlo stať vašou novou obývacou izbou. Zo štúdia vedie východná izba s výhľadom na rieku Eider a ďalšia izba na západnej strane, ktorá sa vhodne hodí ako spálňa. Na poschodí sa nachádza aj malá sprchovňa a malá otvorená kuchyňa. Strecha so špicobytom bola zrekonštruovaná v roku 2004 a kompletne izolovaná.
V prízemí, orientovanom na juhovýchod, sa nachádza kuchyňa s novým kompletne vybaveným zariadením vrátane spotrebičov a jedálňou. Z južnej chodby vedie cesta do sprchovne s práčkou a sušičkou a do troch ďalších izieb, ktoré boli naposledy využívané ako izba pre hostí a kancelária. Prízemie má samostatný vchod zo južnej strany, ktorý vedie tiež na terasu, pavilón a do veľkej záhrady.
Náklady na kúrenie a prevádzkové náklady
=================
Prevádzkové náklady mesačne: ~ 185 €
Náklady na kúrenie mesačne: ~ 225 €
Poznámka: V prevádzkových nákladoch sú zahrnuté pozemková daň, poistenie budovy, voda, Eider-Treene-Verband, odpad, komínárske služby a údržba kúrenia. Výpočet nákladov na kúrenie je založený na trojročnej „non-stop“ kúrení pre roky 2023–2025 a vychádza oveľa priaznivejšie ako zákonom stanovený energetický prehľad zo 05.09.2021. Preberáte teda dom s úprimnou substanciou a prehľadnými spotrebnými nákladmi.
Vďaka vysokorýchlostnému internetu môžete spojiť prácu a voľný čas v jedinečnom prostredí prírody.
Kontaktovanie
============
V prípade záujmu nám, okrem vašich otázok a želaní, prosím, oznámte aj vaše celé meno, adresu, ako aj e-mailovú adresu alebo telefónne číslo prostredníctvom kontaktného formulára. Anonymné dopyty bohužiaľ nemôžeme zohľadniť. Prezliadky na vlastnú päsť bez predchádzajúceho oznámenia sú z ohľadu na obyvateľov výslovne neželané.
Mikroregión Horst sa nachádza pri rieke Eider v žiadanej tzv. Omega-srdci Dithmarschenu, pozostáva iba z približne dvoch desiatok domov, kde sa na dedinskej ceste príjemne stretávajú susedia. Deti si užívajú čerstvý vzduch a slobodu, školský autobus ich bezpečne dovezie do Hennstedtu a späť. Okolitá krajina je, okrem rieky Eider, poľnohospodárska s takmer nekonečnými lúkami a poliami.
Nákupné možnosti (supermarket a diskontný obchod), čerpacia stanica, pošta, baliaca stanica či všeobecný lekár a lekáreň nájdete tiež v Hennstedte, vzdialenom približne 4 km. Obec ponúka pre starších obyvateľov za malý poplatok shuttle službu na návštevy u lekára alebo na nákupy.
Hľadáte miesto na kotvenie pre vašu (budúcu) loď? V časti obce aj v susedskej obci sa nachádzajú miesta na kotvenie v marinách pri rieke Eider.
Svoje výlety po Dithmarschene môžete začať priamo od vašich dverí – či už na dlhé prechádzky alebo na bicykli až k Severnému moru. Autom ste do 20 minút od hrádze na rieku Eider alebo do Friedrichstadt („Klein-Amsterdam“), prípadne do 45 minút do Sankt Peter-Ording.
- Aktívne optické pripojenie
- Moderná vstavaná kuchyňa z roku 2022
- Dvojitý carport (výška cca 2,30 m)
- Samostatná garáž
- 3 parkovacie miesta pred garážou
- Pozemok je plne spracovaný
- Kúrenie a čiastočne aj kúrenárske radiátory boli v roku 2023 obnovené, kotol Buderus Logano plus KB195i s ovládaním cez aplikáciu
- Pavilón v záhrade na daždivé dni
Parametre nehnuteľnosti
| Vek | Nad 50 rokov |
|---|---|
| Stav | Dobrý |
| Číslo inzerátu | 999110 |
| Úžitková plocha | 222 m² |
| Celkové poschodia | 2 |
| Dostupné od | 14. 3. 2026 |
|---|---|
| Dispozícia | 7+1 |
| PENB | F - veľmi nehospodárne |
| Plocha pozemku | 1 399 m² |
| Cena za jednotku | 1 793 € / m2 |
Čo táto nehnuteľnosť ponúka?
| Garáž | |
| MHD 5 minút autom |
| Parkovanie | |
| Terasa |
V okolí nehnuteľnosti nájdete
Stále hľadáte to pravé?
Nastavte si strážneho psa. Ponuky vybrané na mieru dostanete súhrnne 1× denne e-mailom. S Premium profilom máte po ruke rovno 5 strážcov a keď sa niečo objaví, informujú vás obratom.


























