Prenájom domu 4+1 • 130 m² bez realitky, Dolné Sasko
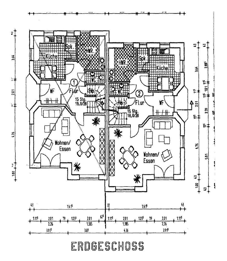
, Dolné SaskoMHD 4 minúty pešo • Parkovanie • GarážTento dobre vybavený, udržiavaný dvojdom so susediacou garážou a prídavným priestorom disponuje 130 m² obytného priestoru a zaujme premyslenou dispozíciou izieb.
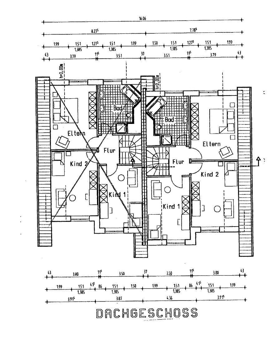
Masívne postavený dvojdom z roku 2001 ponúka 3 spálne, 1 obývačko/jedálenský priestor, veľkú kúpeľňu s veľmi dobrou výbavou, 1 hosťovú toaletu, 1 úložný priestor a technickú miestnosť rozloženú do 2 podlaží. Podkrovie môže byť využité ako ďalší praktický skladový priestor. Táto nehnuteľnosť sa nachádza na približne 426 m² veľkom, pekne upravenom pozemku v pokojnej obytné oblasti.
Táto nehnuteľnosť sa nachádza v špičkovej lokalite v Schneverdingen, blízko centra. Schneverdingen leží v srdci Lüneburger Heide, v okrese Soltau-Fallingbostel. Diaľnica A7 je veľmi dobre dostupná (zjazd Bispingen približne 15 km). Vzdialenosť do Hamburgu je približne 65 km, do Hannoveru 100 km a do Lüneburgu približne 58 km.
V prízemí vás čaká veľký obývačko/jedálenský priestor s priamym prístupom na slnečnú terasu, ktorá nabáda k relaxácii. Jedna zo spální disponuje balkónom, ktorý vyzýva na oddych. V prízemí sú okná vybavené žalúziami, čiastočne elektrickými.
Moderné kondenzované plynové kúrenie zabezpečuje príjemné teplo a prípravu teplej vody. Prízemie, ako aj kúpeľňa v hornom poschodí, majú okrem regulácie kúrenia aj podlahové kúrenie.
V exteriéri je príjazd k garáži, cesta obiehajúca dom a terasa obložená červenými dlaždicami. Priestranná terasa a záhrada vás pozývajú k oddychu a pobytu. Za garáž sa účtuje navyše 60 € mesačne.
Prevádzkové náklady sa účtujú raz ročne a zahŕňajú náklady na odvoz odpadu, daň z nehnuteľnosti, poistenie budovy, poplatky komínára a náklady na údržbu kúrenia. Nájomca si sám uzatvára zmluvy o dodávke plynu, elektriny, vody a odtoku odpadových vôd so štátnymi podnikmi v Schneverdingen.
Parametre nehnuteľnosti
| Vek | Nad 50 rokov |
|---|---|
| Dispozícia | 4+1 |
| PENB | D - Menej hospodárne |
| Plocha pozemku | 426 m² |
| Cena za jednotku | 10 € / m2 |
| Stav | Dobrý |
|---|---|
| Číslo inzerátu | 995920 |
| Úžitková plocha | 130 m² |
| Celkové poschodia | 2 |
Čo táto nehnuteľnosť ponúka?
| Balkón | |
| Parkovanie | |
| Terasa |
| Garáž | |
| MHD 4 minúty pešo |
V okolí nehnuteľnosti nájdete
Stále hľadáte to pravé?
Nastavte si strážneho psa. Ponuky vybrané na mieru dostanete súhrnne 1× denne e-mailom. S Premium profilom máte po ruke rovno 5 strážcov a keď sa niečo objaví, informujú vás obratom.























