
Prenájom nebytového priestoru • 178 m² bez realitkyMühlenstraße 5, , Severné Porýnie - Westfálsko
Mühlenstraße 5, , Severné Porýnie - WestfálskoMHD 2 minúty pešo • VýťahV srdci Drensteinfurt vzniká do konca roku 2026 vysoko kvalitný obytný a obchodný dom so 9 obytnými jednotkami a priestrannou komerčnou plochou v prízemí.
Jednotka s rozlohou cca 178 m² sa nachádza priamo pri novo upravenom námestí a ponúka vynikajúcu viditeľnosť ako aj reprezentatívnu polohu.
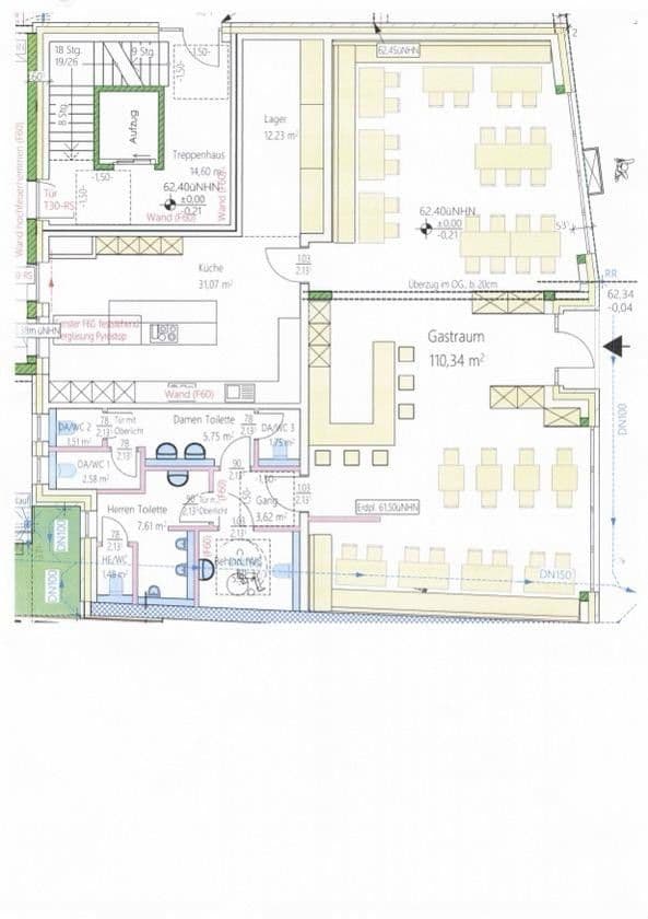
Priestor je momentálne plánovaný ako gastronomický prevádzkovateľ (prikladový pôdorys je priložený), avšak môže byť flexibilne prispôsobený, mimo iného aj ako obchodný priestor. Pôdorys a výstavba sa realizujú v úzkej koordinácii s budúcim nájomcom.
Drensteinfurt je atraktívne mesto pre dochádzajúcich pracovníkov, umiestnenie podnikania je centrálne v historickom jadre mesta – priamo pri námestí. Vyššia kupná sila obyvateľov, vysoký podiel majiteľov nehnuteľností a rozvinutá štruktúra centra mesta poskytujú najlepšie predpoklady pre dlhodobý obchodný úspech.
Lokalita je veľmi dobre dostupná:
• Vlaková stanica Drensteinfurt je dostupná pešo
• Vlakové spojenie do Münster a Hamm niekoľkokrát za hodinu
• Rýchly prístup na diaľnice A1 a A2
Energeticky efektívna novostavba
• Teplotné čerpadlo
• Trojité zasklenie
• Pripojenie na optické vlákno
• Vysoko kvalitná fasáda
• Moderná, reprezentatívna architektúra
• Do konca roku 2026 – včasná istota plánovania
Komerčná plocha sa nachádza v modernom obytnom a obchodnom dome v srdci Drensteinfurt s celkovo 9 vysoko kvalitnými obytnými jednotkami.
Výstavba plochy prebieha v tesnej spolupráci s budúcim nájomcom. Tým je možné individuálne naplánovať pôdorys, technické prípojky a detaily vybavenia tak, aby boli prispôsobené vášmu konceptu využitia.
Dokončenie je plánované na koniec roku 2026. Včasná koordinácia prináša istotu pri plánovaní a optimálne možnosti realizácie.
Priestor je ideálny pre prevádzkovateľov so zameraním na dlhodobý rozvoj, ktorí hľadajú modernú novostavbu v centrálnej polohe pri námestí a kladú dôraz na udržateľný spôsob výstavby, kvalitnú architektúru a prostredie s vysokou kupnou silou.
Cena na vyžiadanie.
Seriózne ponuky s konceptom využitia sú vítané.
Parametre nehnuteľnosti
| Vek | Nad 50 rokov |
|---|---|
| Číslo inzerátu | 995892 |
| Cena za jednotku | 0 € / m2 |
| Stav | Novostavba |
|---|---|
| Plocha nebytového priestoru | 178 m² |
Čo táto nehnuteľnosť ponúka?
| Bezbariérový prístup | |
| Výťah |
| Pivnica | |
| MHD 2 minúty pešo |
V okolí nehnuteľnosti nájdete
Stále hľadáte to pravé?
Nastavte si strážneho psa. Ponuky vybrané na mieru dostanete súhrnne 1× denne e-mailom. S Premium profilom máte po ruke rovno 5 strážcov a keď sa niečo objaví, informujú vás obratom.







