Prenájom nebytového priestoru 7+1 • 178 m² bez realitkyMühlenstraße 5, , Severné Porýnie - Westfálsko
Mühlenstraße 5, , Severné Porýnie - WestfálskoMHD 2 minúty pešo • VýťahV srdci Drensteinfurt vzniká do konca roku 2026 kvalitná obytná a obchodná budova s 9 obytnými jednotkami a priestrannou obchodnou plochou v prízemí.
Jednotka s rozlohou cca 178 m² sa nachádza priamo pri novo upravenom trhovom námestí a ponúka vynikajúcu viditeľnosť a reprezentatívnu polohu.
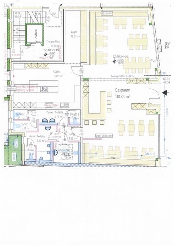
Priestor je momentálne plánovaný ako gastronómia (príkladový pôdorys je priložený), avšak môže byť flexibilne prispôsobený vašim potrebám. Pôdorys a vybudovanie prebiehajú v úzkej spolupráci s budúcim nájomcom.
Drensteinfurt je atraktívne mesto pre dochádzajúcich, lokalita obchodu je centrálnou časťou historického centra – priamo na trhovom námestí. Vysoká kupná sila obyvateľov, silná miera vlastníctva a rozvinutá štruktúra centra mesta poskytujú najlepšie predpoklady pre udržateľný obchodný úspech.
Veľmi dobré dopravné spojenie je zabezpečené:
- Železničná stanica Drensteinfurt je dostupná pešo
- Viackrát za hodinu cestovné spoje do Münsteru a Hammu
- Rýchly prístup k diaľniciam A1 a A2
Energeticky efektívny novostavba
- Tepelné čerpadlo
- Trojsklenené okná
- Pripojenie na optické vlákno
- Kvalitné fasády
- Moderná, reprezentatívna architektúra
- Dokončenie do konca roku 2026 – včasná istota plánovania.
Obchodný priestor sa nachádza v modernej obytné a obchodnej budove v srdci Drensteinfurt, ktorá obsahuje celkovo 9 kvalitných obytných jednotiek.
Vybudovanie priestoru prebieha v tesnej spolupráci s budúcim nájomcom. Vďaka tomu je možné individuálne naplánovať pôdorys, technické prípojky a detaily vybavenia podľa vášho konceptu využitia.
Dokončenie je plánované na koniec roku 2026. Včasná koordinácia poskytuje istotu plánovania a optimálne možnosti realizácie.
Priestor je ideálny pre dlhodobo orientovaných prevádzkovateľov, ktorí hľadajú modernú novostavbu v centrálnom umiestnení na trhovom námestí a kladú dôraz na udržateľnú výstavbu, kvalitnú architektúru a prostredie s vysokou kupnou silou.
Cena na požiadanie.
Seriózne dopyty s konceptom využitia sú vítané.
Parametre nehnuteľnosti
| Vek | Nad 50 rokov |
|---|---|
| Dispozícia | 7+1 |
| Plocha nebytového priestoru | 178 m² |
| Stav | Novostavba |
|---|---|
| Číslo inzerátu | 995901 |
| Cena za jednotku | 0 € / m2 |
Čo táto nehnuteľnosť ponúka?
| Bezbariérový prístup | |
| Výťah |
| Pivnica | |
| MHD 2 minúty pešo |
V okolí nehnuteľnosti nájdete
Stále hľadáte to pravé?
Nastavte si strážneho psa. Ponuky vybrané na mieru dostanete súhrnne 1× denne e-mailom. S Premium profilom máte po ruke rovno 5 strážcov a keď sa niečo objaví, informujú vás obratom.







