
Prenájom bytu 2+kk • 45 m² bez realitkyMyslbekova, Ostrava - Moravská Ostrava, Moravskoslezský kraj
Pronájem nově zrekonstruovaného bytu 2+kk, 45 m² – nízké náklady, první bydlení – k dispozici ihned
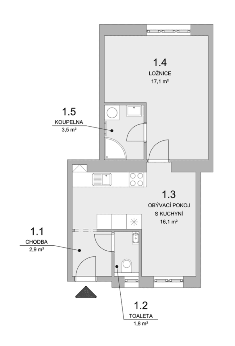
Nabízíme k pronájmu zrekonstruovaný byt 2+kk v širším centru Ostravy o velikosti 45 m², po kompletní moderní rekonstrukci, ve kterém dosud nikdo nebydlel.
Byt je ideální pro jednotlivce nebo pár, který hledá dlouhodobé, klidné a finančně úsporné bydlení.
Hlavní benefity bytu:
- první bydlení po kompletní rekonstrukci – vše nové, nepoužívané
- nová kuchyňská linka včetně zcela nových spotřebičů
- velmi nízké měsíční náklady, poplatky cca 1 000 Kč / měsíc (1 osoba)
- elektřina hrazena zvlášť (nejúspornější generace elektrického kotle)
- bezpečnostní dveře do bytu
- cihlový revitalizovaný dům - nová izolační okna s trojsklem – klid a tepelný komfort
- samostatné WC s oknem
- nově vybudovaná koupelna se sprchovým koutem
- k dispozici sklep
Finanční podmínky:
• Nájemné: 13 500 Kč / měsíc
• Kauce: ve výši dvou měsíčních nájmů
• Poplatky: cca 1 000 Kč / měsíc (1 osoba)
• Elektřina: hrazena zvlášť
• Díky nové rekonstrukci a technickému stavu domu jsou celkové provozní náklady velmi nízké
Parametre nehnuteľnosti
| Dostupné od | 28. 2. 2026 |
|---|---|
| Konštrukcia budovy | Tehla |
| Vybavené | Nevybavené |
| Prevedenie | Luxusné |
| Číslo inzerátu | 995872 |
| Rekonštrukcia | Kompletné |
| Úžitková plocha | 45 m² |
| Stav | Veľmi dobrý |
|---|---|
| Dispozícia | 2+kk |
| Poschodie | 4. poschodie z 5 |
| Vykurovanie | Elektrické |
| Vlastníctvo | Osobné |
| Umiestnenie | Centrum mesta |
| Cena za jednotku | 300 CZK / m2 |
Čo táto nehnuteľnosť ponúka?
| Pivnica 4 m² |
| Parkovanie |
V okolí nehnuteľnosti nájdete



Prenájom bytuGen. Sochora, Ostrava - Poruba-sever, Moravskoslezský kraj- 2+kk
- 52 m²
14 500 CZK + 3 500 CZK

Stále hľadáte to pravé?
Nastavte si strážneho psa. Ponuky vybrané na mieru dostanete súhrnne 1× denne e-mailom. S Premium profilom máte po ruke rovno 5 strážcov a keď sa niečo objaví, informujú vás obratom.










