
Prenájom bytu 2+1 • 70 m² bez realitkyBílkova, Praha - Josefov
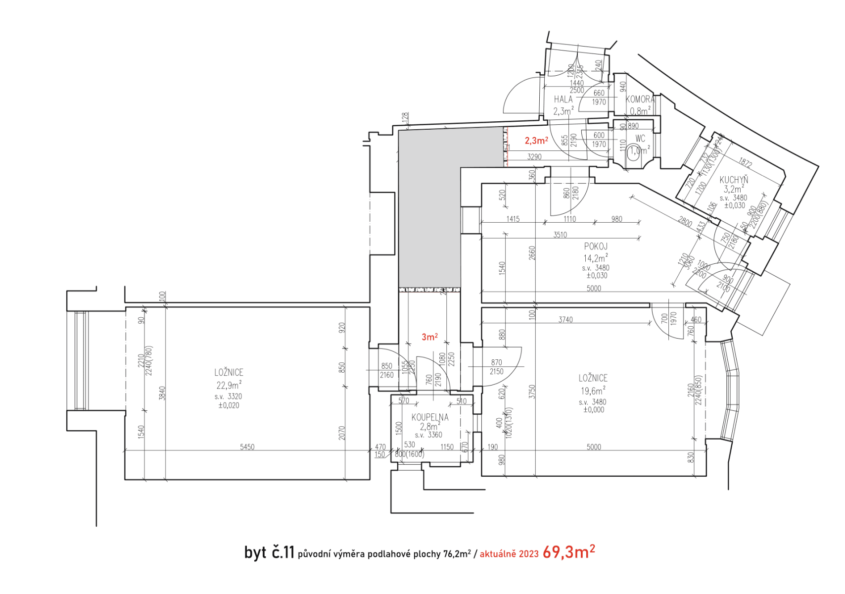
Nabízím k dlouhodobému pronájmu příjemný a světlý 2+1 byt s rozlohou 70 m², který se nachází v cihlové budově o celkové výšce čtyř podlaží. Byt, situovaný ve 3 patře, je ve velmi dobrém stavu a díky pečlivé údržbě si zachovává moderní a čistý vzhled. Interiér je nevybavený, což nabízí možnost upravit prostor dle vlastních představ, ačkoli základní dispozice zajišťuje pohodlné bydlení s dostatkem prostoru pro individuální přizpůsobení. Součástí bytu je také malý balkon o ploše 1,5 m², který je ideální pro chvíle odpočinku na čerstvém vzduchu. Budova disponuje výtahem, což výrazně usnadňuje přístup do bytu. Pro více informací a sjednání prohlídky mne kontaktujte skrz zprávy pomocí komunikační platformy.
Parametre nehnuteľnosti
| Dostupné od | 28. 2. 2026 |
|---|---|
| Konštrukcia budovy | Tehla |
| Vybavené | Nevybavené |
| Číslo inzerátu | 995861 |
| Úžitková plocha | 70 m² |
| Stav | Veľmi dobrý |
|---|---|
| Dispozícia | 2+1 |
| Poschodie | 3. poschodie z 4 |
| Umiestnenie | Centrum mesta |
| Cena za jednotku | 429 CZK / m2 |
Čo táto nehnuteľnosť ponúka?
| Výťah |
V okolí nehnuteľnosti nájdete
Stále hľadáte to pravé?
Nastavte si strážneho psa. Ponuky vybrané na mieru dostanete súhrnne 1× denne e-mailom. S Premium profilom máte po ruke rovno 5 strážcov a keď sa niečo objaví, informujú vás obratom.





















