
Predaj domu 6+1 • 150 m² bez realitky, Bavorsko
, BavorskoMHD 1 minúta pešo • Parkovanie • GarážPre rodiny s deťmi, nadšencov prírody, samostatných obyvateľov: kto si vie vážiť pokojný a prírodou prepojený život, tu si môže splniť svoj sen!
Tento udržiavaný a priebežne renovovaný rodinný dom bol postavený v roku 1977 masívnou stavbou a ponúka dokonalé možnosti pre individuálny rozvoj.
Obytná plocha sa rozprestiera na troch úrovniach so 6 pretrvávajúco osvetlenými izbami a celkovo približne 150 m² obytného priestoru; podkrovie ponúka dodatočnú dispozíciu (cca 50 m²), vďaka ktorej je možné zriadiť napríklad oázu pohody. Je taktiež bez väčších problémov možné premeniť tento rodinný dom na dvojrodinný dom.
Tu môžete bývať a pracovať v harmónii s prírodou a navyše sa môžete nasťahovať s batožinou, pretože nehnuteľnosť sa predáva čiastočne zariadená (napríklad štúdio, šatník; aj záhradné náradie).
Preto platí: nenechajte si ujsť túto príležitosť – nasťahujte sa a cíťte sa ako doma!
Vlastnosti v bodoch
Všeobecné:
• 1700 m² pozemok, 150 m² obytná plocha
• Parkovacie miesta: garáž, vonkajšie parkovisko
• 3 poschodia
• Keller upravený, podkrovie zariadené
• Rezerva pre dodatočné dispozície v podkroví (cca 50 m²)
• Južná orientácia s panoramatickým výhľadom do Steigerwaldu
Vnútorné priestory:
• Priestranné, svetlom preniknuté usporiadanie miestností
• 2 kúpeľne s daždivými/masážnymi sprchami, 1 prístupná sprcha, čiastočne s francúzskymi obkladačkami
• Hosťové WC
• Kuchyňa so spojenou šatňou
• Podlahové krytiny: dlažba, parkety, laminát
• 2 prístupy na terasu (z jedálne a obývačky)
• 2 balkóny (východný / severný balkón)
• 2 prípojky pre pece na tuhú palivo (1. poschodie / 2. poschodie)
• Prevažujú biele plastové okná s izolačnými dvojsklami (35 dp)
Exteriér:
• Terasa orientovaná na východ a juh (celkovo cca 80 m²) s pergolou, 2 Warema markízy (2021)
• Záhrada usporiadaná ako park s dvoma grilovacími miestami a domčekmi na náradie, skleník
• Domový prameň
Elektrické/energetické vlastnosti:
• Pelletový kotol (2021)
• Solárna podpora
• Balkónová elektráreň 2025 (800 kWh) a 2 ďalšie malé fotovoltaické systémy (2022)
• Garáž: elektrické rolietové dvere
• WLAN
• Domáca domofónna sústava
Nehnuteľnosť sa nachádza v pokojnej časti Vestenbergsgreuth na slnečnom mieste, v príjemnom susedstve s priamym, nezastavaným výhľadom do Steigerwaldu. Pešia turistika a cyklistika priamo od dverí domu vyvolávajú dovolenkovú atmosféru. Výlety sú možné vďaka vynikajúcej dopravnej dostupnosti cez diaľnicu A3 (zjazd Schlüsselfeld, Höchstadt Aisch) do kultúrnych centier Würzburg/Nürnberg alebo do franských vinárskych regiónov ako Volkach, Kitzingen, Iphofen a pod.
V ideálnej polohe medzi Burghaslach, Höchstadt Aisch a Neustadt Aisch sa spája vidiecka idyla s praktickou blízkosťou k susedným mestám, kde nájdete všetky základné služby, ako sú obchody, školy, jasle, lekárne, ordinácie a podobne.
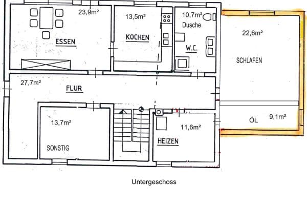
Prízemie / Keller ako celé poschodie:
• 1 štúdio/hosťovská izba s prístupom na terasu na severnej strane (renovácia 2019/20)
• Technická a skladová miestnosť pre pelletové kúrenie (2021)
• Práčovňa (renovácia 2025)
• Skladovacia miestnosť. Podlahy sú po celom priestore dláždené.
Vedľa sa nachádza garáž, ktorá ponúka kryt, takže sa do vstupu dostanete suchou nohou.
1. poschodie / Obytné poschodie:
• Jedáleň s dreveným stropom a samostatným prístupom na terasu na juhovej strane
• Obývacia izba s parketovou podlahou, prípojkou pre pec na tuhú palivo; prístup na terasu na juhovej strane a na severný balkón
• Štvorcová kuchyňa sa nachádza v strede
• Naproti sa nachádzajú spojená šatňa, hosťové WC a kúpeľňa s bezbariérovou sprchou pre pohodlie (renovácia 2025)
2. poschodie / Podkrovie:
• Tri svetlé obytné/spánkové/pracovné miestnosti orientované na juh s výhľadom do záhrady
• Veľké, biele strešné okná v štýle vidieckeho domu, ktoré robia podkrovie slnečné a priestranné
• 1 kúpeľňa s okrúhlymi a daždivými sprchami, s múrmi obkladanými francúzskymi obkladačkami
• Šatník (renovácia 2025)
Toto poschodie je možné premeniť aj na samostatný byt s využitím rezervy v podkroví. Z domového chodby smerom na východ vedie ďalší balkón.
Záhrada usporiadaná ako park
Záhrada je navrhnutá ako park a prístupná z viacerých strán. Je rozdelená na ružinovú a bylinkovú časť s vyvýšenými záhonmi, obsahuje 2 grilovacie stanice a niekoľko drevených domčikov na uskladnenie záhradného náradia. Celý areál prechádzajú cestičky a terasy. Na zavlažovanie slúži vlastný prameň (domový čerpadlový systém) s viacerými výtokmi.
Či už ste majster grilu alebo záhradkár-amátor, kto si vie vážiť prírodu a atmosféru tohto miesta, si tu určite našiel svoje osobné rajské miesto!
Dom sa predáva čiastočne zariadený (čo umožňuje zníženie dane z nadobudnutia nehnuteľnosti pre kupujúceho)
Nasťahovanie prebieha po dohode.
Parametre nehnuteľnosti
| Vek | Nad 50 rokov |
|---|---|
| Dispozícia | 6+1 |
| PENB | E - Nehospodárne |
| Plocha pozemku | 1 700 m² |
| Cena za jednotku | 3 767 € / m2 |
| Stav | Po rekonštrukcii |
|---|---|
| Číslo inzerátu | 995670 |
| Úžitková plocha | 150 m² |
| Celkové poschodia | 3 |
Čo táto nehnuteľnosť ponúka?
| Balkón | |
| Pivnica | |
| Parkovanie | |
| Terasa |
| Bezbariérový prístup | |
| Garáž | |
| MHD 1 minúta pešo |
V okolí nehnuteľnosti nájdete
Stále hľadáte to pravé?
Nastavte si strážneho psa. Ponuky vybrané na mieru dostanete súhrnne 1× denne e-mailom. S Premium profilom máte po ruke rovno 5 strážcov a keď sa niečo objaví, informujú vás obratom.




















