Predaj domu 7+1 • 293 m² bez realitky, Bavorsko
Dom má slnečnú orientáciu na juh. Priestranné izby s veľkými oknami ponúkajú veľa svetla a pekný výhľad na údolie. Obzvlášť výhľad cez panoramatické okno v jedálni je potešením. Každé poschodie disponuje spálňou a kúpeľňou. Priložená samostatná garáž má rozlohu 34 m² a disponuje veľkými oknami, pracovnou zónou a prístupom do obytného priestoru v prízemí. Momentálne je k dispozícii VDSL internet (100 Mbit/s) a dve satelitné antény. Optický internet bude nainštalovaný v roku 2027. Je tu tiež pokrytie 5G mobilnej siete od Telekomu. Obe vstavané kuchyne a všetok nábytok (ak nie je uvedené inak) sú zahrnuté v kúpnej cene.
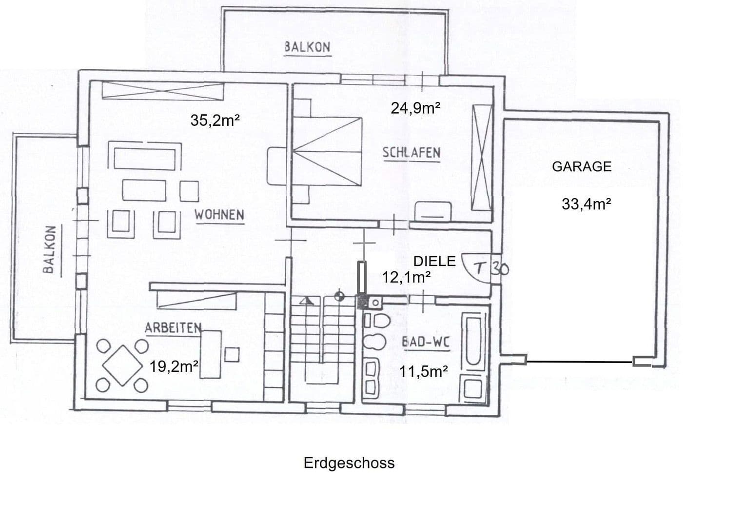
Dom má obytnú plochu 293 m² a je rozdelený na:
SUTERÉN – 112 m²
• Jedáleň s panoramatickým oknom
• Spálňa, sprcha/WC
• Luxusná vstavaná kuchyňa s jedálenským kútom
• Kúpeľňa s prirodzeným denným svetlom, so sprchou a 2 umývadlami
• Obložená podlaha
• Veľká 48 m² južná terasa s vysúvateľnou markízou a prístupom do jedálne
PRÍZEMIE – 103 m²
• Obývacia izba, pracovňa, spálňa
• Kúpeľňa s denným svetlom vybavená vaňou a bidetom
• Obložené kúpeľne a chodba
• Kobercovaná podlaha
• 2 balkóny
POSCHODIE NA STRECHE – 78 m²
• Obývacia izba, spálňa
• Vstavaná kuchyňa s jedálenským kútom
• Kúpeľňa so sprchou a prirodzeným denným svetlom
• Laminátová podlaha
• 32 m² terasa na streche a súkromný balkón
Poschodie na streche môže byť využité cez vnútorný vstup ako rodinná zóna alebo cez externý prístup z terasy ako samostatný byt. Tento priestor bol počas posledných 7 rokov prenajímaný cez Airbnb.
Zdravotnú starostlivosť zabezpečujú lekári v Burghaslach a Scheinfeld. Nemocnica sa nachádza v Neustadt an der Aisch. V dedine je materská škôlka a žiaci všetkých stupňov vzdelávania (základná škola, stredná škola, reálna škola a gymnázium) sú vyzdvihovaní autobusom. V obci sa nachádzajú aj hotel, dve reštaurácie a športové stredisko. Dom stojí na svahu hory (južná strana) s voľným výhľadom. Nachádza sa 7 km od diaľnice A3 Nürnberg-Frankfurt a 8 km od cesty B8. Najbližšie mestá sú Scheinfeld (9 km), Burghaslach (7 km), Neustadt an der Aisch (20 km) a Erlangen (25 km).
Dom bol postavený medzi rokmi 1995 a 2001. Disponuje obvodovou tepelnou izoláciou a celá garáž – od základovej dosky až po terasu na streche – je izolovaná 5 cm styroporom. Pod celou základovou doskou bola tiež inštalovaná 5 cm hrubá izolácia z tvrdého styroporu. Strecha je izolovaná 10 cm styroporom. V obytných priestoroch v suteréne je inštalované podlahové kúrenie s teplou vodou, zatiaľ čo ostatné poschodia majú radiátory. Strop pivnice a strop, ktorý oddeľuje poschodie na streche, sú kompletne z betónu. Budova je vybavená systémom bleskozvodu a dvoma samostatnými satelitnými zariadeniami. Všetky okná a dvere vedúce na terasu sú vyrobené z duroplastového plastu a všetky žalúzie sú elektricky ovládané. Terasa na streche bola v apríli 2019 nová utesnená a vybavená novými panelmi. Balkón v prízemnej spálni bol v máji 2020 nová utesnený a vybavený novými panelmi. Nový systém na zmäkčovanie vody BWT AQA Perla bol inštalovaný v júni 2019. Fasáda domu a strešné výčnelky boli v máji 2024 kompletne prefarbené.
Kúpna cena zahŕňa obe vstavané kuchyne a nábytok. Dom je k dispozícii od mája 2026.
Parametre nehnuteľnosti
| Vek | Nad 50 rokov |
|---|---|
| Dispozícia | 7+1 |
| Úžitková plocha | 293 m² |
| Celkové poschodia | 3 |
| Stav | Dobrý |
|---|---|
| Číslo inzerátu | 998892 |
| Plocha pozemku | 1 039 m² |
| Cena za jednotku | 1 860 € / m2 |
Čo táto nehnuteľnosť ponúka?
| Balkón | |
| Garáž | |
| MHD 0 minút pešo |
| Pivnica | |
| Parkovanie | |
| Terasa |
V okolí nehnuteľnosti nájdete
Stále hľadáte to pravé?
Nastavte si strážneho psa. Ponuky vybrané na mieru dostanete súhrnne 1× denne e-mailom. S Premium profilom máte po ruke rovno 5 strážcov a keď sa niečo objaví, informujú vás obratom.























