
Predaj bytu 3+1 • 73 m² bez realitkyHaferstraße 10 Traun Oedt Oberösterreich 4050
Haferstraße 10 Traun Oedt Oberösterreich 4050MHD 1 minúta pešo • Výťah • GarážIdeálne pre rodiny, páry, pracujúcich alebo seniorov, ktorí hľadajú vysokú kvalitu života, mestský komfort, ako aj vynikajúcu dopravnú dostupnosť a optimálnu infraštruktúru!
Táto atraktívna 3-izbová bytová jednotka v pokojnej zelenej lokalite pri jazere Oedt osloví svojimi svetlými, prepracovane usporiadanými priestormi, južne orientovanou slnečnou loggiou s diaľkovým výhľadom, vlastným parkovacím miestom v garáži, upraveným obytným komplexom a vynikajúcou infraštruktúrou so priamej MHD pripojením, blízkosťou k železničnej stanici a rýchlou dostupnosťou do Linzu a Welsu. Nedávno zrekonštruovaný byt, výťah v dome a prírodné okolie navyše zaručujú vysoký komfort bývania a dlhodobú udržateľnosť hodnoty.
Informácie o nehnuteľnosti
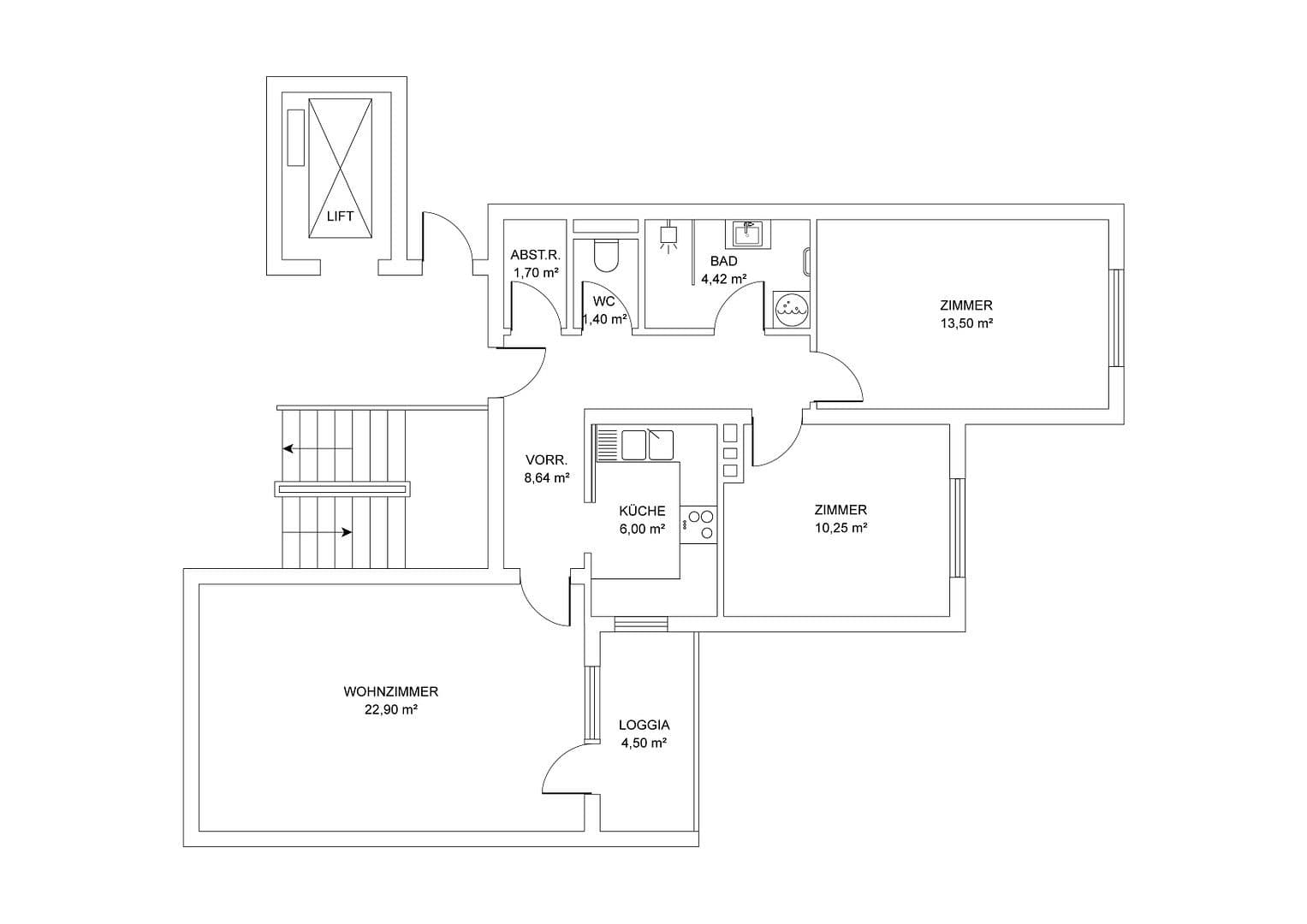
• Užitná plocha: Obytná časť vrátane loggie 73,32 m²
• Počet izieb: Obývacia jedáleň, kuchyňa, spálňa, detská izba/kancelária, predsieň, kúpeľňa, WC, úložný priestor
• Poschodie: 3. poschodie s výťahom
• Stav: Byt nedávno zrekonštruovaný, budova veľmi udržiavaná
• Kuchyňa: s oknom a denným svetlom
• Kúpeľňa: s modernou walk-in sprchou a prípojkou pre práčku
• WC: samostatné a priestranné
• Kúrenie: komfortné prostredníctvom ústredného kúrenia
• Okná: moderné, dvojsklá, s rolietami
• Sklep: veľký sklepový priestor 4,19 m²
• Parkovacie miesto: garážový parkovací priestor vo vlastníctve
Rozloženie priestorov
• Priestranná obývacia jedáleň s prístupom na južnú loggiu
• 2 izby (spálňa, detská izba/domáca kancelária)
• Praktická kuchyňa s denným svetlom
• Kvalitná kúpeľňa s walk-in sprchou
• Príjemná predsieň
• Funkčný úložný priestor
Budova a spoločné priestory
• Udržiavaný obytný komplex
• Spoločné priestory: miestnosť pre bicykle, práčovňa, zelené plochy, ihrisko
• Budova vo veľmi dobrom stave
• Vynikajúci energetický preukaz – HWB 45 = trieda B
• Veľmi príjemné susedstvo, pokojné prostredie
Skvelá lokalita
Tento byt sa nachádza v atraktívnej zelenej oblasti v obľúbenom linzskom štvrti Oedt, len pár krokov od jazera Oedt a kúpeľného centra Traun, zasadený do pokojnej, rodinne priateľskej osady s udržiavanými rodinnými a viacrodinnými domami a priestrannými zelenými plochami.
Lokalita spája vysokú kvalitu života, mestský komfort, ako aj výbornú dopravnú dostupnosť a optimálnu infraštruktúru v centrálnej oblasti Horného Rakúska.
• Zastávka autobusu priamo pred dverami
• Električka do smeru Linzu dostupná za krátku dobu
• Železničná stanica Traun s rýchlym spojením do Linzu a Welsu
• Prístup na diaľnicu A1 (Západná diaľnica) v krátkej jazdnej vzdialenosti
• Mnoho škôl, družín a materských škôl v bezprostrednom okolí
• Nákupné možnosti, lekáreň, lekári a voľnočasové zariadenia v bezprostrednej blízkosti
• Pešie a cyklistické trasy okolo jazera Oedt, ako aj pozdĺž rieky Traun, ktoré poskytujú priestor pre oddych, šport a pôžitok z prírody
Záver
Tento byt ponúka ideálnu kombináciu pokojného bývania v prírodnej zelenej oblasti a vynikajúcej infraštruktúry v obľúbenom linzskom štvrti Oedt. Bezprostredná blízkosť k jazeru Oedt, rodinne priateľská osada a veľmi dobrá dopravná dostupnosť robia z neho mimoriadne atraktívnu voľbu pre mladé rodiny (školy a materské školy v okolí, dostatok zelene), páry a pracujúcich (optimálne spojenie do Linzu a Welsu), dochádzajúcich (blízkosť k železničnej stanici, prístup na diaľnicu, autobus priamo pred dverami) ako aj seniorov (pokojná lokalita, krátke vzdialenosti k základným službám).
Letisko v Linzi je dosiahnuteľné za krátku jazdu, nákupné možnosti (Plus-City), lekári, lekárne a voľnočasové zariadenia sú v bezprostrednom okolí. Pešie a cyklistické trasy okolo jazera Oedt, ako aj pozdĺž rieky Traun, podčiarkujú vysokú hodnotu oddychu a rekreácie.
Premyslený pôdorys, svetlé obytné priestory a atraktívna poloha v centrálnom regióne Horného Rakúska zaručujú dlhodobú kvalitu bývania a stabilnú hodnotu.
Podmienky
• Predajná cena vrátane garážového parkovacieho miesta: € 287.000,--
• Prevádzkové náklady vrátane rezervného fondu a kúrenia: € 333,--
• Stav rezerv: cca € 76.500,--
• Bez provízie, žiadny maklérsky poplatok (úspora pre vás cca € 10.300,--)
Info:
Aby sme vám uľahčili predstavu o priestoroch, naša dizajnéra interiérov štýlovo zariadila byt. Upozorňujeme, že voľný nábytok nie je zahrnutý v predajnej cene a po predaji bude odstránený. Kuchyňa, kúpeľňový nábytok a skrinky sú zahrnuté v predajnej cene.
Nechajte sa inšpirovať a už teraz snívajte o vašom novom domove!
Parametre nehnuteľnosti
| Vek | Nad 50 rokov |
|---|---|
| Stav | Po rekonštrukcii |
| Poschodie | 3. poschodie |
| PENB | B - Veľmi úsporné |
| Cena za jednotku | 3 932 € / m2 |
| Dostupné od | 10. 3. 2026 |
|---|---|
| Dispozícia | 3+1 |
| Číslo inzerátu | 995661 |
| Úžitková plocha | 73 m² |
Čo táto nehnuteľnosť ponúka?
| Balkón | |
| Garáž | |
| MHD 1 minúta pešo |
| Pivnica | |
| Výťah |
V okolí nehnuteľnosti nájdete
Stále hľadáte to pravé?
Nastavte si strážneho psa. Ponuky vybrané na mieru dostanete súhrnne 1× denne e-mailom. S Premium profilom máte po ruke rovno 5 strážcov a keď sa niečo objaví, informujú vás obratom.











