
Predaj bytu 2+1 • 75 m² bez realitkyAlbrechtstr. 22 Bremen Mitte Bremen 28203
Albrechtstr. 22 Bremen Mitte Bremen 28203MHD 2 minúty pešoByt – 2026 úplne prehodnotený
Zhruba 75 m² boli komplexne zrekonštruované:
+ nové elektroinštalácie
+ nová, moderná séria vypínačov
+ nové podlahy
+ nové steny
+ nové kúpeľne
+ otvorený, mimoriadne svetlý pôdorys
+ malá práčovňa v byte
+ malý kút pre domácu kanceláriu za kuchyňou
+ samostatná pivnica / úložný priestor
Výsledok: Nasťahujete sa, prinášate si nábytok a cítite sa dobre.
Žiadne oneskorené investície. Žiadny renovačný stres.
Byt sa nachádza v 2. poschodí udržiavaného domu postaveného v roku 1982 a vyniká otvoreným usporiadaním s množstvom slnečného svetla – ráno aj večer.
Môj tip pre tvoje individuálne usporiadanie kuchyne: Moderná kuchyňa s varnou alebo pracovnou ostrovovou časťou – perfektná na spoločenské večery.
(Príkladové obrázky boli vizualizované pomocou umelej inteligencie.)
Malá domácia kancelária za tým vytvára múdro oddelený pracovný priestor bez straty obytného priestoru.
Dom a spoločenstvo vlastníkov nehnuteľností:
+ Veľmi upravený viacrodinný dom
+ Rok výstavby 1982
+ Skvelé, fungujúce spoločenstvo vlastníkov
+ Ústredné kúrenie z roku 2019
+ Ekonomicky stabilný
+ Žiadne väčšie opatrenia nie sú plánované
Skutočne jedinečné:
Spoločenstvo vlastníkov disponuje obrovským záhradným komplexom pre spoločné využitie – priamo v srdci Bremer štvrte – takmer jedinečné.
Priestor na:
+ hranie pre deti
+ grilovanie v lete
+ oddych po pracovnom dni
+ stretnutia s priateľmi
+ zelený útočisko v mestskom prostredí
Spoločné náklady (vrátane kúrenia podľa ekonomického plánu 2025)
Celkom: 327,00 € mesačne
Z toho:
približne 300,00 € prenosných
približne 27,00 € neprenositelných
Náklady na kúrenie sú už zahrnuté.
Tiež ideálne na prenájom – skvelá lokalita so silnou dopytovou dynamikou
Byt je vynikajúcou investičnou príležitosťou v absolútnej „štvrtovej top lokalite“.
Čerstvo zrekonštruované 2-izbové byty, ako tento, momentálne dosahujú veľmi dobré ceny za meter štvorcový v oblasti Ostertor/Steintor.
Príklad financovania
Kúpna cena: 329.000 €
100 % financovanie
3,8 % úroková sadzba
1,0 % splácanie
329.000 € × 4,8 % / 12 = približne 1.316 € mesačná splátka
Lokalita – nemôže to byť viac mestské
Ráno: Ísť dole a vyzdvihnúť čerstvé produkty z bio supermarketu.
Naprieč si dať cappuccino v Harbour Café.
Večer si rýchlo zakúpiť obľúbený časopis v kiosku v dome – všetko priamo za dverami.
Tu bývaš v Ostertor/Steintor – absolútna top lokalita.
Reštaurácie, bary, kultúra, divadlo, tramvaj – všetko je pešo dostupné.
A napriek tomu: v samotnom dome je všetko príjemne pokojné.
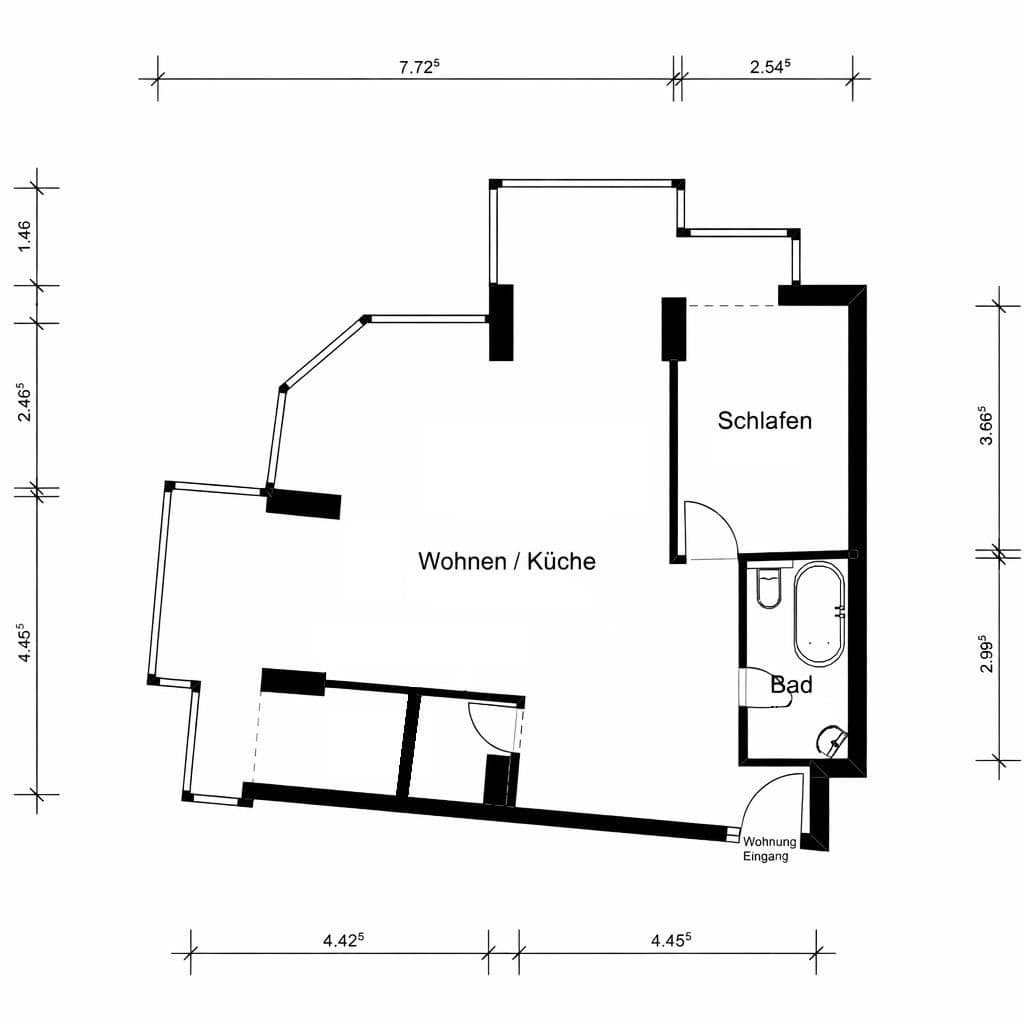
Kľúčové informácie na prvý pohľad
75 m² obytná plocha
2 izby
2. poschodie
Rok výstavby 1982
komplexne zrekonštruované v roku 2026
kvalitné okná značky Schüco
malá domácia kancelária
práčovňa v byte
pivnica
veľký záhradný areál (spoločná plocha)
ústredné kúrenie 2019
Spoločné výdavky vrátane kúrenia: 327 €
žiadne oneskorené investície
ihneď k nasťahovaniu
Bez provízie od súkromného vlastníka.
Bez maklérskych poplatkov.
Dopyty od maklérov nie sú výslovne vítané.
Parametre nehnuteľnosti
| Vek | Nad 50 rokov |
|---|---|
| Stav | Po rekonštrukcii |
| Poschodie | 2. poschodie |
| PENB | E - Nehospodárne |
| Cena za jednotku | 4 387 € / m2 |
| Dostupné od | 15. 3. 2026 |
|---|---|
| Dispozícia | 2+1 |
| Číslo inzerátu | 995617 |
| Úžitková plocha | 75 m² |
Čo táto nehnuteľnosť ponúka?
| Pivnica |
| MHD 2 minúty pešo |
V okolí nehnuteľnosti nájdete
Stále hľadáte to pravé?
Nastavte si strážneho psa. Ponuky vybrané na mieru dostanete súhrnne 1× denne e-mailom. S Premium profilom máte po ruke rovno 5 strážcov a keď sa niečo objaví, informujú vás obratom.































