
Predaj domu 5+1 • 180 m² bez realitky, Severné Porýnie - Westfálsko
, Severné Porýnie - WestfálskoMHD do minúty pešo • GarážV pokojnej lokalite Rheinberg-Alpsray – v pokojnej slepej uličke – vás čaká toto samostatne stojace rodinný dom z roku 1977, postavený z masívnych materiálov, na pozemku o rozlohe 701 m². Nehnuteľnosť spája komfort s bezbariérovosťou a je ideálna pre rodiny, milovníkov prírody a pendlerov. S približne 180 m² obytnou plochou a 195 m² využiteľnou plochou ponúka tento dom hojný priestor. HIRO-schodisko zabezpečuje bezbariérový prístup od suterénu až po horné poschodie.
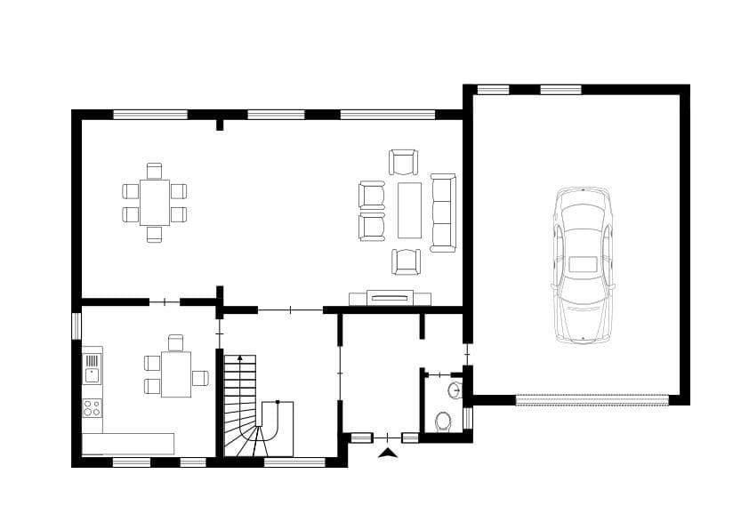
Prízemie a prvé poschodie: V prízemí nájdete svetlý, otvorený obývací a jedálenský priestor s pripojenou kuchyňou a tiež hostinský WC. Veľké francúzske dvere vedú do upravenej záhrady. Na poschodí sa nachádzajú štyri miestnosti na flexibilné využitie (spálňa, detská izba alebo pracovňa) a priestranná kúpeľňa so vaňou, sprchou, bidetou a samostatnou toaletou.
Suterén a wellness: Dom aj veľká dvojgaráž sú kompletne podzemné. S výškou stropov presahujúcou 2,20 metra a množstvom denného svetla sa suterén výborne hodí ako priestor pre záujmové činnosti, fitness, alebo home office. Okrem funkčných miestností, ako je práčovňa, dielňa a kotolňa, tu nájdete aj saunu s ponornou vaňou, bezbariérovú sprchu a samostatné WC. Vonkajšie schody vedú zo suterénu priamo do záhrady.
Garáž a záhrada: Priestranná dvojgaráž má priame vstupy do domu a do záhrady. Láskyplne udržiavaná vonkajšia časť vás pozýva na oddych prostredníctvom priestrannej juhozápadnej terasy. Mimoriadne praktické je aj to, že vlastné studne-pumpa umožňuje nákladovo efektívne zavlažovanie záhrady.
Pokojne, vidiecko, s vynikajúcou dostupnosťou: Hľadáte dokonalú zmes vidieckej idylky a vynikajúcej dostupnosti do Düsseldorfu a Porúria? V Rheinberg-Alpsray nájdete presne to: exkluzívne obytné prostredie, charakterizované kvalitnými rodinnými domami, na ľavom brehu Nížiny.
Vzdelávanie a rodina: Raj pre deti
Okolie je ideálne pre rodiny. V bezprostrednej blízkosti nájdete širokú ponuku vzdelávania a starostlivosti:
• Základná škôlka: Integračná škôlka Alpsray je pohodlne dostupná pešo. Viaceré materské školy v prilehlých častiach obce ponúkajú prvotriednu starostlivosť.
• Základné školy: Päť základných škôl v Rheinbergu je dosiahnuteľných za pár minút.
• Stredné školy/Vysoké školy: Renomovaná Amplonius gymnázium a Európska škola Rheinberg (integrovaná škola) v centre mesta sú rýchlo dostupné na bicykli alebo autobusom. V blízkych mestách Kamp-Lintfort a Moers nájdete ďalšie vzdelávacie inštitúcie, ako aj Rhein-Waal vysokú školu.
Nákupy a voľný čas: Všetko pre každodenné potreby
Pre týždenný nákup máte na výber celý rad možností. V okruhu iba cca 3–5 kilometrov nájdete všetko, čo srdce žiada:
• Miestne obchody: Veľké supermarkety, diskontné obchody a odborné predajne.
• Zdravotná starostlivosť: Lekárske ordinácie, lekárne a drogérie.
• Voľný čas: Stavebniny, kino, fitness centrá, Terra-Zoo.
Výborne napojené (mobilita):
• Autom: Za iba 5 minút dosiahnete diaľnicu A57 (odbočka Rheinberg). Odtiaľ je Düsseldorf, Porúrie a Holandsko rýchlo dostupné. Diaľnice A40 a A42 ležia veľmi výhodne.
• MHD a vlak: Autobusové linky 38/39 vás spoja priamo s centrom mesta a susednými mestami. Regionálna železnica RB31 (stanice Rheinberg/Millingen) ponúka spojenia smerom na Duisburg a Xanten.
Dodatočné vybavenie:
• Zabudovaná kuchyňa so spotrebičmi Siemens a AEG
• Podlahy z dlažby a parkiet
• HIRO-schodisko
• Sauna s ponornou vaňou
• Slnečná markíza
• Elektricky ovládateľné rolety s časovačom a čiastočne aj so slnečnými snímačmi
• DSL pripojenie, optické vlákno je v pláne.
Parametre nehnuteľnosti
| Vek | Nad 50 rokov |
|---|---|
| Dispozícia | 5+1 |
| PENB | E - Nehospodárne |
| Plocha pozemku | 701 m² |
| Cena za jednotku | 3 167 € / m2 |
| Stav | Dobrý |
|---|---|
| Číslo inzerátu | 995354 |
| Úžitková plocha | 180 m² |
| Celkové poschodia | 2 |
Čo táto nehnuteľnosť ponúka?
| Balkón | |
| Garáž | |
| Terasa |
| Pivnica | |
| MHD 0 minút pešo |
V okolí nehnuteľnosti nájdete
Stále hľadáte to pravé?
Nastavte si strážneho psa. Ponuky vybrané na mieru dostanete súhrnne 1× denne e-mailom. S Premium profilom máte po ruke rovno 5 strážcov a keď sa niečo objaví, informujú vás obratom.












