
Predaj domu • 286 m² bez realitkyFischergasse 6, , Bavorsko
Fischergasse 6, , BavorskoMHD 2 minúty pešo • Parkovanie • GarážDÔLEŽITÉ: Dom sa momentálne ešte vyprázdňuje/pripravuje. Prehliadky budú pravdepodobne možné až od polovice marca.
Radi Vás môžeme už teraz zaregistrovať (zoznam záujemcov).
Kľúčové údaje
Kúpna cena: 379.000 € V rokovaní
Miesto: Burggrumbach (obec Unterpleichfeld), Fischergasse 6
Typ objektu: Dvojrodinný dom s upraveným podkrovím
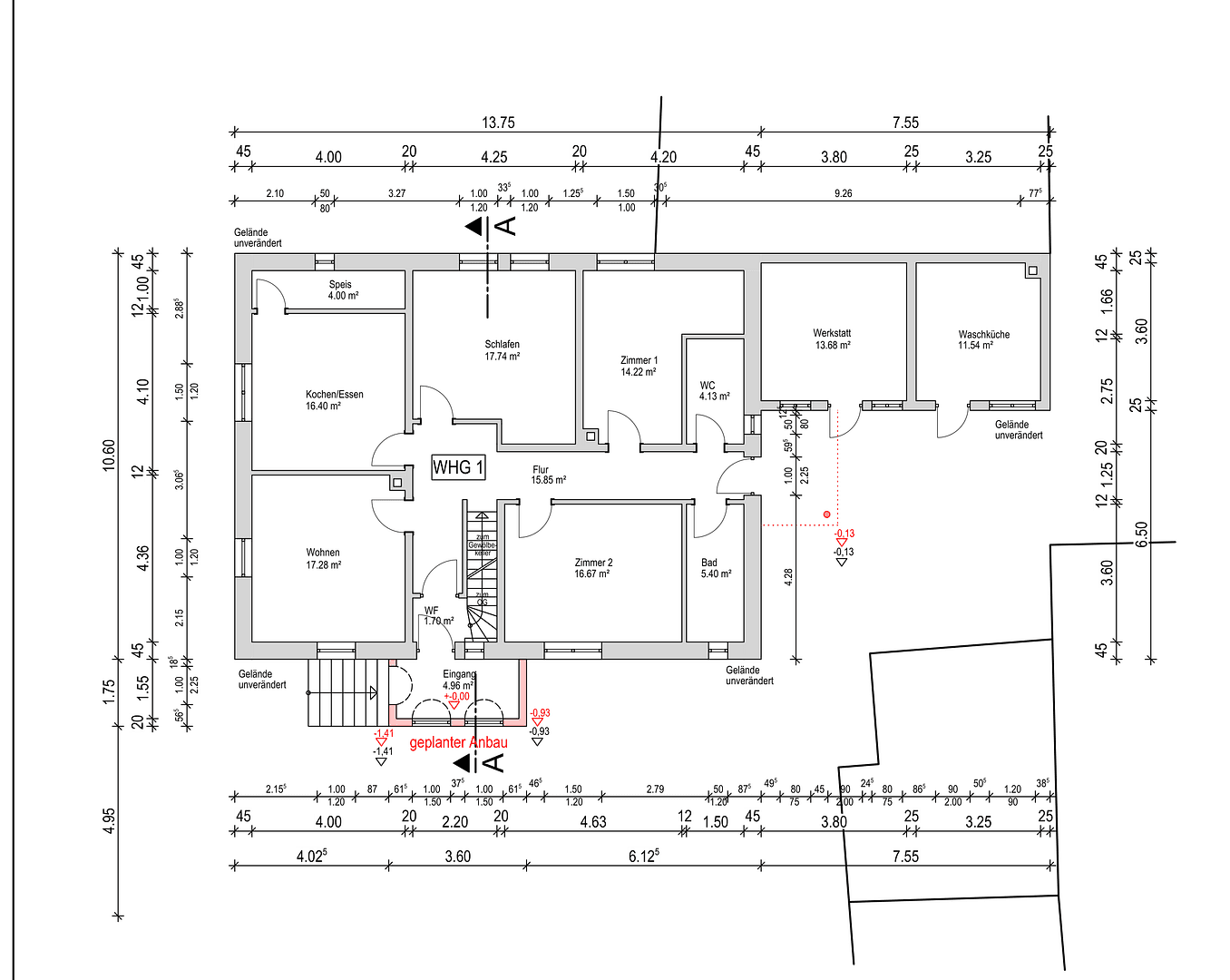
Obytná plocha: cca 286 m²
Prízemie: cca 113 m²
1. poschodie: cca 113 m²
Podkroví: cca 60 m² pripočítateľné (prístup cez vnútorné schody z 1. poschodia)
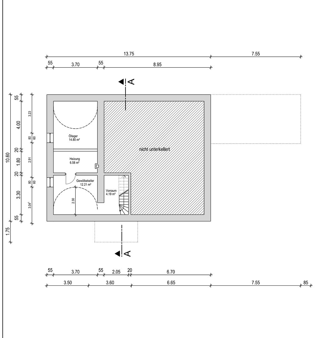
Pozemok: cca 366 m²
Izby: 10
Kúpeľne/WC: Prízemie 1 kúpeľňa + samostatné WC / 1. poschodie 2 kúpeľne
Prídavné priestory: dielňa/bývalý stajňa cca 13,68 m², práčovňa cca 11,54 m², skladovacie priestory
Garáže: 2 (s veľkou terasou nad nimi)
Kúrenie: olejové centrálne kúrenie (ročník 2005/2006), nádrž s objemom 8 000 litrov
Okná: cca 80 % plastové okná nové (2025)
Elektroinštalácia: počas rokov prispôsobovaná, naposledy rozšírená/obnovená v roku 2016
Provízia: Súkromný predaj, žiadna provízia pre kupujúceho
Popis
Na predaj je veľmi priestranný dvojrodinný dom s upraveným podkroviom v Burggrumbachu (obec Unterpleichfeld). Dom ponúka celkovo cca 286 m² obytného priestoru a vďaka svojej veľkosti a dispozícii je ideálny ako viacgeneračný dom, pre priestranné bývanie so samostatným bytom alebo pre kupujúcich, ktorí chcú objekt s ďalším využitím rozvinúť.
Dispozícia:
Prízemie (cca 113 m²): 4 izby, kuchyňa, kúpeľňa, samostatné WC, chodba
1. poschodie (cca 113 m²): 4 izby, kuchyňa, 2 kúpeľne, chodba
Podkroví (cca 60 m² pripočítateľné): upravené, izolované, svetlé miestnosti s oknami v strešnej konštrukcii
Poznámka: Podkroví je prístupné cez vnútorné schody z 1. poschodia a tvoria s ním jednu jednotu (nie samostatný byt).
Stav / Potreba modernizácie
Nehnuteľnosť je celkovo na rekonštrukciu – kúpna cena to zohľadňuje.
V prízemí a 1. poschodí je potrebné prepracovať či obnoviť väčšinu povrchov (steny/stropy/podlahy).
Kúpeľne (prízemie aj 1. poschodie) vyžadujú rekonštrukciu a nevyhovujú dnešnému štandardu.
Vchodové dvere a vnútorné dvere sú väčšinou v pôvodnom stave a z dnešného pohľadu už nie sú moderné.
Exteriér: Príjazdová cesta/dlažby sú už opotrebované; spodná časť fasády je potrebná na obnovu.
Vonkajšia obálka: omietka/fasáda je v zásade v poriadku (možná optická obnova).
Strecha: izolovaná; krytina z valcovaných plechov
Prehliadka / Postup
Prehliadky budú pravdepodobne možné až od polovice marca, keďže dom sa momentálne ešte vyprázdňuje a pripravuje.
Radi zaregistrujem záujemcov do zoznamu a ozvem sa, keď prehliadky začnú, aby sme dohodli termín.
V prípade záujmu, prosím, uveďte stručne:
Telefónne číslo
Účel – vlastné bývanie alebo investícia
či máte financovanie v podstate vyriešené
Súkromný predaj bez provízie pre kupujúceho. Údaje bez záruky.
Parametre nehnuteľnosti
| Vek | Nad 50 rokov |
|---|---|
| Číslo inzerátu | 994966 |
| Úžitková plocha | 286 m² |
| Celkové poschodia | 2 |
| Stav | Pred rekonštrukciou |
|---|---|
| PENB | F - veľmi nehospodárne |
| Plocha pozemku | 336 m² |
| Cena za jednotku | 1 325 € / m2 |
Čo táto nehnuteľnosť ponúka?
| Balkón | |
| Pivnica | |
| Parkovanie | |
| Terasa |
| Bezbariérový prístup | |
| Garáž | |
| MHD 2 minúty pešo |
V okolí nehnuteľnosti nájdete
Stále hľadáte to pravé?
Nastavte si strážneho psa. Ponuky vybrané na mieru dostanete súhrnne 1× denne e-mailom. S Premium profilom máte po ruke rovno 5 strážcov a keď sa niečo objaví, informujú vás obratom.








