Prenájom domu 5+1 • 145 m² bez realitkyVon-Kahr-Straße 27e München Untermenzing Bayern 80997
Von-Kahr-Straße 27e München Untermenzing Bayern 80997MHD 1 minúta pešo • ParkovanieExkluzívny novostavbový luxusný radový dom v najžiadanejšej lokalite Unter-/Obermenzing, takmer ako prvé bývanie (dokončenie novostavby 03.2025). Nehnuteľnosť sa prenajíma vrátane luxusnej vstavanéj kuchyne s renomovanými značkovými spotrebičmi (inštalácia v septembri 2025).
V absolútne pokojných a žiadaných podmienkach medzi Unter- a Obermenzingom vás očakáva tento architektonicky náročný radový dom novostavby od 01.04.2026.
Už po len roku používania sa nehnuteľnosť prezentuje v stave ako nová, bez akýchkoľvek nedostatkov.
Moderná loftová architektúra bez šikmých striech vytvára výnimočný pocit priestoru s maximálnou využiteľnosťou. Priestranné okná a dokonalá orientácia na juhozápad zabezpečujú svetlom zaplavené miestnosti a exkluzívnu atmosféru bývania. V kombinácii s radovým stredovým domom je táto stavba mimoriadne energeticky úsporná a efektívna.
Starostlivo novo upravená záhrada s juhozápadnou terasou v prízemí a impozantná strešná terasa v penthouse štýle ponúkajú slnečné miesta na ústup, kde si môžete vychutnať súkromie.
Jednoducho povedané: štýlový domov pre náročných nájomcov, ktorí ocenia moderný dizajn a prvotriedne materiály v západnej časti Mníchova.
Ulica Von-Kahr-Straße 29e sa nachádza dozadu, v druhej, tichej oblasti jednej z najžiadanejších rezidenčných lokalít v západnom Mníchove, v pôvabnej mestskej štvrti München-Untermenzing. Tu sa spája historicky vybudovaná, vilová obytná zástavba s vynikajúcou infraštruktúrou – ideálna pre rodiny s vyššími nárokmi.
Všetky školy, materské školy aj stredné vzdelávacie inštitúcie sú pohodlne dostupné pešo. Rovnako sú v bezprostrednej blízkosti obchody dennej potreby, pekárne, supermarkety, lekárne aj lekári rôznych špecializácií. Každodenný život sa tu dá organizovať pohodlne a uvoľnene bez dlhých presunov. Lokalita spája mestský komfort, vynikajúcu infraštruktúru a vysokú kvalitu bývania.
Skvelé prepojenie s MHD:
– Autobusová zastávka liniek MVG (162, 164, 165, X80, N78) je prakticky priamo pred dverami (menej ako 100 metrov).
– Stanica S-Bahn München Untermenzing so spojnica S2 je vzdialená menej ako 600 metrov, teda pešo za menej ako 8 minút, prípadne dostupná autobusom.
– Blízka stanica S-Bahn München-Untermenzing zaisťuje rýchle prepojenie do centra aj smerom na Dachau a okolie, čo ešte viac zvyšuje atraktivitu lokality pre dochádzajúcich pracovníkov aj rodiny.
Obzvlášť výrazná je naprotiľahajúca vilová obytná kolónia so starostlivo udržiavanými záhradami a rozsiahlym stromovým porastom, ktorá dodáva okoliu pokojnú, štýlovú a reprezentatívnu atmosféru, lákajúcu na usídlenie a zotrvanie.
Vybavenie spĺňa najvyššie nároky:
• Ušľachtilé podlahy z masívneho dreva
• Exkluzívne talianske prírodné kameňové dlaždice
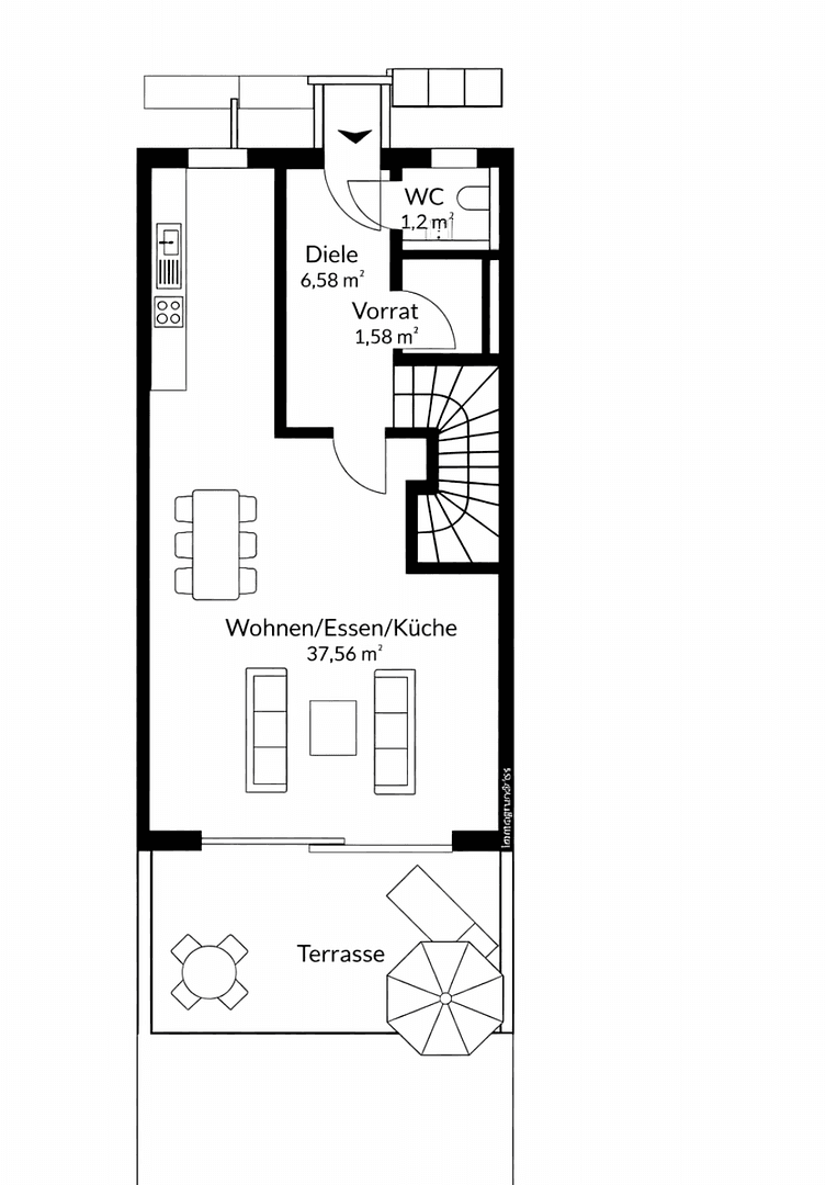
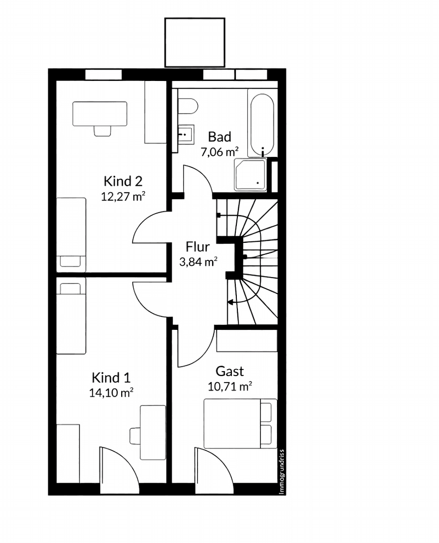
• Dve vysoko kvalitné sprchovacie zóny od podlahy po strop (prízemie a poschodie)
• Hlavná kúpeľňa s vaňou
• Hosťovské WC so sprchou v prízemí
• Veľkorysý pivničný priestor s oddelenou vykurovacou a práčovňou
• Parkovacie miesto priamo pred domovými dverami
Priekopnícky, energeticky úsporný spôsob výstavby podľa predpisov GEG 2020
• Masívna tehálna stavba
• Energeticky úsporné tepelné čerpadlo
• Podlahové kúrenie vo všetkých miestnostiach (s individuálnou reguláciou)
• Riadený ventilačný systém vo všetkých obytných priestoroch so systémom rekuperácie tepla
• Plastové okná s trojitým zasklením
• Elektrické ovládanie roliet
Novostavba bola pripravená na nastahovanie na začiatku roka 2025 a bola prenajatá ako prvé bývanie od 01.03.2025, takže ju možno chápať ako „prvé bývanie v novostavbe“.
Parkovacie miesto priamo pred dverami sa prenajíma za 60,00 EUR mesačne.
Parametre nehnuteľnosti
| Vek | Nad 50 rokov |
|---|---|
| Stav | Veľmi dobrý |
| Číslo inzerátu | 994536 |
| Úžitková plocha | 145 m² |
| Celkové poschodia | 3 |
| Dostupné od | 1. 4. 2026 |
|---|---|
| Dispozícia | 5+1 |
| PENB | A - Mimoriadne úsporné |
| Plocha pozemku | 216 m² |
| Cena za jednotku | 23 € / m2 |
Čo táto nehnuteľnosť ponúka?
| Balkón | |
| Parkovanie | |
| Terasa |
| Pivnica | |
| MHD 1 minúta pešo |
V okolí nehnuteľnosti nájdete
Stále hľadáte to pravé?
Nastavte si strážneho psa. Ponuky vybrané na mieru dostanete súhrnne 1× denne e-mailom. S Premium profilom máte po ruke rovno 5 strážcov a keď sa niečo objaví, informujú vás obratom.






















