
Prenájom bytu 2+1 • 49 m² bez realitkyAugsburg Haunstetten Bayern 86179
Augsburg Haunstetten Bayern 86179MHD 3 minúty pešo • Výťah • GarážNaša obytná budova sa nachádza v Haunstetten v Olympiastraße a bola dokončená v októbri 2024.
Obytná budova disponuje 21 bytami, ktoré sa rozkladajú na 4 poschodiach.
Objekt je situovaný v peknej obytné oblasti, priamo vedľa školy. Disponuje podzemnou garážou, pivnicou na bicykle, izbou pre detské kočíky a vlastným ihriskom.
Byty majú v predsieni, obývacej izbe a spálni ľahko udržiavateľnú vinylovú podlahu v teplej drevenej optike a sú vybavené prípojkou na práčku. Pôdorysy všetkých bytov sú otvorené a svetlé. Byty v prízemí majú terasu so záhradou, byty na poschodiach balkón a strešné byty vlastnú strešnú terasu.
Vysoký komfort poskytuje výťah, ktorý spája rozľahlý pivničný priestor s jednotlivými poschodiami.
Jedinečnosťou tejto obytné budovy je tzv. Eisspeicher (ľadový zásobník). Tento vysoko moderný vykurovací systém udržiava náklady na energiu pre nájomcu veľmi nízke a v lete môže byť využitá chladivá funkcia.
Moderná obytná budova sa nachádza v pokojnej oblasti v augsburskej časti Haunstetten, ktorá leží južnejšie od centra mesta. Vďaka svojej bezprostrednej polohe pri Siebentischwald ponúka vysokú kvalitu života a je ideálna pre príjemné prechádzky alebo pohodové fitness trasy. V okolí je množstvo možností na stravovanie – od tradičnej domácej kuchyne až po čínsku či taliansku reštauráciu.
Krásne Haunstetten sa vyznačuje predovšetkým špičkovou infraštruktúrou, veľmi dobrou občianskou vybavenosťou a prítomnosťou materských škôl a základných škôl.
Okrem toho má táto časť rýchle a dobré spojenie do centra Augsburgu, ktoré umožňujú dve tramvajové linky a niekoľko autobusových zastávok.
Cestujúci do práce majú tiež veľkú výhodu: rýchle spojenie cez cestnú cestu B17 na diaľnice A8 alebo A96.
Objekt sa nachádza v živom prostredí v Augsburgu.
Uniklinik je dosiahnuteľná približne do 10 minút verejnou dopravou a Uni Augsburg do približne 12 minút verejnou dopravou, prípadne ešte rýchlejšie na bicykli.
V blízkosti premáva niekoľko autobusových liniek. Pešo dosiahnete niekoľko reštaurácií, supermarkety, dve pekárne, dvoch lekárov a kaviareň. Okrem toho sú tu aj fitness centrá, kaderníctva, módny obchod, fyzioterapeutická ordinácia a aj poštová predajňa.
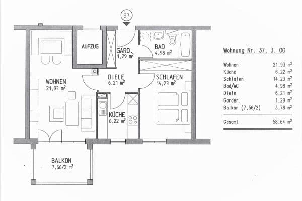
Ponúkaný 2-izbový byt (č. 17) sa nachádza v 2. poschodí a disponuje veľkým obývaco-jedálenským a kuchynským priestorom. Disponuje priestranným balkónom orientovaným na juh.
Kuchynský priestor je vybavený kvalitnou kuchynskou linkou so zabudovanými elektrickými spotrebičmi.
Cez predsieň vo vchodovej časti sa dostanete do kúpeľne, ktorá je vybavená prístupnou sprchou, toaletou a umývadlom. Je tu plánovaný aj výklenok pre práčku, ktorý zabezpečí jej ľahkú dostupnosť, pričom nebude dominovať celému priestoru kúpeľne.
Priestranná spálňa je priamo prístupná z obývacieho jedálenského priestoru a je oddelená posuvnými sklenenými dverami.
Vážení záujemcovia o prenájom,
vezmite prosím na vedomie, že bohužiaľ nemôžeme odpovedať na každú požiadavku jednotlivo.
Správy obsahujúce niektoré osobné údaje (napríklad počet osôb, ktoré sa sťahujú, povolanie, atď.) budeme uprednostňovať.
Ďakujeme za pochopenie.
Tešíme sa na vašu kontaktovanie.
Parametre nehnuteľnosti
| Vek | Nad 50 rokov |
|---|---|
| Dispozícia | 2+1 |
| Číslo inzerátu | 994278 |
| Úžitková plocha | 49 m² |
| Stav | Veľmi dobrý |
|---|---|
| Poschodie | 2. poschodie z 4 |
| PENB | A - Mimoriadne úsporné |
| Cena za jednotku | 19 € / m2 |
Čo táto nehnuteľnosť ponúka?
| Balkón | |
| Garáž | |
| MHD 3 minúty pešo |
| Pivnica | |
| Výťah |
V okolí nehnuteľnosti nájdete
Stále hľadáte to pravé?
Nastavte si strážneho psa. Ponuky vybrané na mieru dostanete súhrnne 1× denne e-mailom. S Premium profilom máte po ruke rovno 5 strážcov a keď sa niečo objaví, informujú vás obratom.





