Prenájom domu 4+1 • 130 m² bez realitky, Dolné Sasko
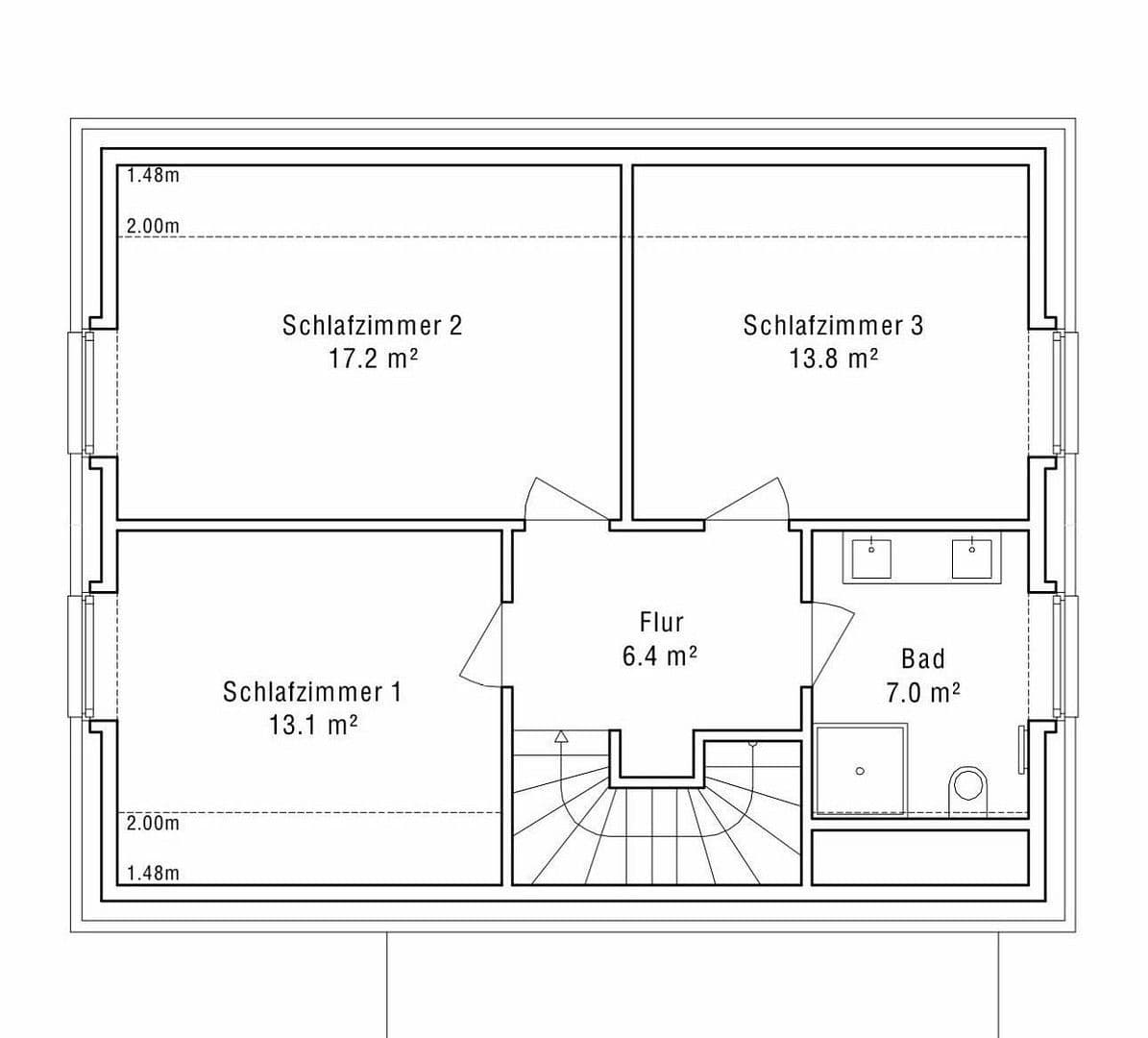
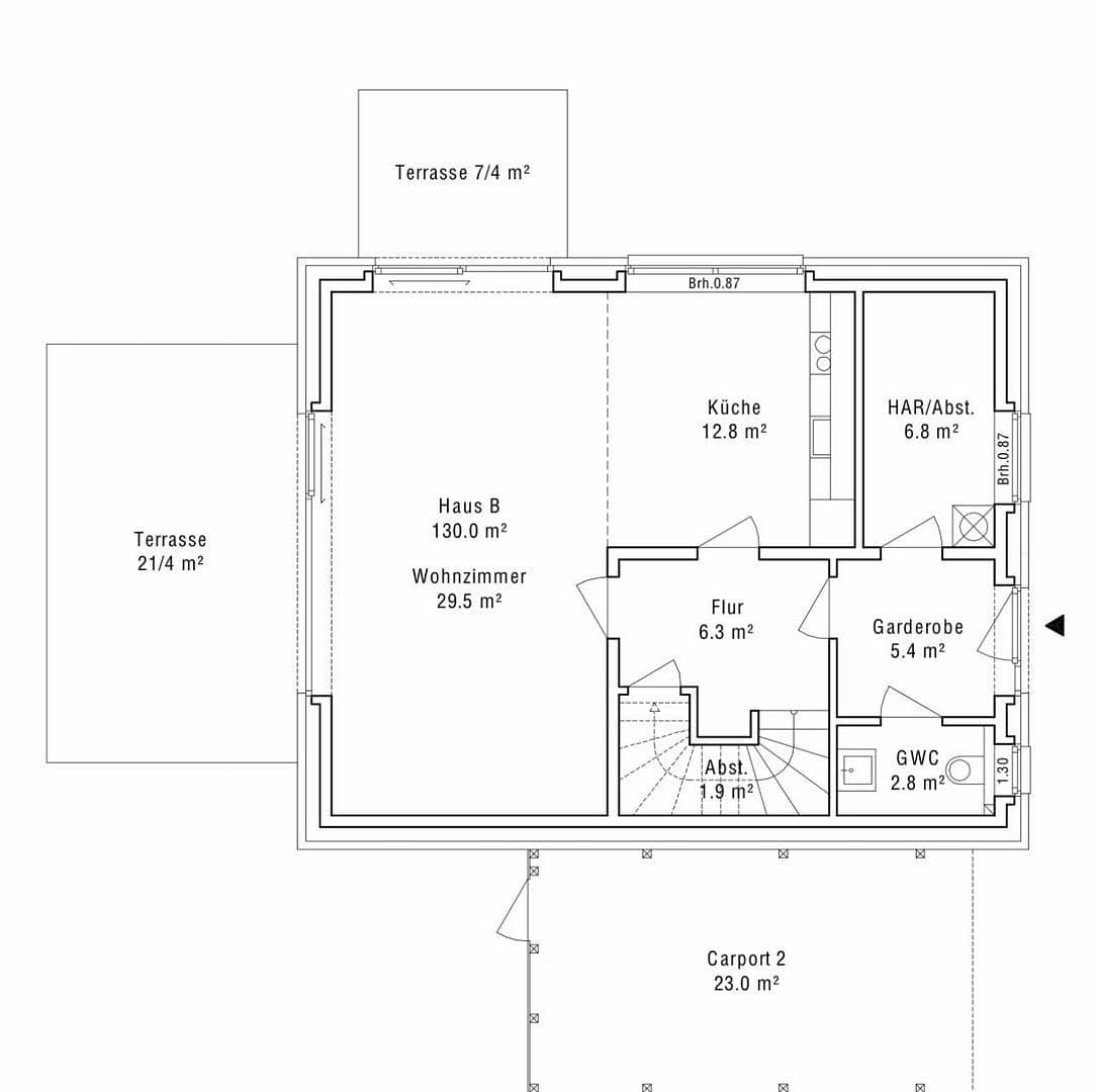
, Dolné SaskoMHD do minúty pešo • ParkovanieTento atraktívny rodinný dom ponúka na 130 m² obytného priestoru všetko, čo potrebujete pre komfortný rodinný život. S celkovo 4 izbami, vrátane 3 priestranných spální, je dostatok miesta pre celú rodinu.
Moderná sprchová kúpeľňa a dodatočná hostinská toaleta zaisťujú extra komfort. Priestranná vstavaná kuchyňa vás pozýva variť a posedieť si, pričom ponúka dostatok úložného priestoru pre vaše kuchynské potreby.
Celkovo dom využíva príjemné podlahové kúrenie, ktoré vytvára útulnú atmosféru – ideálne pre chladné dni.
Jednoducho udržiavateľná záhrada so dvoma terasami vám umožní vychutnať si slnko a stráviť uvoľnené chvíle vonku. Tu si môžete prírodu vychutnať naplno a užiť si príjemné spoločenské večery.
Carport poskytuje dodatočnú ochranu pre vaše vozidlo, čím túto atraktívnu ponuku ešte doladí.
Zažite dokonalú kombináciu moderného obytného komfortu a pokojného, rodinne prívetivého prostredia.
Dom sa nachádza v obľúbenej rezidenčnej oblasti Achim Baden, blízko rieky Weser, obklopený zelenými lúkami a lesmi, ideálny pre milovníkov prírody a rodiny. Mesto Achim vám ponúka vynikajúcu infraštruktúru s obchodmi, školami a voľnočasovými aktivitami v bezprostrednej blízkosti. Vďaka napojeniu na diaľnicu a verejnú dopravu máte rýchly prístup do miest Bremen a Hannover.
Tento nízkoenergetický dom zaujme svojím premysleným stavebným riešením a udržateľnými technológiami. Vysokokvalitná fotovoltaická inštalácia na streche zabezpečuje ekologickú výrobu energie a znižuje vaše náklady na elektrinu. Efektívne vzduch-voda tepelné čerpadlo vám navyše garantuje príjemnú atmosféru v každom ročnom období.
V prízemí vás čaká veľký obývací a jedálenský priestor, ktorý je otvorene spojený s modernou kuchyňou. Táto svetlá miestnosť je ideálna pre spoločenské večery a rodinné oslavy. Prízemie je kompletne vybavené svetlými dlaždicami, zatiaľ čo prvé poschodie pôsobí vysoko kvalitným dreveným parketom, ktorý vytvára teplú atmosféru. Prémiové vybavenie podčiarkuje moderný charakter tejto nehnuteľnosti a zaisťuje veľmi príjemné obytné prostredie. Všetky okná sú vybavené roletami, ktoré poskytujú dodatočné súkromie aj optimálne zatienenie.
Parametre nehnuteľnosti
| Vek | Nad 50 rokov |
|---|---|
| Stav | Veľmi dobrý |
| Číslo inzerátu | 994267 |
| Plocha pozemku | 510 m² |
| Cena za jednotku | 14 € / m2 |
| Dostupné od | 1. 3. 2026 |
|---|---|
| Dispozícia | 4+1 |
| Úžitková plocha | 130 m² |
| Celkové poschodia | 2 |
Čo táto nehnuteľnosť ponúka?
| Parkovanie | |
| Terasa |
| MHD 0 minút pešo |
V okolí nehnuteľnosti nájdete
Stále hľadáte to pravé?
Nastavte si strážneho psa. Ponuky vybrané na mieru dostanete súhrnne 1× denne e-mailom. S Premium profilom máte po ruke rovno 5 strážcov a keď sa niečo objaví, informujú vás obratom.










