Prenájom domu 6+1 • 186 m² bez realitkyBiberweg 18, , Bavorsko
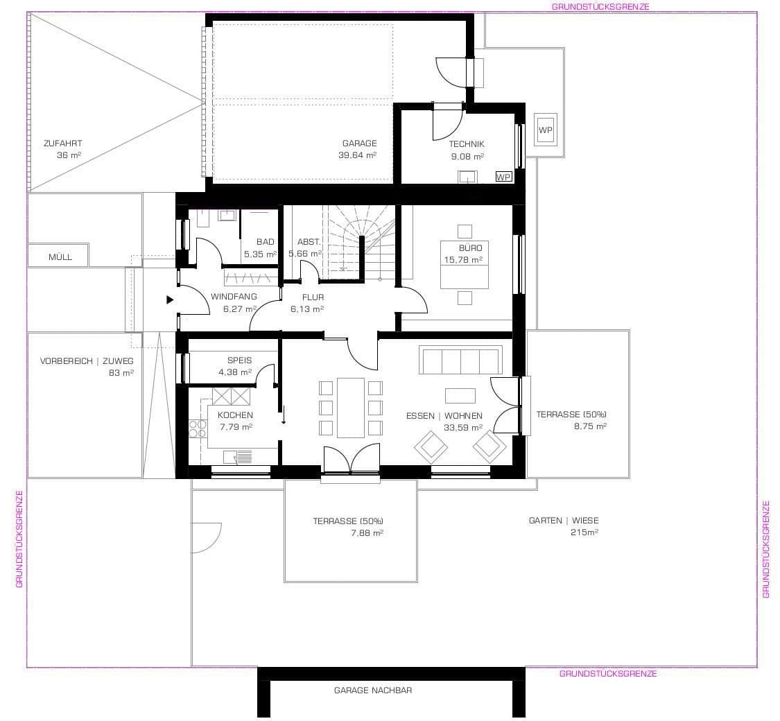
Biberweg 18, , BavorskoMHD 3 minúty pešo • Parkovanie • GarážTáto novo postavená rodinná dom s približne 186 m² obytných priestorov a 537 m² pozemku sa nachádza v pokojnej lokalite Abensberg v novostavbovom území Gaden-Süd. Dom ponúka veľkorysý obytný priestor rozložený na dvoch poschodiach a je vhodný pre flexibilný koncept bývania/práca z domu. Disponuje 6 svetlými a priepustnými obytnými miestnosťami. V prízemí sa okrem priestrannej obývacej/jedálenskej miestnosti a kuchyne so spojenou jedálňou nachádza aj kancelária; ďalej je k dispozícii WC so sprchou a úložná miestnosť.
Na hornom poschodí sa nachádzajú 4 spálne, kúpeľňa a práčková miestnosť s prípojkami pre práčku a sušičku. V prízemí je zabezpečená bezbariérovosť vnútorných priestorov, čím sa zvyšuje komfort bývania. Domáce zvieratá sú povolené po dohode.
V záhrade boli vytvorené 2 terasy s granitovým obkladom, orientované na východ a juh. Na povale sa nachádza veľký dodatočný úložný priestor.
Kúrenie domu zabezpečuje podlahové kúrenie prostredníctvom vzduch-voda tepelného čerpadla.
Garáž ponúka miesto pre 2 vozidlá a dodatočný úložný priestor; je pripravené pripojenie pre wallbox. Na pravej strane pozemku sa nachádzajú ešte 2 vonkajšie parkovacie miesta. Nájomné za garáže je navyše 100,- €.
Dom bol práve dokončený a je k nastěhovaniu ihneď po dohode. Prenájom prebieha súkromne a je bezprovízný.
Abensberg, nachádzajúci sa v okrese Kelheim v srdci Dolného Bavorska, ponúka pôvabnú mestskú atmosféru s dobrej infraštruktúrou a je známy nadregionálne vďaka Gillamoos festivalu a veži Hundertwasser. Obchody pre denné potreby, ako aj lekári, školy a materská škola sú dobre dostupné – nákupné centrum Abensberg sa nachádza približne 1 km vzdialené. Doprava je vynikajúca, cesta B16 je v bezprostrednej blízkosti a prípojka na diaľnicu A93 Mníchov-Regensburg je dostupná do 5 minút. Regensburg, Landshut a Ingolstadt sú vzdialené približne 40 km, zatiaľ čo Mníchov je asi 90 km ďaleko.
Vonkajšie steny sú z tepelne izolačných tehál s hrúbkou 42,5 cm, čo spolu s trojsklenými oknami prispieva k vynikajúcej izolácii. Obytné miestnosti sú vybavené parketou z prírodného dreva, kým chodby a kúpeľne sú obložené kvalitnými dlaždicami.
Kuchyňa je oddelená od obývacej/jedálenskej miestnosti posuvnými dverami a je vybavená kvalitnými značkovými spotrebičmi – indukčnou varnou doskou, umývačkou riadu a chladno-mrazniacou kombináciou. Voda v dome je upravená pomocou zariadenia na zmäkčovanie vody. V kúpeľni a na WC sa nachádza sprcha bez prahu, pričom na hornom poschodí je v kúpeľni aj vaňa.
Dom disponuje optickým pripojením, na streche je umiestnená satelitná anténa. Všetky obytné miestnosti sú vybavené sieťovou zásuvkou a pripojením pre satelitnú televíziu. Vetranie miestností je zabezpečené decentralizovaným ventilačným systémom. Osvetlenie (v obývacej/jedálenskej miestnosti nastaviteľné), teplota v miestnostiach a elektrické rolety či žalúzie v prízemí sú riadené moderným KNX domácim systémom cez displeje s dotykovými tlačidlami. Videointerkomunikačný systém je ovládateľný z prízemia aj z horného poschodia.
Parametre nehnuteľnosti
| Vek | Nad 50 rokov |
|---|---|
| Stav | Novostavba |
| Číslo inzerátu | 994235 |
| Úžitková plocha | 186 m² |
| Celkové poschodia | 2 |
| Dostupné od | 25. 2. 2026 |
|---|---|
| Dispozícia | 6+1 |
| PENB | A - Mimoriadne úsporné |
| Plocha pozemku | 537 m² |
| Cena za jednotku | 11 € / m2 |
Čo táto nehnuteľnosť ponúka?
| Garáž | |
| MHD 3 minúty pešo |
| Parkovanie | |
| Terasa |
V okolí nehnuteľnosti nájdete
Stále hľadáte to pravé?
Nastavte si strážneho psa. Ponuky vybrané na mieru dostanete súhrnne 1× denne e-mailom. S Premium profilom máte po ruke rovno 5 strážcov a keď sa niečo objaví, informujú vás obratom.



















