
Predaj bytu 3+kk • 90 m² bez realitky, Hesensko
, HesenskoMHD 1 minúta pešo • ParkovanieTento pôvabný prízemný byt zaujme premysleným rozložením priestorov, príjemnými svetelnými podmienkami a pocitom bývania, ktorý okamžite očarí. Je ideálny pre páry, malé rodiny alebo investorov, ktorí hľadajú spoľahlivú a hodnotovo stabilnú investíciu.
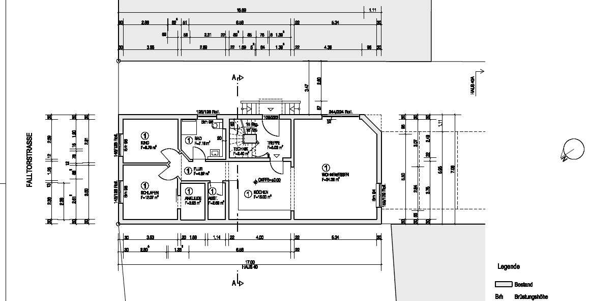
Byt ponúka:
• Priestranné, dobre rozvrhnuté izby
• Príjemnú prízemnú polohu – pohodlnú a bez bariér
• Svetlú, príjemnú atmosféru bývania
• Univerzálne možnosti využitia
• KfW efektívny dom 70
• Energetická spotreba 20,8 kWh, A+ dom s tepelné čerpadlo
• Prevádzkové náklady za posledné 3 roky v priemere cca 160 € mesačne vrátane poistenia budovy
Tu si vychutnáte kvalitu bývania, ktorá je zároveň praktická aj na každodenné použitie.
Byt sa nachádza v atraktívnej a ustálenej lokalite Biebesheim am Rhein. Ulica Falltor sa vyznačuje centrálnou, no zároveň pokojnou polohou v srdci obce, čo ponúka ideálnu kombináciu vysokej životnej kvality a praktickej infraštruktúry. Lokalita je situovaná na okraji polí.
Nehnuteľnosť sa nachádza v žiadanej časti s dobrou infraštruktúrou. Obchody, školy, verejná doprava a voľnočasové možnosti sú ľahko dostupné – ideálne pre pohodlný život s krátkymi trasami.
Obchodné príležitosti:
V bezprostrednej blízkosti (cca 10–15 minút pešo) sa nachádza viacero predajní pre každodenné potreby, vrátane moderného obchodu Netto Marken-Discount (Stockstädter Str. 29).
Vzdelávanie a starostlivosť:
Rodiny profitujú z blízkosti Nibelungenschule (základná škola), ktorá je vzdialená len niekoľko minút. Tiež sú pohodlne dostupné materské školy a radnica.
Gastronomické prevádzky sa nachádzajú v centre obce.
Dopravná dostupnosť – Ideálna pre dochádzajúcich:
Biebesheim je výborne integrovaný do oblasti Rýn-Majn a Rýn-Neckar:
• Železničná doprava: Stanica Biebesheim ponúka pravidelné spoje do Darmstadtu, Frankfurtu nad Mohanom (cestovný čas cca 34–45 min.) a Mannheimu.
• Cestná sieť: Prostredníctvom cesty B44 a blízkych diaľnic A67 a A5 sú hospodárske centrá regiónu rýchlo dostupné. Frankfurt a Mannheim sú vzdialené približne 30 minút autom.
Voľný čas a oddych:
Blízkosť rieky Rýn a okolitých chránených prírodných oblastí (napr. Kühkopf-Knoblochsaue) pozýva na dlhé prechádzky, cyklistické výlety a aktivity v prírode.
Či už hľadáte nové bývanie alebo investíciu, tento prízemný byt vám ponúka vynikajúcu kombináciu lokality, komfortu a perspektívy do budúcnosti.
Vybavenie a výhody – Moderné. Efektívne. Vysokokvalitné.
Tento byt zaujme vybavením, ktoré nezanecháva žiadne želania neuspokojené a zaručuje najvyšší komfort bývania:
Už pri vstupe pocítite mimoriadne priestranný pocit z miestností. Obrovský obývací priestor s integrovaným, rozsiahlym jedálenským kútom tvorí srdce bytu – ideálne pre rodinný život a spoločenské večery.
Priestor je navyše doplnený o:
• samostatnú kuchyňu
• hosťovskú toaletu
• detskú izbu/kanceláriu
• spálňu s vlastnou šatňou
• priestrannú kúpeľňu s denným svetlom, sprchou, ohrievačom uterákov a vysoko kvalitnými armaturami
Technické a energetické výhody:
• Kompletné podlahové kúrenie vo všetkých miestnostiach
• Digitálne termostaty pre presné riadenie teploty
• Nízkoenergetický dom A+ – energeticky úsporný a perspektívny
• Trojnásobné tepelnoizolačné zasklenie
• Elektrické žalúzie
• Videodverový zvonček pre zvýšenú bezpečnosť
• Dátové a sieťové káble položené v obytných priestoroch
Vysoko kvalitné interiérové vybavenie:
• Moderná, veľmi kvalitná vinylová podlaha s klikacím systémom vo všetkých miestnostiach
• Svetlá kúpeľňa s denným svetlom a štýlovou sprchou
• Vysoko kvalitné armatury a premyslené detaily
• Stav bytu umožňujúci okamžité nastahovanie bez nutnosti renovácie
Parametre nehnuteľnosti
| Vek | Nad 50 rokov |
|---|---|
| Stav | Veľmi dobrý |
| Číslo inzerátu | 994137 |
| Úžitková plocha | 90 m² |
| Dostupné od | 1. 3. 2026 |
|---|---|
| Dispozícia | 3+kk |
| PENB | A - Mimoriadne úsporné |
| Cena za jednotku | 3 956 € / m2 |
Čo táto nehnuteľnosť ponúka?
| Parkovanie |
| MHD 1 minúta pešo |
V okolí nehnuteľnosti nájdete
Stále hľadáte to pravé?
Nastavte si strážneho psa. Ponuky vybrané na mieru dostanete súhrnne 1× denne e-mailom. S Premium profilom máte po ruke rovno 5 strážcov a keď sa niečo objaví, informujú vás obratom.





















