
Prenájom bytu 2+kk • 71 m² bez realitkySüdwestkorso 56 Berlin Wilmersdorf Berlin 14197
Südwestkorso 56 Berlin Wilmersdorf Berlin 14197MHD 1 minúta pešoDiese wunderschöne 2,5-Zimmer-Wohnung befindet sich im 1. Obergeschoss eines gepflegten Hauses in Friedenau und überzeugt durch ihre zentrale und zugleich ruhige Lage.
Tento nádherný 2,5-izbový byt sa nachádza v 1. poschodí udržiavaného domu vo Friedenau a zaujme svojou centrálnou, no zároveň pokojným umiestnením.
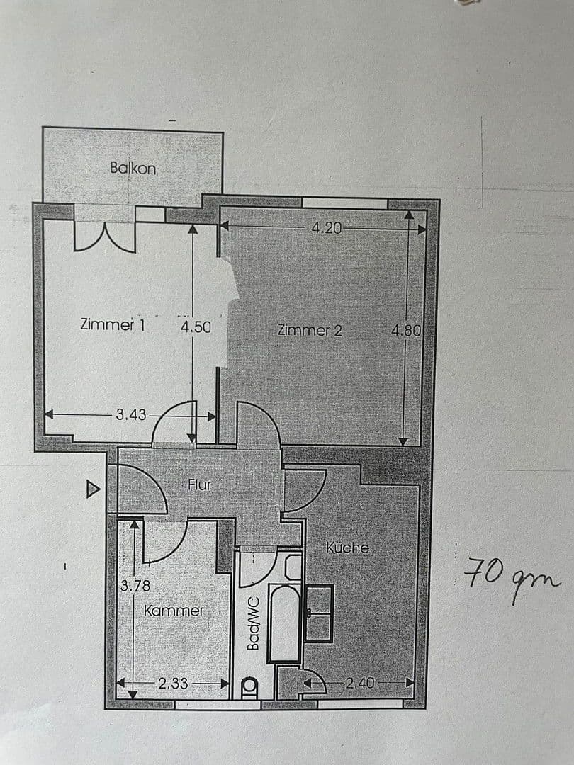
Das Schlafzimmer sowie das Wohnzimmer sind zum großzügigen, liebevoll begrünten Innenhof ausgerichtet und schaffen eine besonders angenehme und ruhige Wohnatmosphäre. Beide Räume sind durch eine stilvolle Flügeltür miteinander verbunden.
Spálňa aj obývacia izba sú orientované k priestrannému, starostlivo upravenému vnútornému dvoru, čím vytvárajú mimoriadne príjemnú a pokojnú atmosféru bývania. Obe miestnosti sú prepojené štýlovými krídlovými dverami.
Die nach Süden ausgerichtete Loggia, ebenfalls hofseitig gelegen, lädt sowohl an sonnigen Sommertagen als auch an kühleren Tagen zum Verweilen ein und bietet einen wunderbaren Rückzugsort für alle, die Ruhe und Natur schätzen.
Na juh orientovaná loggia, taktiež smerom k dvoru, láka na oddych počas slnečných letných dní aj chladnejších dní a ponúka nádherné útočisko pre tých, ktorí si cenia pokoj a prírodu.
Straßenseitig befindet sich ein weiteres Zimmer, das flexibel als Gäste-, Kinder- oder Arbeitszimmer genutzt werden kann – ganz nach individuellem Bedarf.
Na straně ulice sa nachádza ďalšia izba, ktorú je možné flexibilne využiť ako izbu pre hostí, izbu pre deti alebo pracovňu – podľa individuálnych potrieb.
Die voll ausgestattete Küche verfügt über einen neuen Herd, eine Waschmaschine, einen Geschirrspüler sowie eine Kühl-Gefrierkombination. Das Badezimmer ist mit einer modernen Glasdusche ausgestattet und bietet trotz seiner kompakten Größe eine angenehme Wohlfühlatmosphäre.
Plne vybavená kuchyňa disponuje novou varnou doskou, práčkou, umývačkou riadu a kombináciou chladničky s mrazničkou. Kúpeľňa je vybavená modernou sprchou zo skla a napriek svojej kompaktnej veľkosti ponúka príjemnú a pohodovú atmosféru.
Die Wohnung wird möbliert vermietet und ist somit sofort bezugsfertig. Ein Mietvertrag mit einer Laufzeit von 1 bis 5 Jahren ist möglich.
Byt sa prenajíma s nábytkom a je teda okamžite k dispozícii. Je možná nájomná zmluva na dobu od 1 do 5 rokov.
Die Warmmiete beträgt 1.750 €. Strom und Internet sind vom Mieter separat zu zahlen.
Mesačný nájom vrátane tepla je vo výške 1 750 €. Elektrina a internet sa platia nájomcom zvlášť.
ENGISCH
This beautiful 2.5-room apartment is located on the first floor of a well-maintained building in Friedenau, offering a central yet very quiet residential setting.
Tento nádherný 2,5-izbový byt sa nachádza v prvom poschodí udržiavaného domu vo Friedenau a ponúka centrálnu, no zároveň veľmi pokojnú lokalitu na bývanie.
Both the bedroom and the living room face a spacious, beautifully landscaped inner courtyard, creating a calm and pleasant living atmosphere. The two rooms are connected by elegant double doors, enhancing the sense of openness. The south-facing loggia, also overlooking the courtyard, is a true highlight and can be enjoyed throughout the year—perfect for relaxing and appreciating the greenery and tranquility.
Spálňa aj obývacia izba sú orientované k priestrannému, nádherne upravenému vnútornému dvoru, čo vytvára pokojnú a príjemnú atmosféru bývania. Obe miestnosti sú prepojené elegantnými dvojdverami, čo umocňuje pocit priestrannosti. Na juh orientovaná loggia, ktorá má výhľad na dvor, je skutočným zvýraznením a je vhodná na využitie počas celého roka – ideálna pre oddych a vychutnávanie zelene a pokoja.
An additional room facing the street can be used flexibly as a guest room, children’s room, or home office, depending on individual needs.
Ďalšia izba orientovaná k ulici môže byť flexibilne využitá ako izba pre hostí, detskú izbu alebo domácu kanceláriu, podľa individuálnych potrieb.
The fully equipped kitchen includes a new stove, washing machine, dishwasher, and a fridge-freezer combination. The bathroom, fitted with a glass-enclosed shower, offers a comfortable and welcoming atmosphere despite its compact size.
Plne vybavená kuchyňa obsahuje nový sporák, práčku, umývačku riadu a kombináciu chladničky s mrazničkou. Kúpeľňa, vybavená sprchou zo skla, ponúka pohodlnú a príjemnú atmosféru napriek svojej kompaktnej veľkosti.
The apartment is offered fully furnished and is ready for immediate occupancy. A fixed-term lease of 1 to 5 years is possible.
Byt sa ponúka kompletne zariadený a je pripravený na okamžité nasťahovanie. Je možná nájomná zmluva na pevne stanovené obdobie od 1 do 5 rokov.
The monthly rent is €1,750 including utilities. Electricity and internet are to be paid separately by the tenant.
Mesačný nájom vrátane poplatkov je 1 750 €. Elektrina a internet sa platia nájomcom zvlášť.
Die Wohnung befindet sich in einer der begehrtesten und charismatischsten Wohnstraßen im Berliner Stadtteil Friedenau – dem Südwestkorso. Dieser historische Alleenboulevard verbindet hochwertige Altbausubstanz mit einer lebendigen, grünen Nachbarschaft und zeichnet sich durch seine stilvollen Fassaden und die besondere Friedenaer Atmosphäre aus.
Byt sa nachádza v jednej z najžiadanejších a najcharizmatickejších obytných ulíc berlínskej štvrte Friedenau – na Südwestkorso. Tento historický bulvár lemovaný aleami spája kvalitnú historickú architektúru s živým, zeleným susedstvom a vyznačuje sa štýlovými fasádami a jedinečnou atmosférou Friedenau.
Friedenau gilt als einer der beliebtesten Wohnorte im Berliner Südwesten, betreut von kleinen Cafés, charmanten Boutiquen, traditionellen Restaurants und kulturellen Einrichtungen – ideal für alle, die urbanes Leben mit nachbarschaftlicher Ruhe verbinden möchten.
Friedenau je považovaný za jedno z najobľúbenejších bývacích miest v juhozápadnom Berlíne, obklopený malými kaviarňami, očarujúcimi butikmi, tradičnými reštauráciami a kultúrnymi zariadeniami – ideálny pre tých, ktorí chcú spojiť mestský život so susedským pokojom.
Die ruhige Lage in 14197 Berlin, eingebettet zwischen den grünen Straßen und Gründerzeitvillen, bietet eine perfekte Mischung aus städtischer Infrastruktur und entspannter Wohnqualität. In unmittelbarer Nähe finden Sie zahlreiche Einkaufsmöglichkeiten für den täglichen Bedarf sowie ein vielfältiges gastronomisches Angebot.
Pokojná lokalita v 14197 Berlíne, zasadená medzi zelené ulice a vilové budovy z obdobia Gründerzeit, ponúka dokonalú kombináciu mestských služieb a uvoľnenej kvality bývania. V bezprostrednej blízkosti nájdete množstvo obchodov pre každodenné potreby, ako aj širokú ponuku gastronomických zariadení.
Die Verkehrsanbindung ist exzellent: Mehrere U-Bahn-Stationen (wie U Rüdesheimer Platz, U Friedrich-Wilhelm-Platz und U Bundesplatz) sind fußläufig erreichbar und sorgen für schnelle Verbindungen ins Berliner Stadtzentrum sowie in alle Teile der Hauptstadt.
Dopravné spojenie je excelentné: niekoľko staníc metra (ako U Rüdesheimer Platz, U Friedrich-Wilhelm-Platz a U Bundesplatz) je pešo dostupných a zabezpečujú rýchle spojenie do berlínskeho centra aj do všetkých častí hlavného mesta.
Gleichzeitig ist der Südwestkorso ruhig und grün – ideal für Spaziergänge oder entspannte Stunden an der frischen Luft. Die Straße selbst sowie die umliegenden grünen Plätze und Alleen verleihen dem Quartier einen eigenen, charmanten Charakter und machen diesen Standort zu einem der attraktivsten Wohnadressen Berlins.
Zároveň je Südwestkorso pokojný a zelený – ideálny pre prechádzky alebo oddychové chvíle na čerstvom vzduchu. Ulica samotná, ako aj okolité zelené plochy a aleje dodávajú štvrti jedinečný, očarujúci charakter a robia z tejto lokality jednu z najatraktívnejších bývacích adries Berlína.
ENGLISCH
The apartment is located on the Südwestkorso in Friedenau, one of Berlin’s most sought-after residential neighborhoods. Known for its elegant historic buildings, leafy streets, and calm atmosphere, Friedenau offers a rare combination of urban living and tranquility.
Byt sa nachádza na Südwestkorso vo Friedenau, jednej z najvyhľadávanejších obytných štvrťí Berlína. Známý svojimi elegantnými historickými budovami, zeleňou lemovanými ulicami a pokojným prostredím, Friedenau ponúka jedinečnú kombináciu mestského života a pokoja.
The area is characterized by charming cafés, small shops, and excellent local amenities, all within easy walking distance. Public transport connections are very convenient, providing quick access to the city center and other parts of Berlin.
Táto oblasť je charakteristická očarujúcimi kaviarňami, malými obchodíkmi a vynikajúcimi miestnymi službami, všetko v dosahu pešej vzdialenosti. Dopravné spojenie verejnou dopravou je veľmi pohodlné, čo zabezpečuje rýchly prístup do centra mesta a do ďalších častí Berlína.
Overall, the location offers a high quality of life: quiet, green, and residential, yet perfectly connected and vibrant—ideal for those seeking a refined and comfortable Berlin lifestyle.
Celkovo táto lokalita ponúka vysokú kvalitu života: pokojná, zelená a obytná, no zároveň výborne prepojená a pulzujúca – ideálna pre tých, ktorí hľadajú vytýčený a komfortný berlínsky životný štýl.
Vollmöbliert, siehe Bilder
Kompletne zariadený, pozri obrázky
fully furnished like you can see on the pictures.
Kompletne zariadený, ako vidieť na obrázkoch.
Parametre nehnuteľnosti
| Dostupné od | 28. 2. 2026 |
|---|---|
| Poschodie | 1. poschodie |
| Úžitková plocha | 71 m² |
| Dispozícia | 2+kk |
|---|---|
| Číslo inzerátu | 994073 |
| Cena za jednotku | 23 € / m2 |
Čo táto nehnuteľnosť ponúka?
| Balkón |
| MHD 1 minúta pešo |
V okolí nehnuteľnosti nájdete
Stále hľadáte to pravé?
Nastavte si strážneho psa. Ponuky vybrané na mieru dostanete súhrnne 1× denne e-mailom. S Premium profilom máte po ruke rovno 5 strážcov a keď sa niečo objaví, informujú vás obratom.










































