
Predaj bytu 2+1 • 81 m² bez realitkyJežkova, Praha - Žižkov
NEPŘEJI SI, ABY MĚ ZA JAKÝCHKOLIV PODMÍNEK KONTAKTOVALI REALITNÍ MAKLÉŘI, ANI NABÍDKY AUKCÍ, VÝKUPŮ ČI JINÝCH OBDOBNÝCH NABÍDEK.
Jako přímý majitel nabízím ke koupi kompletně zrekonstruovaný prostor v osobním vlastnictví o celkové výměře 80,7 m2 dle prohlášení vlastníka domu, který se nachází na pomezí vyhledávaných lokalit Vinohrady a Žižkov, v klidné ulici Ježkova. Nemovitost je situována v přízemí domu a má vlastní samostatný bezbariérový vstup, což je její obrovskou výhodou. Přístup do jednotky je veden přes hlavní vstup do domu a následně pokračuje do klidného vnitrobloku, díky čemuž je zde zajištěno naprosté soukromí.
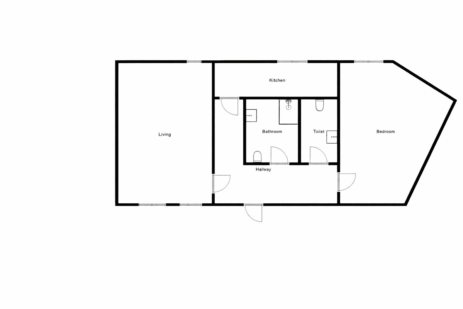
Dispozičně je prostor řešen jako 2+1 a součástí jsou dva samostatné neprůchozí pokoje, kuchyňský kout, koupelna se sprchovým koutem a toaletou a druhým samotným WC. Součástí nové kuchyňské linky je myčka nádobí, elektrická trouba se sklokeramickou deskou a dále digestoř s aktivním odtahem vzduchu. Výhodou celého prostoru jsou nadstandardně vysoké stropy, dále nové vinylové podlahy a také nové omítky dodávají prostoru moderní charakter. Vstupní chodba je tvořena designovou dlažbou. Prostor je zároveň vybaven klimatizací, která zajišťuje komfort i v letních měsících. Součástí rekonstrukce jsou také nové elektrické rozvody, vodovodní stoupačky a veškeré zednické práce.
Výraznou předností jsou velká okna orientovaná do dvou klidných vnitrobloků, přičemž jeden z vnitrobloků je využíván pouze třemi byty. Díky tomu je zde absolutní klid a dostatek denního světla po celý den a to i přesto, že se prostor nachází v širším centru města.
Dispozice je praktická nejen z pohledu pro vlastní bydlení, či kombinaci bydlení a práce, ale také i jako investičního využití.
Lokalita nabízí kompletní občanskou vybavenost – restaurace, kavárny, obchody i služby v bezprostředním okolí. V docházkové vzdálenosti se nachází náměstí Jiřího z Poděbrad, Žižkovská věž i hlavní nádraží, zastávky MHD jsou jen pár minut chůze.
Nemovitost je v současnosti vedena jako kancelář, přičemž byl zahájen proces rekolaudace, který povede ke změně užívání buď na bytovou jednotku, nebo ateliér. Proces rekolaudace probíhá bez komplikací také díky nadstandardním vztahům s SVJ, které se pozitivně promítají do celé administrace. Nového majitele rádi propojíme se všemi zapojenými stranami.
Dům zároveň prošel modernizací společných prostor, nově byly instalovány vstupní dřevěné dveře s čipovým přístupem, které zvyšují bezpečnost i komfort obyvatel.
Dokončení rekolaudace povede k výraznému zvýšení tržní hodnoty nemovitosti a zároveň rozšíří možnosti jejího pronájmu. Jedná se o mimořádně zajímavou nabídku jak pro vlastní užívání, tak pro dlouhodobou investici v jedné z nejžádanějších lokalit Prahy. Nemovitost je možno financovat hypotečním úvěrem.
I DO NOT WISH TO BE CONTACTED UNDER ANY CIRCUMSTANCES BY REAL ESTATE AGENTS, NOR DO I WANT OFFERS OF AUCTIONS, BUYOUTS, OR OTHER SIMILAR PROPOSALS.
As the direct owner, I am offering for purchase a completely renovated space in my personal ownership with a total area of 80.7 m², according to the building owner’s statement. It is located on the border of the highly sought-after areas of Vinohrady and Žižkov, on the quiet Ježkova street. The property is situated on the ground floor of the building and features its own separate, barrier-free entrance, which is a tremendous advantage. Access to the unit is provided via the building’s main entrance and then continues into a quiet inner courtyard, ensuring complete privacy.
The space is configured as a 2+1 layout and includes two separate, non-interconnected rooms, a kitchen area, a bathroom with a shower and a toilet, as well as an additional separate WC. The new kitchen comes equipped with a dishwasher, an electric oven with a ceramic glass hob, and an extractor fan with active airflow. Additional advantages of the space include exceptionally high ceilings, new vinyl flooring, and fresh plasterwork, all of which contribute to a modern character. The entrance hall is adorned with designer tiling. The property is also equipped with air conditioning, ensuring comfort during the summer months. The renovation includes new electrical wiring, water supply risers, and all necessary masonry work.
A significant advantage is the large windows facing two quiet inner courtyards, with one of the courtyards being used exclusively by only three apartments. This guarantees absolute quiet and plenty of natural light throughout the day, even though the property is located in the greater city center.
The layout is practical not only for personal residence or a combination of living and working space, but also for investment purposes.
The location offers complete civic amenities – restaurants, cafés, shops, and services are all in the immediate vicinity. Within walking distance, you will find Jiří z Poděbrad Square, the Žižkov Television Tower, and the main train station, with public transport stops just a few minutes away on foot.
Currently, the property is registered as an office, and the process of re-approval has already begun, which will change its use either to a residential unit or a studio. The re-approval process is running smoothly, thanks in part to excellent relations with the homeowners’ association that positively influence the entire administration. We will gladly connect the new owner with all the involved parties.
In addition, the building has undergone modernization of the common areas. New wooden entry doors with chip access have been installed, enhancing both security and comfort for the residents.
Completion of the re-approval process will significantly increase the market value of the property and broaden its rental potential.
Parametre nehnuteľnosti
| Dostupné od | 23. 2. 2026 |
|---|---|
| Konštrukcia budovy | Tehla |
| Vybavené | Nevybavené |
| Prevedenie | Štandardné |
| Číslo inzerátu | 994043 |
| PENB | G - Mimoriadne nehospodárne |
| Umiestnenie | Tichá lokalita |
| Cena za jednotku | 134 568 CZK / m2 |
| Stav | Veľmi dobrý |
|---|---|
| Dispozícia | 2+1 |
| Poschodie | 1. poschodie z 2 |
| Vykurovanie | Elektrické |
| Vlastníctvo | Osobné |
| Rekonštrukcia | Kompletné |
| Úžitková plocha | 81 m² |
Čo táto nehnuteľnosť ponúka?
| Bezbariérový prístup |
| Parkovanie |
V okolí nehnuteľnosti nájdete
Stále hľadáte to pravé?
Nastavte si strážneho psa. Ponuky vybrané na mieru dostanete súhrnne 1× denne e-mailom. S Premium profilom máte po ruke rovno 5 strážcov a keď sa niečo objaví, informujú vás obratom.






















