
Predaj bytu 3+1 • 72 m² bez realitkyBoháčova, Praha - Háje
🌿 Světlý 3+1 | 72 m²| poslední patro | rohový | maximum soukromí | lodžie | u lesoparku | na metru | občanská vybavenost
Nabízíme k prodeji světlý a vzdušný byt v klidné části Prahy s unikátní kombinací polohy i dispozice. Byt 3+1 o velikosti 72 m² je rohový, situovaný v posledním patře (výtah). Byt zaujme především svou výjimečnou polohou na hranici Hostivařského lesoparku, a přitom zároveň i blízkostí metra.
Hlavní výhody bytu:
• rohový byt + poslední patro
• prostorná, zasklená lodžie s žaluziemi (cca 8 m2)
• výhled částečně na zeleň lesoparku a na vzdálenější městské části
• světlý a vzdušný interiér
• okna na východ (elektrické předokenní rolety) a západ (žaluzie na lodžii)
• sklepní kóje (cca 3 m2) + společná kočárkárna
• dobré sousedské vztahy + dům spravuje funkční a dobře fungující SVJ
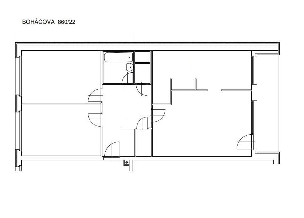
Dispozice:
• velký obývací pokoj se vstupem na lodžii
• prostorná kuchyň
• samostatný pokoj
• ložnice
• koupelna se zděným velkoprostorovým sprchovým koutem
• WC
• komora
Byt byl průběžně udržovaný a lze v něm ihned bydlet:
• kompletní rekonstrukce bytového jádra a předsíně (2010)
• plastová okna + elektrické předokenní rolety (2013)
• zasklení lodžie + žaluzie (2017)
Postupná modernizace byla plánována i ve zbývajících částech bytu, ale z rodinných důvodů na ni již nedošlo. Zbytek interiéru tedy zůstal ve funkčním, ale starším stavu, což nabízí novému majiteli ideální příležitost doupravit si bydlení dle vlastních představ. Tato skutečnost je zohledněna v nabídkové ceně.
Dům:
• revitalizace fasády a střechy (2013)
• rekonstrukce společných prostor (2025)
• zabezpečený vstup na čip
V okolí najdete:
• školku a školu
• dětská hřiště
• krytý bazén
• areál zimních sportů
• další sportoviště
• mini-ZOO
• velmi oblíbenou cukrárnu/kavárnu
• restaurace
• obchody
• zdravotní služby
• a další…
Dopravní dostupnost a parkování:
• autobusová zastávka Brechtova cca 300 m (na metro Háje pouze 1 stanice)
• metro C Háje cca 10 minut chůze
• Běžné parkování přímo u domu – bez placených zón. Případně možnost domluvit hlídané parkování vedle domu (od 780 Kč/měsíc).
Ideální pro rodiny a aktivní životní styl:
Bydlení v této atraktivní lokalitě s výbornou občanskou vybaveností velmi často volí mladé páry plánující budoucí rodičovství, nebo mladé rodiny s menšími dětmi. Oceňují jak kvalitní mateřskou a základní školu v bezprostředním sousedství, ale také jedinečnou blízkost Hostivařského lesoparku s přehradou, Milíčovského lesa i Kunratického lesa, které nabízejí široké možnosti relaxace, sportu i aktivního trávení volného času v přírodě.
Právní stav, služby, prodej:
• Osobní vlastnictví (čistý list vlastnictví)
• Souhrnná částka za veškeré služby 7 989 Kč
• Na prodej nespěcháme, prioritou je pro nás nalezení seriózního zájemce a korektní průběh celé transakce.
V případě vážného zájmu a seriózního jednání jsme připraveni o finálních podmínkách jednat osobně přímo na prohlídce.
Prosíme realitní kanceláře a makléře, aby nás nekontaktovali.
🌿 Bright 3-bedroom apartment | 72 m² | top floor | corner unit | loggia | near forest park | close to metro
Looking for a spacious home in a quiet, green part of Prague with great accessibility and full amenities?
(REAL ESTATE AGENCIES PLEASE DO NOT CONTACT US – we have our own legal services.)
We offer for sale a bright and airy 3+1 apartment (72 m²) in private ownership, located on the top (8th) floor of a panel building with an elevator, Boháčova Street – Prague Háje.
The apartment stands out for its unique combination of privacy (corner unit, top floor) and location on the edge of Hostivař Forest Park, while still within walking distance of the metro. It offers an ideal balance between city living and nature.
Key features:
• Corner unit = maximum privacy
• Top floor = quiet living
• Glazed loggia with blinds (approx. 8 m²)
• Pleasant green and city views
• Bright, airy interior
• Bedrooms facing east (electric exterior blinds)
• Living room & kitchen facing west (afternoon sun, loggia blinds)
• Cellar (approx. 3 m²) + shared stroller room
• Well-managed building (HOA)
Layout:
Living room with loggia access, kitchen, bedroom, separate room, bathroom with large shower, WC, storage room.
Condition:
Well maintained and ready to move in.
Renovations: core & hallway (2010), windows + blinds (2013), loggia glazing (2017).
Other areas are functional but in older visual condition – ideal for customization (reflected in price).
Building:
Renovated facade & roof (2013), common areas (2025), secure chip entry.
Location & amenities:
Schools, playgrounds, sports facilities, pool, restaurants, shops, healthcare nearby. Close to Hostivař, Milíčov and Kunratice forests – great for relaxation and sports.
Transport:
Bus stop 300 m (1 stop to metro Háje), metro C Háje ~10 min walk.
Parking:
Free parking near the building, optional guarded parking from 780 CZK/month.
Additional info:
• Private ownership, clear title (no debts or liens)
• Monthly costs incl. utilities: 7,989 CZK
• Direct sale (no agency fee), full legal service included
Price: 9,490,000 CZK
Reflects current condition and need for modernization.
We prefer serious buyers and are happy to discuss details in person during a viewing.
Parametre nehnuteľnosti
| Dostupné od | 13. 4. 2026 |
|---|---|
| Konštrukcia budovy | Panel |
| Vybavené | Vybavené |
| Číslo inzerátu | 1012045 |
| PENB | C - Hospodárne |
| Úžitková plocha | 72 m² |
| Stav | Dobrý |
|---|---|
| Dispozícia | 3+1 |
| Poschodie | 8. poschodie z 8 |
| Vlastníctvo | Osobné |
| Umiestnenie | Tichá lokalita |
| Cena za jednotku | 126 388,89 CZK / m2 |
Čo táto nehnuteľnosť ponúka?
| Pivnica 3 m² | |
| Lodžia 8 m² |
| Výťah | |
| Parkovanie |
V okolí nehnuteľnosti nájdete
Stále hľadáte to pravé?
Nastavte si strážneho psa. Ponuky vybrané na mieru dostanete súhrnne 1× denne e-mailom. S Premium profilom máte po ruke rovno 5 strážcov a keď sa niečo objaví, informujú vás obratom.









