Prenájom domu 7+1 • 243 m² bez realitkyAltötting Altötting Bayern 84503
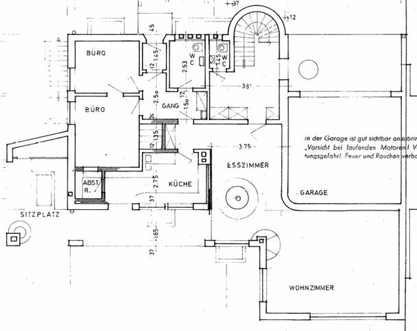
Altötting Altötting Bayern 84503MHD 2 minúty pešo • GarážRodinný dom s prívesným bytom a veľmi priestrannou, udržiavanou záhradou bol postavený v roku 1975 v štýle Bauhaus.
V prízemí sa okrem jedálne a kuchyne nachádza aj veľmi veľká obývacia izba (takmer 40 m²), ktorá je orientovaná na juh.
Okrem toho sa v západnej časti domu nachádza prívesný byt s dvoma kanceláriami, sprchou a WC. Tento byt má samostatný vstup do domu a je momentálne spojený so zvyškom domu.
Tri veľké spálne a dve ďalšie kúpeľne sa nachádzajú v poschodí, rovnako ako balkón orientovaný na juh.
V suteréne, okrem technickej miestnosti/ohrevu, nájdete aj práčovňu a komoru. Highlightom suterény je veľmi priestranná hobby izba s veľkou oknom orientovaným na juh (s naklonenou časťou, ktorá zabezpečuje veľa svetla).
Garáž je dvojgaráž – má miesto pre dve autá.
Prenajímaná nehnuteľnosť sa nachádza na západe Altötting, v obytnom sektore, v pokojnej slepej uličke a je orientovaná na juh.
Dom bol postavený v roku 1975 v štýle Bauhaus a počas rokov bol opakovane renovovaný, pričom väčšina zostala v pôvodnom stave. Kúpeľne pochádzajú z doby výstavby, avšak sú veľmi dobre udržiavané. Čiastočne sú nainštalované elektrické rolety.
V roku 2023 bola olejová kúrenie nahradená pripojením na diaľkové teplo.
Dom bol nedávno pripojený na optickú sieť Telekomu.
Renovácie a kozmetické opravy je možné vykonať po vzájomnej dohode.
Na kompenzáciu inflácie je dohodnutý stupňovitý nájom; detaily budú vysvetlené pri osobnom rozhovore.
Žiadosti, prosím, zasielajte e-mailom s uvedením telefónneho čísla a možných časov spätného volania.
Rád vám potom zavolám späť – veľmi pekne ďakujem.
Parametre nehnuteľnosti
| Vek | Nad 50 rokov |
|---|---|
| Dispozícia | 7+1 |
| PENB | G - Mimoriadne nehospodárne |
| Plocha pozemku | 745 m² |
| Cena za jednotku | 9 € / m2 |
| Stav | Dobrý |
|---|---|
| Číslo inzerátu | 993879 |
| Úžitková plocha | 243 m² |
| Celkové poschodia | 2 |
Čo táto nehnuteľnosť ponúka?
| Balkón | |
| Garáž | |
| Terasa |
| Pivnica | |
| MHD 2 minúty pešo |
V okolí nehnuteľnosti nájdete
Stále hľadáte to pravé?
Nastavte si strážneho psa. Ponuky vybrané na mieru dostanete súhrnne 1× denne e-mailom. S Premium profilom máte po ruke rovno 5 strážcov a keď sa niečo objaví, informujú vás obratom.






















