Prenájom domu 5+1 • 169 m² bez realitky, Severné Porýnie - Westfálsko
, Severné Porýnie - WestfálskoMHD 1 minúta pešo • Parkovanie • GarážDie neoceniteľná dvojdomovacia polovica ponúka približne 169 m² obytného priestoru na parcele s rozlohou cca 352 m². Je ideálna pre pracujúce páry alebo rodiny, ktoré kladú dôraz na kvalitu bývania, pokoj a dobrú infraštruktúru. Poloha spája príjemné obytné prostredie v Telgte s krátkymi cestami do Münsteru a zároveň so skvelým regionálnym spojenkou.
Dom bol nedávno komplexne zrekonštruovaný, napr. nové vinylové podlahy a maľovacie práce. Nachádza sa v udržiavanom a nasťahovateľnom stave.
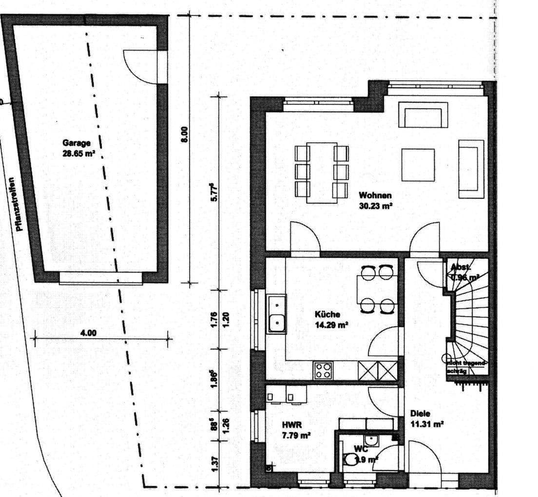
Nehnuteľnosť disponuje dvoma plnými poschodiami a zrekonštruovaným podkroví a ponúka päť izieb, priestrannú obývaciu izbu s kuchyňou, dve kúpeľne s dostatkom denného svetla, hosťovské WC ako aj domovú práčovňu. Premyslene navrhnuté rozloženie izieb sa hodí ako pre komfortné bývanie, tak aj pre zariadenie domácej kancelárie. Sieťové pripojenie je zabezpečené vo všetkých obytných miestnostiach.
Nadštandardne veľká garáž (cca 30 m²) spolu s dodatočným parkovacím miestom poskytujú priestor pre vaše vozidlá, bicykle a záhradné náradie. Záhrada a terasa sú orientované na juhovýchod a ponúkajú pokojné možnosť odpočinku vonku.
Kúrenie je zabezpečené plynom v kombinácii so solárnou termikou, čo umožňuje efektívne a hospodárske využívanie energie.
Rozloženie izieb
Prízemie: kuchyňa, obývacia izba, prádlo-priestor (domáca práčovňa), hosťovské WC, skladovacia miestnosť
Poschodie: tri spálne, kúpeľňa s denným svetlom vybavená vaňou a sprchou
Podkrovia: hosťovská/pracovná izba, kúpeľňa s denným svetlom a sprchou, kotolňa s ďalšími úložnými možnosťami
Nehnuteľnosť sa nachádza na juhovýchode Telgte v pokojnej hracej ulici so spriazneným susedstvom. Okolie ponúka uvoľnené obytné prostredie pri súčasnej veľmi dobrej regionálnej dostupnosti. Münster je dostupný autom aj verejnou dopravou, čo umožňuje flexibilné usporiadanie pracovných a každodenných ciest.
Dopravné spojenie:
- Železničná stanica Telgte je vzdialená cca 1,8 km, rýchlo dostupná na bicykli
- Pravidelné autobusové a vlakové spojenia do Münsteru, Warendorfu a Bielefeldu
- Cca 13 minút cestou vlakom zo stanice Telgte na hlavnú stanicu Münster
- Cca 25 minút jazdy autom na letisko Münster/Osnabrück (FMO)
Telgte disponuje kompletnou infraštruktúrou vrátane obchodov pre každodenné potreby, lekárov, lekární, všetkých škôl a viacerých materských škôl. Historické centrum s kaviarňami, reštauráciami a malými obchodmi je dostupné pešo alebo na bicykli v priebehu niekoľkých minút a ideálne dopĺňa pokojné obytné prostredie.
Nehnuteľnosť ponúka kvalitné, funkčne premyslené vybavenie so zameraním na komfort bývania a každodennú praktickosť:
- trojité zasklenie okien
- elektrické rolety vo všetkých obytných miestnostiach
- satelitné a sieťové pripojenia vo všetkých obytných miestnostiach
- podlahové kúrenie v celom prízemí aj v hlavnej kúpeľni
- hlavná kúpeľňa s vaňou, sprchou a ohrievačom na uteráky
- nadčasové dlaždice v antracitovej a bielej farbe v prízemí a kúpeľniach
- kvalitný vinylový podlahový kryt vo zvyšných obytných miestnostiach
- priestranný, prehľadne usporiadaný vstupný priestor
- veľká, nadštandardne dlhá garáž s dodatočným úložným priestorom pre bicykle, záhradné náradie a pod. (celková dĺžka cca 7,50 m)
Pri vašej žiadosti prosíme o doplnenie ďalších informácií, najmä o počte osôb, ktoré sa budú sťahovať, a o ich pracovnej činnosti. Ďakujeme!
Parametre nehnuteľnosti
| Vek | Nad 50 rokov |
|---|---|
| Dispozícia | 5+1 |
| PENB | A - Mimoriadne úsporné |
| Plocha pozemku | 352 m² |
| Cena za jednotku | 12 € / m2 |
| Stav | Veľmi dobrý |
|---|---|
| Číslo inzerátu | 993877 |
| Úžitková plocha | 169 m² |
| Celkové poschodia | 3 |
Čo táto nehnuteľnosť ponúka?
| Garáž | |
| MHD 1 minúta pešo |
| Parkovanie | |
| Terasa |
V okolí nehnuteľnosti nájdete
Stále hľadáte to pravé?
Nastavte si strážneho psa. Ponuky vybrané na mieru dostanete súhrnne 1× denne e-mailom. S Premium profilom máte po ruke rovno 5 strážcov a keď sa niečo objaví, informujú vás obratom.












