
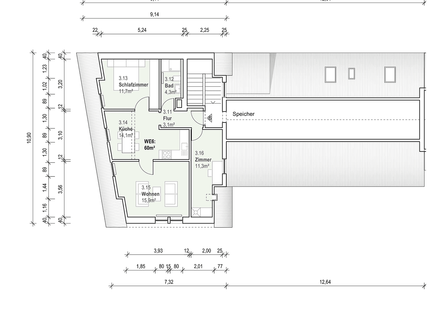
Prenájom bytu 3+1 • 60 m² bez realitkyLoppengasse 21, , Bádensko-Wurttembersko
Loppengasse 21, , Bádensko-WurttemberskoMHD 3 minúty pešoPrvý prenájom po rekonštrukcii: V pokojnej lokalite nedaleko centra Nusslochu sú, podľa dokončenia jednotlivých jednotiek, od 01.03., 01.04. resp. 01.06.2026 k dispozícii viaceré kompletne zrekonštruované byty s rozlohou medzi 32 a 70 štvorcovými metrami bez provízie. Byty aj celá budova boli úplne zrekonštruované a vybavené materiálmi priaznivými pre zdravie. Vybavenie je vysoko kvalitné – s porcelánovými obkladmi, oknami z masívneho dreva (čiastočne novými) a parketami.
Ako nájomcovia sú vítané osoby so stálym pracovným pomerom na plný úväzok alebo s ručením. Záloha predstavuje 3 mesačné nájmy.
Zmluvy na elektrinu a internet si nájomcovia uzatvárajú sami, keďže tieto náklady nie sú zahrnuté v preddavku na prevádzkové náklady.
Prehľad dostupných bytov a nájomného (k mraziacemu nájmu) plus preddavok na prevádzkové náklady, elektrina a internet:
- Byt 6 so 3 izbami, 60 m², nájomné 900 € plus prevádzkové náklady, elektrina a internet. Ihneď k dispozícii.
3 ďalšie byty v zadnej časti budovy, ešte nezrekonštruované, k dispozícii najskôr od 01.04.2026:
- Byt 8 v prízemí, modrý, 3-izbový byt s kuchynským kútom a 70 m² vrátane terasy, nájomné 1 080 € plus prevádzkové náklady, elektrina a internet. K dispozícii od 1.4. alebo 15.04.2026.
- Byt 10 s približne 35 m² a balkónom (ešte nezrekonštruovaný, zatiaľ bez pôdorysu), nájomné 630 € plus prevádzkové náklady, elektrina a internet. Predpokladaná dostupnosť od 01.06.2026 alebo 15.06.2026.
Budova sa nachádza blízko centra Nussloch. Obchody, úrady, lekári, NEPV a školy sú v bezprostrednej blízkosti. Vybavenie je vysoko kvalitné – s porcelánovými obkladmi, oknami z masívneho dreva (čiastočne novými) a parketami. Steny sú hladko omietnuté a natreté na bielo.
Parametre nehnuteľnosti
| Vek | Nad 50 rokov |
|---|---|
| Dispozícia | 3+1 |
| PENB | G - Mimoriadne nehospodárne |
| Cena za jednotku | 15 € / m2 |
| Stav | Po rekonštrukcii |
|---|---|
| Číslo inzerátu | 993617 |
| Úžitková plocha | 60 m² |
Čo táto nehnuteľnosť ponúka?
| MHD 3 minúty pešo |
V okolí nehnuteľnosti nájdete
Stále hľadáte to pravé?
Nastavte si strážneho psa. Ponuky vybrané na mieru dostanete súhrnne 1× denne e-mailom. S Premium profilom máte po ruke rovno 5 strážcov a keď sa niečo objaví, informujú vás obratom.













