
Predaj domu 5+1 • 110 m² bez realitkyNauroder Str. 71 Wiesbaden Wiesbaden Hessen 65191
Tu sa budete so svojou rodinou cítiť úplne komfortne!
Ihneď nastahovateľný samostatný rodinný dom vo Wiesbaden-Bierstadt
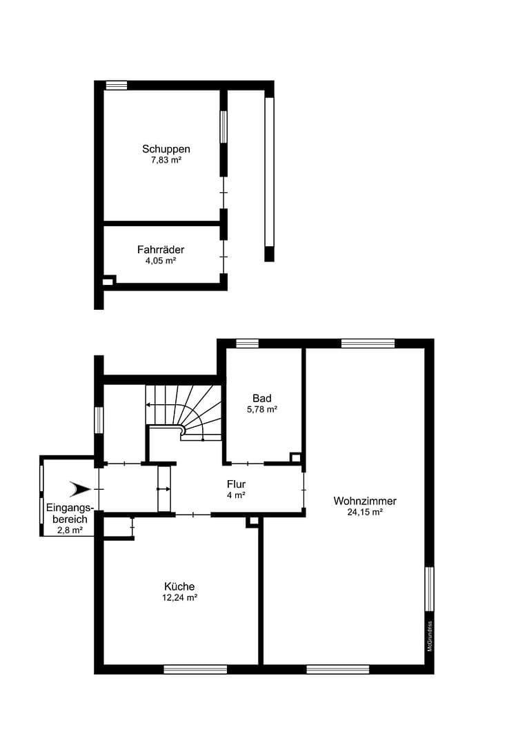
Tento zmodernizovaný rodinný dom (energetická trieda A) zaujme svojou premyslenou dispozíciou a disponuje nasledujúcimi priestormi:
- 1 priestranná obývacia izba
- 1 svetlá obývacia kuchyňa
- 3 spálne
- 1 pracovňa
- 2 moderné kúpeľne
- a tiež veľké pivnice a úložné priestory
Okrem pozemku sa vzadu záhrady hraničí s Mestom Wiesbaden lacne prenajímateľná časť o rozlohe 220 m², čím má pozemok celkovú rozlohu 700 m².
Bez provízie – žiadny maklérsky poplatok
Prehliadka je možná v krátkodobom termíne. Prosím, dohodnite si s nami termín!
Ďalšie dokumenty máme pre vás pripravené.
Nehnuteľnosť sa nachádza slnečne a samostatne v obľúbenom rezidenčnom území na okraji Bierstadu.
Pobyt v prírode a prechádzky po poliach sú priamo pred dverami.
Wiesbaden-Bierstadt je obľúbená štvrť s približne 12 500 obyvateľmi a vďaka priamej blízkosti rozmanitých ponúk centra Wiesbadenu poskytuje veľmi vysokú kvalitu bývania pre všetky vekové skupiny.
Nákupné a služby, ako aj reštaurácie, sú v okolí zásadne rôznorodé. Bierstadt ponúka všetky obchody pre každodenné potreby – od supermarketov, cez drogérie, až po poštu, lekárov a lekárne.
Bierstadt je známy nielen vďaka Aukammtalu so svojimi liečebnými a klinickými zariadeniami (termálne kúpele, Apothekergarten, DKD, Wilhelm-Fresenius-klinika).
Pre rodiny je v bezprostrednej blízkosti zaručená starostlivosť – detské centrá, materské školy, základná škola a gymnázium. Ďalšie typy škôl sa nachádzajú v bezprostrednom okolí mesta Wiesbaden.
Wiesbaden-Bierstadt má výhodnú dopravnú dostupnosť do všetkých smerov.
Rekonštrukcie v roku 2025:
- Úplne nové elektrické vedenia
- 2 kúpeľne kompletne zrekonštruované
- Tepelné čerpadlo od Bosch
- Vodovodné potrubie
- Okná s trojitým zasklením od Schüco
- Podlahy a steny
- Vnútorné dvere
- Vonkajšia fasádna izolácia podľa požiadaviek BaFa
- Izolácia stropu pivnice
- Izolácia podkrovia
Parametre nehnuteľnosti
| Vek | Nad 50 rokov |
|---|---|
| Stav | Po rekonštrukcii |
| Číslo inzerátu | 993240 |
| Úžitková plocha | 110 m² |
| Celkové poschodia | 2 |
| Dostupné od | 23. 2. 2026 |
|---|---|
| Dispozícia | 5+1 |
| PENB | A - Mimoriadne úsporné |
| Plocha pozemku | 480 m² |
| Cena za jednotku | 6 809 € / m2 |
Čo táto nehnuteľnosť ponúka?
| Pivnica | |
| MHD 1 minúta pešo |
| Parkovanie | |
| Terasa |
V okolí nehnuteľnosti nájdete
Stále hľadáte to pravé?
Nastavte si strážneho psa. Ponuky vybrané na mieru dostanete súhrnne 1× denne e-mailom. S Premium profilom máte po ruke rovno 5 strážcov a keď sa niečo objaví, informujú vás obratom.














