Predaj bytu 2+1 • 54 m² bez realitkyBrandenburg an der Havel Brandenburg an der Havel Brandenburg 14770
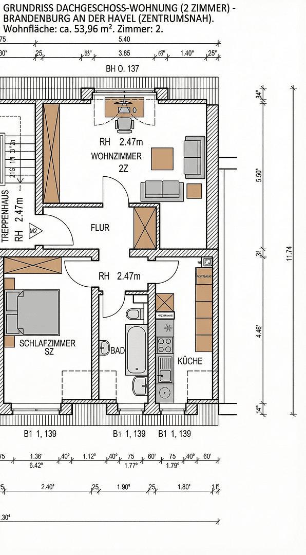
Na predaj je atraktívny 2-izbový byt v tichej bočnej ulici v Brandenburg an der Havel. Byt sa nachádza vo 2. nadzemnom podlaží (podkrovie) udržiavaného viacrodinného domu. Na cca 54 m² ponúka táto jednotka ideálne rozloženie priestorov pre jednotlivcov alebo páry. Objekt je k dispozícii krátkodobo a môže byť po dohode aj plne zariadený.
Centrálna poloha v historickom meste Havel
Nehnuteľnosti sa nachádzajú v jednej z najatraktívnejších rezidenčných lokalít Brandenburg an der Havel, meste, ktoré je známe svojou historickou architektúrou a priamou dostupnosťou k rozsiahlej vodnej krajine Havel.
Mestská infraštruktúra a krátke vzdialenosti
Blízkosť centra: Byty sa nachádzajú v srdci alebo na okraji historických jadier (Staré Mesto/Nové Mesto), čo zaručuje vynikajúcu dostupnosť obchodov bežnej potreby.
Dobrá dopravná dostupnosť: Lokality sa vyznačujú dobrou dostupnosťou verejnej dopravy, čo je obzvlášť atraktívne pre dochádzajúcich do práce.
Mestské historické prostredie: Okolie je charakteristické pôvabnými uličkami s čiastočne zrekonštruovanými historickými budovami, ktoré odzrkadľujú typický charakter mesta.
Voľný čas a oddych
Blízkosť vody: Iba pár minút chôdze vás oddelí od rôznych ramien Havel a pobrežných promenád, ktoré ponúkajú vysoké možnosti pre oddych a voľnočasové aktivity.
Zelené prostredie: Parky a zelené plochy sa nachádzajú v bezprostrednej blízkosti a predstavujú ideálnu rovnováhu k mestskému životnému štýlu.
Atraktivita pre nájomcov aj vlastných užívateľov
Vďaka kombinácii centrálnej polohy a blízkosti kultúrnych a vzdelávacích inštitúcií v Brandenburg an der Havel sú tieto jednotky mimoriadne atraktívne ako pre vlastné bývanie, tak aj pre investorov zameraných na prenájom.
Chcete, aby som tento popis lokality ešte viac prispôsobil pre niektorý z konkrétnych bytov (napr. byt v podkroví)?
Priestranný, svetlom zaplavený obývací priestor
Oddelená spálňa, ideálna pre individuálne využitie
Kuchyňa s ľahko udržiavateľnou obkladovou podlahou a praktickou vstavanou kuchynskou linkou
Štýlová kúpeľňa s vaňou, uterákovým radiátorom a prípojkou pre práčku
Celkovo kvalitná laminátová podlaha pre moderné bývanie
Izolované drevené okná so sklom pre príjemnú atmosféru bývania
KĽÚČNE ÚDAJE:
Miesto: Brandenburg an der Havel (v blízkosti centra)
Izby: 2
Bývacia plocha: cca 53,96 m²
Poschodie: podkrovie (2. nadzemné podlažie)
Dostupnosť: krátkodobo / okamžite
Kúpna cena: 139.000 EUR
Provízia: Súkromný predaj – Žiadne poplatky za sprostredkovanie
KONTAKT:
V prípade záujmu nám, prosím, pošlite správu s Vašimi kontaktnými údajmi.
Parametre nehnuteľnosti
| Vek | Nad 50 rokov |
|---|---|
| Stav | Po rekonštrukcii |
| Poschodie | 2. poschodie |
| PENB | D - Menej hospodárne |
| Cena za jednotku | 2 574 € / m2 |
| Dostupné od | 21. 2. 2026 |
|---|---|
| Dispozícia | 2+1 |
| Číslo inzerátu | 993205 |
| Úžitková plocha | 54 m² |
Čo táto nehnuteľnosť ponúka?
| Balkón |
| MHD 1 minúta pešo |
V okolí nehnuteľnosti nájdete
Stále hľadáte to pravé?
Nastavte si strážneho psa. Ponuky vybrané na mieru dostanete súhrnne 1× denne e-mailom. S Premium profilom máte po ruke rovno 5 strážcov a keď sa niečo objaví, informujú vás obratom.


