
Predaj domu 6+1 • 130 m² bez realitky, Brandenbursko
Predávame našu súčasne samostatne obývanú polovičku dvojdomu v Hönow / Hoppegarten (rohový pozemok). Ideálne pre tých, ktorí hľadajú pokoj a zároveň ocenia krátke cesty do Berlína – s rýchlym napojením na diaľnicu A10.
Poloha & okolie
• Základná škola a materská škola dostupné pešo
• Nákupné možnosti, ako REWE a Penny, sú rýchlo dostupné
• Stanica metra Hönow cca 15–20 minút chôdze
• Autobusové zastávky v blízkosti
Kľúčové údaje
• Obytná plocha: cca 130 m² (prízemie, 1. poschodie, podkrovie)
• Suterén: cca 50 m², kompletne upravený
• Pozemok: 299 m², úplne oplotený
• Poschodia: 3 + kompletne suterénovaný
• Garáž + parkovacie miesto pred domom
• Kúrenie: diaľkové kúrenie, kotolňa v suteréne bola pred niekoľkými dňami kompletne zmodernizovaná (efektívnejší prevádzkový režim)
• Energetický preukaz: v príprave, môže byť predložený/ukázaný pri prehliadke
Dispozícia
Suterén (cca 50 m², upravený):
Tri miestnosti – práčovňa, jedna stredná miestnosť a ďalšia miestnosť, ktorá je momentálne využívaná ako herňa.
Prízemie:
Chodba s prístupom k hosťovskému WC a k kuchyni. Z kuchyne (alebo cez samostatné dvere) vstúpite do veľkého, svetlého obývacieho priestoru s prístupom na terasu a do záhrady. Záhrada je úplne oplotená a ponúka veľké súkromie. Z obývacej izby je navyše priamy východ do suterénu.
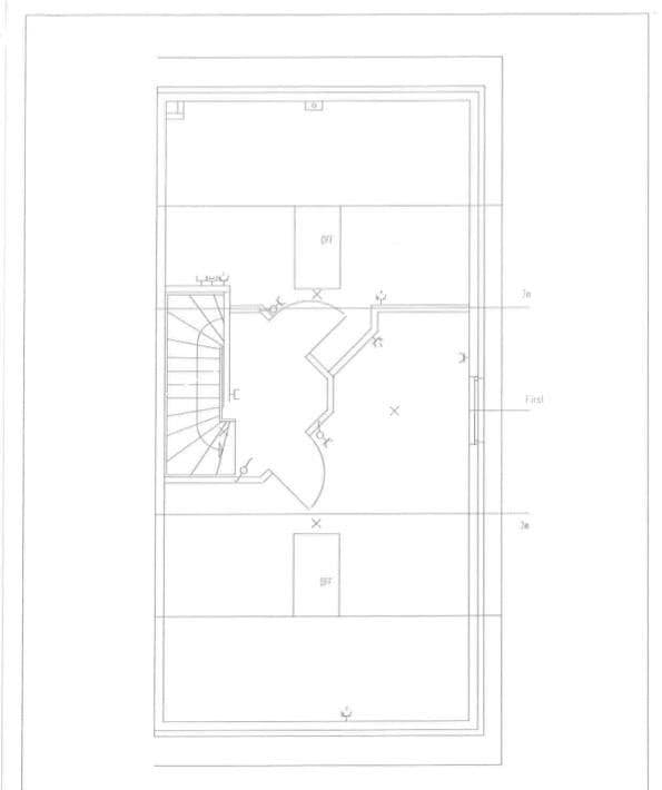
1. poschodie:
Tri spálne a hlavná kúpeľňa (s oknom).
Podkrovie:
Kompletne zariadené s dvoma ďalšími miestnosťami (napr. kancelária/hostia/koníčky).
Vybavenie (výber)
Prízemie: dlaždice v chodbe, kuchyni a obývacej zóne; v obývačke čiastočne podlahové kúrenie
Terasa: automatická markíza poskytujúca tieň v lete
1. poschodie: kobercovanie/laminát; kúpeľňa s dlaždicami a podlahovým kúrením
Podkrovie: korková podlaha a laminát
Suterén/herňa: korková podlaha
Garáž (s možnosťou využitia strechy ako dodatočný úložný priestor) + parkovacie miesto pred domom
Prehliadka & doklady (dôležité)
Prehliadky sú možné po dohode.
Pretože termíny uskutočňujeme len s vážnymi a platobne schopnými záujemcami, pred prehliadkou prosíme o predloženie dokladu o financovaní alebo o likvidite, napríklad:
• Potvrdenie o financovaní od banky/finančného poradcu (minimálne v hodnote kúpnej ceny alebo Vášho plánovaného rozpočtu) alebo
• Doklad o vlastnom kapitáli/likvidite (napr. potvrdenie o stave účtu/depótu)
Ochrana osobných údajov: Všetky citlivé údaje (stav účtu, čísla účtov atď.) môžu byť samozrejme zakryté. Stačí nám potvrdenie, že financovanie alebo likvidita sú v zásade preukázateľné.
Parametre nehnuteľnosti
| Vek | Nad 50 rokov |
|---|---|
| Dispozícia | 6+1 |
| Úžitková plocha | 130 m² |
| Celkové poschodia | 3 |
| Stav | Dobrý |
|---|---|
| Číslo inzerátu | 993183 |
| Plocha pozemku | 299 m² |
| Cena za jednotku | 5 000 € / m2 |
Čo táto nehnuteľnosť ponúka?
| Pivnica | |
| Parkovanie | |
| Terasa |
| Garáž | |
| MHD 2 minúty pešo |
V okolí nehnuteľnosti nájdete
Stále hľadáte to pravé?
Nastavte si strážneho psa. Ponuky vybrané na mieru dostanete súhrnne 1× denne e-mailom. S Premium profilom máte po ruke rovno 5 strážcov a keď sa niečo objaví, informujú vás obratom.























