Predaj domu 6+kk • 123 m² bez realitkyReichweinstraße 4, , Brandenbursko
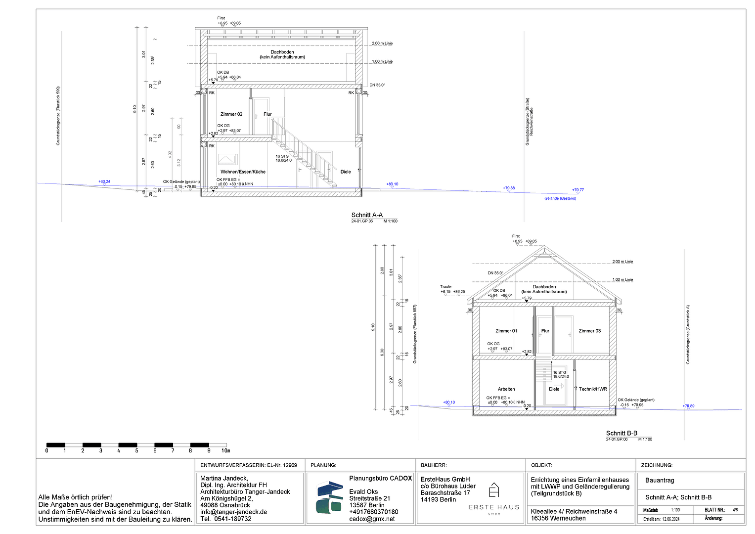
Reichweinstraße 4, , BrandenburskoMHD 4 minúty autom • ParkovanieModerný domov pre celú rodinu: Tento nový rodinný dom so 122 m² obytnou plochou na troch úrovniach ponúka premyslenú architektúru, energetickú triedu A+ a vysoko kvalitné vybavenie. Predaj prebieha priamo od developera – bez provízie.
Dispozícia a komfort
• 4 svetlé spálne a 2 moderné kúpeľne
• Priestranná obývačka s prístupom na slnečnú terasu
• Otvorená kuchyňa s optimálnym usporiadaním
• Domácnosti miestnosť s technikou a priestorom na pranie
• Zrevidované podkrovia so všetkými pripojeniami – vhodné ako kancelária, izba pre hostí alebo domáce kino
• Podlahové kúrenie v celom dome, tepelné čerpadlo, kvalitné okná s hlukovou ochranou
• Elektrické rolety, zosilnené základy a stropy, masívne betónové schody, strecha s tehličkami
• Príprava pre video-dverový interkom s diaľkovým otváraním a automatické dvorečné brány
• Dve parkovacie miesta pri dome, príprava pre wallbox
Okamžite na nastťahovanie
Dom je odovzdaný s vysoko kvalitným vnútorným vybavením a je okamžite pripravený na nastťahovanie – bez ďalších úprav alebo stavebných zásahov. Kupujúci majú počas stavebnej fázy možnosť vybrať si materiály a farby podľa vlastného želania – bez dodatočných nákladov.
Pozemok: 440 m², pokojný a zelený, so záhradným pripojením na vodu a elektrinu
• Škôlka a základná škola len približne 40 metrov od domu
• Zastávka autobusu približne 30 metrov
• Veľmi dobrá infraštruktúra s obchodmi, lekármi a ponukou voľnočasových aktivít v okolí
• Rýchle spojenie do Berlína (približne 29 minút vlakom) a na diaľnicu A10 (približne 12 minút autom)
• Rodinne prívetivé prostredie s modernou susedskou komunitou a veľkým rozvojovým potenciálom
Parametre nehnuteľnosti
| Vek | Nad 50 rokov |
|---|---|
| Dispozícia | 6+kk |
| PENB | A - Mimoriadne úsporné |
| Plocha pozemku | 440 m² |
| Cena za jednotku | 4 390,24 € / m2 |
| Dostupné od | 17. 4. 2026 |
|---|---|
| Číslo inzerátu | 1010254 |
| Úžitková plocha | 123 m² |
| Celkové poschodia | 3 |
Čo táto nehnuteľnosť ponúka?
| Bezbariérový prístup | |
| MHD 4 minúty autom |
| Parkovanie | |
| Terasa |
V okolí nehnuteľnosti nájdete
Stále hľadáte to pravé?
Nastavte si strážneho psa. Ponuky vybrané na mieru dostanete súhrnne 1× denne e-mailom. S Premium profilom máte po ruke rovno 5 strážcov a keď sa niečo objaví, informujú vás obratom.












