
Prenájom domu 5+1 • 170 m² bez realitky, Porýnie-Falcko
, Porýnie-FalckoMHD 2 minúty pešo • ParkovanieOd 01.04.2026 je táto príjemná a starostlivo udržiavaná dvojdomová polovica v obľúbenom bad Dürkheimer štvrti Grethen k prenájmu. Nehnuteľnosť sa rozprestiera na dvoch poschodiach a ponúka ideálnu kombináciu útulného vidieckeho štýlu a modernej veľkorysosti.
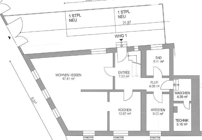
Obzvlášť je potrebné vyzdvihnúť približne 47 m² veľkú obývaciu izbu s jedálňou v prízemí, ktorá zaujme tradičným murovaným krbom a priamym výhľadom do prírody.
Vybavenie & rozloženie priestorov
Celkovo päť izieb ponúka veľa priestoru pre rodiny alebo páry so potrebou domácej kancelárie:
Prízemie: Rozľahlá obývacia/jedáleň, samostatná kuchyňa, pracovňa a kúpeľňa.
Podkrovie: Priestranná rodičovská spálňa so susednou šatňou, dve svetlé (detské) izby a ďalšia kúpeľňa.
Kúpeľne: Celkovo dve udržiavané kúpeľne s denným svetlom, vybavené sprchou, vaňou a záchodom.
Kuchyňa: Vysoko kvalitná zabudovaná kuchyňa je už k dispozícii a ponúka veľa pracovnej plochy a moderné spotrebiče.
Parkovanie: Priamo pri dome sa nachádzajú parkovacie miesta pre auto, ktoré výrazne uľahčujú vykladanie vašich nákupov.
Technika: Nehnuteľnosť je vykurovaná efektívnym plynovým kúrením.
Finančné údaje
Voľné od: 01.04.2026
Základný nájom: 1.500 €
Prevádzkové náklady: 582,51 € mesačne (záloha)
Elektrina: cca 150 € (účtovanie prebieha priamo s dodávateľom)
Celkový nájom: 2.082,51 € (plus elektrina)
Zaujala vás táto ponuka? Kontaktujte nás pre dohodnutie obhliadky, aby ste sa osobne presvedčili o kráse tohto domova v Bad Dürkheim.
Nehnuteľnosť zaujme svojou centrálnou a zároveň príjemnou lokalitou. V priebehu niekoľkých minút pešo dosiahnete centrum mesta s jeho pestrou ponukou:
Občianske vybavenie: Supermarkety, pekárne a miestne špecializované obchody sa nachádzajú v bezprostrednej blízkosti.
Gastronómia: Zažite palatínsky životný štýl v mnohých vínnych útuloch, kaviarňach a prvotriednych reštauráciách, ktoré sú dostupné pešo.
Zdravotníctvo: Ako kúpeľné mesto, Bad Dürkheim ponúka vynikajúcu lekársku starostlivosť s odbornými lekármi a so susednou klinikou.
Voľný čas a oddych priamo za dverami
Hlavnou prednosťou lokality je vysoká kvalita voľnočasových možností. Známý kúpeľný park a soliarne (Saline) sú vzdialené len krátku prechádzku a pozývajú na každodenný oddych na čerstvom vzduchu. Turistické chodníky vedúce cez okolité vinice alebo do Pfälzerwaldu začínajú takmer priamo za dverami.
Vynikajúce spojenie
Pre dochádzajúcich aj cestovateľov je poloha ideálne prepojená s metropolitnou oblasťou Rýn-Neckar:
Verejná doprava: Stanica Bad Dürkheim je ľahko dostupná a ponúka pravidelné spojenia do Mannheimu, Ludwigshafenu a Neustadt an der Weinstraße.
Cestná doprava: Cez cesty B37 a B9 sú okolitá mestá Ludwigshafen a Mannheim autom dosiahnuteľné približne za 20 minút.
Zabudovaná kuchyňa je vybavená modernými elektrickými spotrebičmi (varič, rúra, chladnička) a ponúka dostatočný úložný priestor.
Parametre nehnuteľnosti
| Vek | Nad 50 rokov |
|---|---|
| Stav | Dobrý |
| Číslo inzerátu | 992238 |
| Úžitková plocha | 170 m² |
| Celkové poschodia | 2 |
| Dostupné od | 1. 4. 2026 |
|---|---|
| Dispozícia | 5+1 |
| PENB | F - veľmi nehospodárne |
| Plocha pozemku | 190 m² |
| Cena za jednotku | 9 € / m2 |
Čo táto nehnuteľnosť ponúka?
| Parkovanie |
| MHD 2 minúty pešo |
V okolí nehnuteľnosti nájdete
Stále hľadáte to pravé?
Nastavte si strážneho psa. Ponuky vybrané na mieru dostanete súhrnne 1× denne e-mailom. S Premium profilom máte po ruke rovno 5 strážcov a keď sa niečo objaví, informujú vás obratom.















