
Predaj domu 4+1 • 135 m² bez realitky, Dolné Sasko
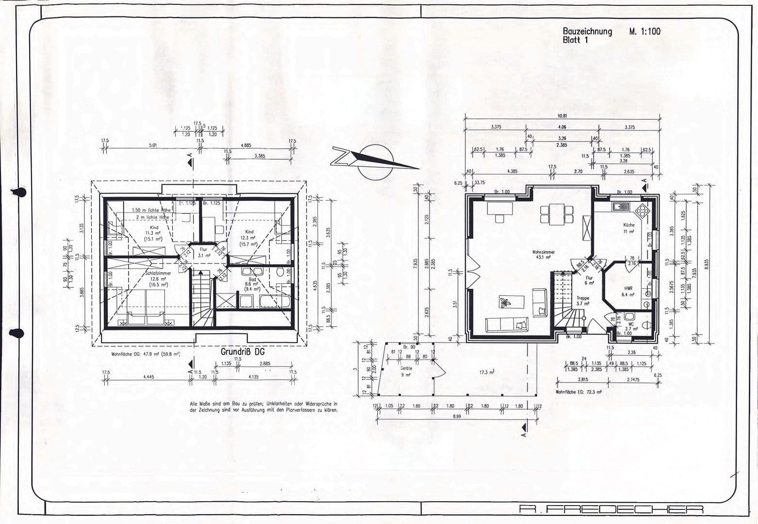
, Dolné SaskoMHD do minúty pešo • GarážTento rodinný dom v najlepšej polohe v Ritterhude je krásny domov pre rodiny alebo páry, ktoré milujú pokoj a prírodu. So zhruba 135 m² obytných priestorov ponúka veľa miesta na pohodlie. Svetlý obývací priestor sa otvára k dvom slnečným terasám, ktoré vyzývajú na oddych alebo hranie, a udržiavaná záhrada dokonale dopĺňa celkový dojem. Kuchyňa bola zmodernizovaná a kúpeľňa je štýlovo zariadená – všetko je udržiavané a prakticky vybavené. Podlahové kúrenie v celom dome, elektrická markíza a vlastná garáž s elektrickou bránou zabezpečujú komfort v každodennom živote.
Tento dom je ideálny pre rodiny alebo páry, ktoré hľadajú ihneď k nastěhovaniu kvalitný domov v pokojnom, zelenom prostredí – miesto, kde sa príroda, pokoj a moderné bývanie harmonicky spájajú.
Dom sa nachádza v jednej z najobľúbenejších lokalít Ritterhude, priamo pri prírodnej rezervácii.
- Pokojná ulica so zníženou premávkou bez priechodových vozidiel
- Prírodné okolie s lúkami, lesnými chodníkmi a ihriskami
- Materská škola, základná škola a stredné školy v bezprostrednej blízkosti
- Jazdecký klub dostupný do 2 minút
- Obchodné možnosti, lekári a lekárne v pešej vzdialenosti
- Skvelé spojenie autobusom, vlakom a diaľnicou A27 – ideálne pre dojíždzačov
- Bremen a okolie sú rýchlo dostupné
Tento dom zaujme vysoko kvalitným vybavením a modernými detailami:
- Podlahové kúrenie v celom dome
- Moderná kuchyňa a kúpeľňa
- Nové vnútorné dvere a podlahové krytiny
- Vlastná garáž s elektrickou bránou
- Dve terasy, elektrická markíza, rolety vrátane proti hmyzím sieťam
- Udržiavaná záhrada v slnečnej polohe
Pokojná, rodinne prívetivá obytná štvrť priamo pri prírodnej rezervácii – zmodernizovaná, ihneď k nastěhovaniu a ideálna pre páry alebo rodiny.
Parametre nehnuteľnosti
| Vek | Nad 50 rokov |
|---|---|
| Dispozícia | 4+1 |
| PENB | E - Nehospodárne |
| Plocha pozemku | 400 m² |
| Cena za jednotku | 3 919 € / m2 |
| Stav | Dobrý |
|---|---|
| Číslo inzerátu | 992172 |
| Úžitková plocha | 135 m² |
| Celkové poschodia | 2 |
Čo táto nehnuteľnosť ponúka?
| Garáž | |
| Terasa |
| MHD 0 minút pešo |
V okolí nehnuteľnosti nájdete
Stále hľadáte to pravé?
Nastavte si strážneho psa. Ponuky vybrané na mieru dostanete súhrnne 1× denne e-mailom. S Premium profilom máte po ruke rovno 5 strážcov a keď sa niečo objaví, informujú vás obratom.















