
Prenájom bytu 4+1 • 120 m² bez realitkyJahnstraße 7 Osnabrück Osnabrück Niedersachsen 49080
Jahnstraße 7 Osnabrück Osnabrück Niedersachsen 49080MHD 1 minúta pešoPrvotriedna poloha sa spája s hojností priestoru: Tento 119 m² veľký 4-izbový byt na ulici Jahnstraße je dokonalým základom pre exkluzívne spolubývanie alebo náročné bývanie. Centrum, pokoj a vlastná záhrada – vzácna príležitosť!
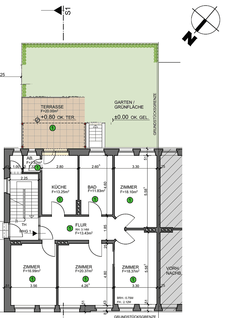
POPIS NEHNUTEĽNOSTI: Bývať tam, kde je Osnabrück najkrajší. Tento byt zaujme vynikajúcim rozdelením priestoru: Štyri samostatne prístupné izby ho robia ideálnym objektom pre kvalitné spolubývanie alebo dokonale vhodným aj pre rodinu. Krásna pôvodná parketa v kombinácii s vysokými stropmi dodáva bytu elegantný charakter, ktorý je perfektne doplnený pokojnou polohou v bočnej ulici (Jahnstraße).
Po prednáškach alebo práci sa najlepšie zrelaxuje vo vlastnej záhrade na terase – luxus, ktorý v tejto centrálnej lokalite takmer nikto nemá. Krátke vzdialenosti ku fakúltám, do centra a k módnym kaviarňam vo Wüste robia z tejto nehnuteľnosti skutočnú výhodu lokality.
K ZÁHRADE:
V zadnej časti záhrady bola vybudovaná nová stavba, ktorá je práve vo finálnej fáze dokončovania. Následne bude postavený plot alebo živý plot, aby sa vytvorilo oddelenie. Obrázky v tejto inzercii zobrazujú bývalú záhradu. Vyznačená čiara ukazuje koniec záhradného priestoru.
VYBAVENIE
Rozloha: Veľkorysých 120 m² obytného priestoru
Izby: 4 izby + kuchyňa s úložným priestorom + kúpeľňa
Vonku: Vlastná záhradná časť s útulnou terasou
Šarm: Krásna, pôvodná parketa & atmosféra staršej budovy
Poloha: Skvelá mikrolokácia vo Wüste (Jahnstraße), pokojná & centrálna
Poschodie: Pohodlné bývanie v prízemí
Kuchyňa: V byte je zabudovaná stará kuchyňa, ktorá je bezplatne k dispozícii. Môže byť inštalovaná aj nová kuchyňa.
Nájomné sa rozkladá nasledovne:
Základné nájomné (byt): 1.250,00 €
Záloha na prevádzkové náklady: 130,00 €
Záloha na náklady na kúrenie: 200,00 €
Celkové nájomné (vrátane všetkého): 1.580,00 €
*Voliteľné: Samostatná pivnica na prenájom (40 € mesačne).
DÁTUM PREVZATIA:
Byt je možné nadviazať krátkodobo od 01.03.2026. Najneskorší termín sťahovania by mal byť 01.04.2026.
Dohodnite si termín prehliadky a presvedčte sa sami o tomto bývacom sne.
Aby sme však mohli vašu dopyt zohľadniť, prosím uveďte nevyhnutne nasledujúce údaje:
- úplné mená + vek
- povolania + čistý príjem domácnosti
- koľko osôb sa sťahuje
- plánovaný/možný dátum sťahovania
Tešíme sa na vašu odpoveď.
Aby sme však mohli vašu dopyt zohľadniť, prosím uveďte nevyhnutne nasledujúce údaje:
- úplné mená + vek
- povolania + čistý príjem domácnosti
- koľko osôb sa sťahuje
- plánovaný/možný dátum sťahovania
Parametre nehnuteľnosti
| Vek | Nad 50 rokov |
|---|---|
| Stav | Po rekonštrukcii |
| Číslo inzerátu | 991537 |
| Cena za jednotku | 10 € / m2 |
| Dostupné od | 1. 3. 2026 |
|---|---|
| Dispozícia | 4+1 |
| Úžitková plocha | 120 m² |
Čo táto nehnuteľnosť ponúka?
| MHD 1 minúta pešo |
| Terasa |
V okolí nehnuteľnosti nájdete
Stále hľadáte to pravé?
Nastavte si strážneho psa. Ponuky vybrané na mieru dostanete súhrnne 1× denne e-mailom. S Premium profilom máte po ruke rovno 5 strážcov a keď sa niečo objaví, informujú vás obratom.














