
Prenájom bytu 4+1 • 118 m² bez realitkyJahnstraße 7 Osnabrück Osnabrück Niedersachsen 49080
Jahnstraße 7 Osnabrück Osnabrück Niedersachsen 49080MHD 1 minúta pešoPrvoradá lokalita sa spája s hojným priestorom: Tento 118 m² veľký 4-izbový byt na 1. poschodí v ulici Jahnstraße je dokonalou základňou pre exkluzívne spolubývanie alebo náročné bývanie. Centrálny, pokojný a s veľkým balkónom – zriedkavá príležitosť!
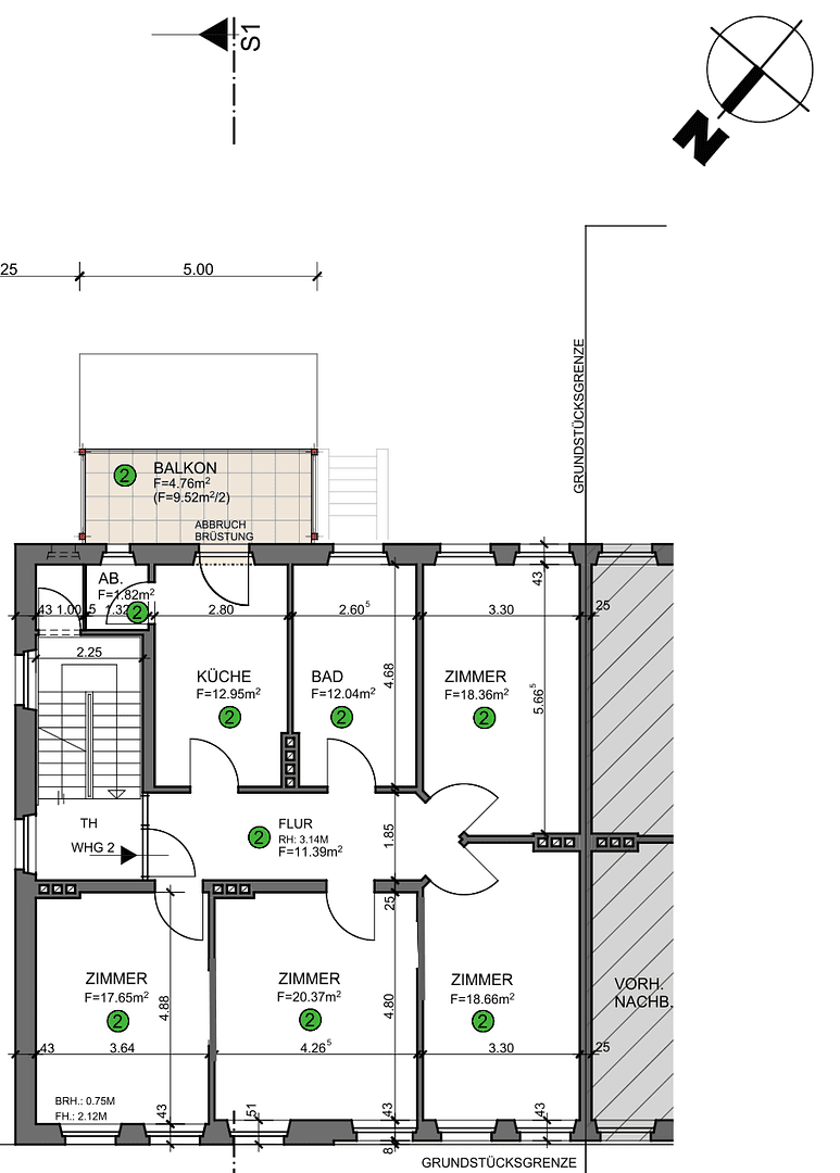
POPIS NEHNUTEĽNOSTI:
Bývať tam, kde je Osnabrück najkrajšie. Tento byt zaujme vynikajúcim rozložením priestorov: Štyri samostatne prístupné izby z neho robia ideálnu nehnuteľnosť pre kvalitné založenie spolubývania, ale aj pre rodinu alebo páry, ktoré túžia po priestore. Krásne pôvodné drevené podlahy v kombinácii s vysokými stropmi dodávajú bytu ušľachtilý charakter, ktorý ideálne dopĺňa pokojná poloha na vedľajšej ulici (Jahnstraße). Po náročnom dni na univerzite alebo v práci sa najlepšie zrelaxujete na veľkom balkóne (10 m²) – luxus, ktorý v tejto centrálnej lokalite takmer nikto nemá. Krátke vzdialenosti k fakultám, do centra a k obľúbeným kaviarňam v okolí robia z tejto nehnuteľnosti skutočnú výhodu miesta.
K balkónu:
V marci sa v kuchyni aktuálne vymení okno za balkón a následne bude prístavnený 10 m² veľký balkón.
VYBAVENIE
Rozloha: Štedrých 118 m² obytného priestoru
Izby: 4 izby + kuchyňa so šatníkom + kúpeľňa
Exteriér: Veľký 10 m² balkón
Šarm: Krásna, pôvodná drevená podlaha & šarm starších budov
Lokalita: Skvelá mikro lokalita v oblasti Wüste (Jahnstraße), pokojná & centrálna
Poschodie: Pohodlné bývanie na 1. poschodí
Kuchyňa: Pred 2 rokmi bola inštalovaná nová kuchyňa, ktorá sa prenajíma za mesačný poplatok 50 € (bez chladničky).
(Práčka ešte bude odstránená a namiesto nej bude zabudovaná skriňa so 60 zásuvkami).
Byt sa inak odovzdáva úplne prázdny. Na požiadanie je možné prevziať niektorý nábytok od predchádzajúceho nájomcu.
Nájomné je rozčlenené nasledovne:
Nájomné (byt): 1 200,00 €
Záloha na prevádzkové náklady: 130,00 €
Záloha na náklady na kúrenie: 200,00 €
Celkové nájomné (vrátane všetkého): 1 530,00 €
*Voliteľné: Samostatná pivnica k prenájmu (40 € mesačne).
K dispozícii:
Byt je možné krátkodobo od 01.03.2026. Najneskorší termín nasťahovania by mal byť 01.04.2026.
Neváhajte si dohodnúť prehliadku a presvedčte sa na vlastné oči o tomto bývacom sne.
Aby sme mohli Vašu dopyt náležite spracovať, uveďte, prosím, nevyhnutne nasledujúce údaje:
- úplné mená + vek
- povolania + čistý rodinný príjem
- koľko osôb sa sťahuje
- plánovaný/možný termín nasťahovania
Tešíme sa na Vašu reakciu.
Aby sme mohli Vašu dopyt náležite spracovať, uveďte, prosím, nevyhnutne nasledujúce údaje:
- úplné mená + vek
- povolania + čistý rodinný príjem
- koľko osôb sa sťahuje
- plánovaný/možný termín nasťahovania
Tešíme sa na Vašu reakciu.
Parametre nehnuteľnosti
| Vek | Nad 50 rokov |
|---|---|
| Stav | Po rekonštrukcii |
| Poschodie | 1. poschodie |
| Úžitková plocha | 118 m² |
| Dostupné od | 1. 3. 2026 |
|---|---|
| Dispozícia | 4+1 |
| Číslo inzerátu | 991531 |
| Cena za jednotku | 10 € / m2 |
Čo táto nehnuteľnosť ponúka?
| Balkón | |
| MHD 1 minúta pešo |
| Pivnica |
V okolí nehnuteľnosti nájdete
Stále hľadáte to pravé?
Nastavte si strážneho psa. Ponuky vybrané na mieru dostanete súhrnne 1× denne e-mailom. S Premium profilom máte po ruke rovno 5 strážcov a keď sa niečo objaví, informujú vás obratom.



















