
Predaj domu • 282 m² bez realitkyEichwaldgasse 14 Baden Baden Niederösterreich 2500
Eichwaldgasse 14 Baden Baden Niederösterreich 2500MHD 3 minúty pešoHistorická vila v exkluzívnej lokalite Baden (rok 1911)
Tichá slepá ulica · žiadny prechodový provoz · veľa súkromia
Architektonický klenot s históriou a potenciálom
• približne 300 m² obytného priestoru + možnosť úprav podkrovia
• Využitie ako rodinný dom alebo až 4 bytové jednotky – možná kombinácia obytných a pracovných priestorov, ako sú ordinácia, kancelária, úrad, atď.
• Atmosféra staršej stavby: vysoké miestnosti, dverové okná s dvoma krídlami, schodisko s terrazzo podlahou
• Podlahy z masívneho dreva a kvalitného parketového dreva
• Veľká záhrada so starými stromami a ovocnými stromami
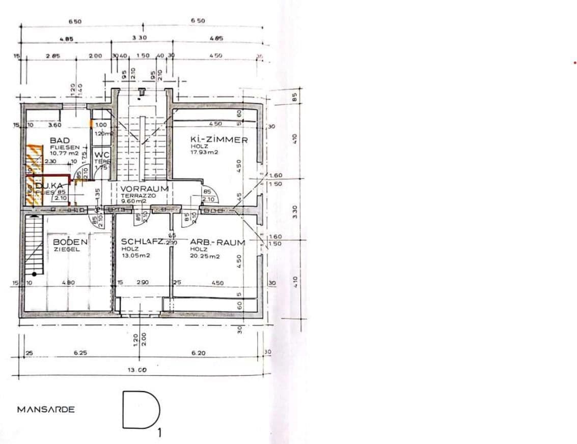
Rozloženie
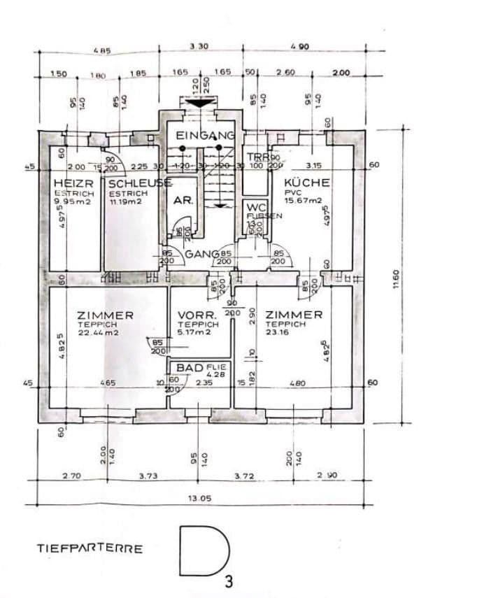
• Podzemné poschodie cca 105 m²: 3 izby, kuchyňa, 2 kúpeľne, WC, dielňa, kotolňa
• Prízemie cca 105 m²: 5 izieb, 2 kuchyne, kúpeľňa, 2 WC
• Mansarda cca 75 m²: 3 izby, veľká kúpeľňa, samostatné WC
• Podkrovie: dvojpodlažné, s potenciálom na úpravy
• Možnosť vlastného riešenia rozloženia priestorov
Extra vybavenie
• Veľký záhradný dom (7 oddelení) so zásuvkou pre elektrinu aj výkonové pripojenie
• Pokojná zelená lokalita priamo v meste – cca 10 minút pešo do centra, k viniciam, nástupiska alebo Wienerwaldu
• Svetlé miestnosti vďaka veľkým historickým oknám a vysokým stropom
Záver: Zriedkavý klenot staršej stavby s históriou, šarmom a rozvojovým potenciálom.
Exkluzívna poloha & infraštruktúra
• Blízkosť centra a absolútna pokojná lokalita
– Len pár minút do centra a k nástupisku
– Len pár minút do viníc, Wienerwaldu, parku a ihriska
• Všetko na dosah pešej vzdialenosti: rôzne supermarkety, trhovisko, materské školy, školy, lekári, lekáreň, nemocnica, početné kultúrne a voľnočasové zariadenia
• Uvoľnené parkovanie priamo pred domom
• Nástupisko Baden - v pešej vzdialenosti: do Viedne cca 12 minút
• Badner Bahn - v pešej vzdialenosti: priamy spoj do Wiedenskej štátnej opery
• Josefsplatz: cca 10 minút pešo
• Vinárske obce Pfaffstätten a Sooß, Bad Vöslau v blízkosti
• Historický šarm a vysoké miestnosti s elegantnými dverovými oknami s dvoma krídlami
• Všestranné využitie: rodinný dom, viacgeneračné bývanie, ordinácia, kancelária, vlastná firemná budova, investičný objekt
• Možnosť až 4 bytových jednotiek
• Potenciál úprav v dvojpodlažnom podkroví
• Veľká priľahlá budova so siedmimi samostatnými oddeleniami a elektrickým/príkonovým pripojením
• Štedrá záhrada so starými stromami
• Exkluzívna poloha! Útomná oáza pokoja v blízkosti centra
• Verejná doprava a základné služby v pešej vzdialenosti
• Bez provízie realitnej kancelárie – ušetríte až 3,6 %!
Vyžaduje rekonštrukciu
Parametre nehnuteľnosti
| Vek | Nad 50 rokov |
|---|---|
| Číslo inzerátu | 991522 |
| Úžitková plocha | 282 m² |
| Celkové poschodia | 3 |
| Stav | Pred rekonštrukciou |
|---|---|
| PENB | F - veľmi nehospodárne |
| Plocha pozemku | 575 m² |
| Cena za jednotku | 2 624 € / m2 |
Čo táto nehnuteľnosť ponúka?
| Pivnica |
| MHD 3 minúty pešo |
V okolí nehnuteľnosti nájdete
Stále hľadáte to pravé?
Nastavte si strážneho psa. Ponuky vybrané na mieru dostanete súhrnne 1× denne e-mailom. S Premium profilom máte po ruke rovno 5 strážcov a keď sa niečo objaví, informujú vás obratom.



















