Prenájom domu 4+1 • 128 m² bez realitky, Severné Porýnie - Westfálsko
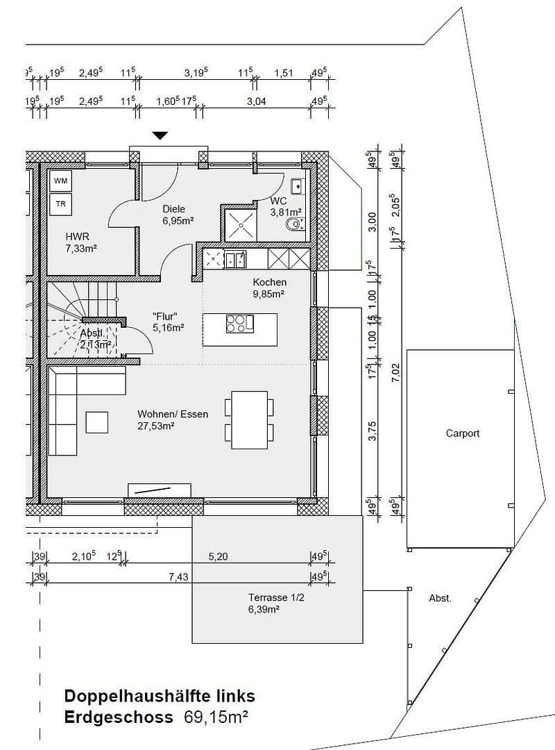
, Severné Porýnie - WestfálskoMHD 2 minúty pešo • ParkovanieDvojdom s obytnou plochou 128 m² bol postavený v roku 2023 v pokojnej južnej lokalite, blízko centra, na parcele o rozlohe 295 m² ako KfW energeticky úsporný dom so vstavanou záhradou Weitblick.
Ponúka 4 izby s moderným dispozíciou, t. j. kuchynský priestor je integrovaný do obývacej/jedálenskej miestnosti.
Z obývacej/jedálenskej izby (42 m²) s podlahovými oknami sa dostanete cez priestrannú južnú terasu (19 m²) do vstavaného, približne 80 m² veľkého južného záhrady.
V prízemí, susediacom s priestranným vstupným priestorom, sa nachádza aj hosťovské WC s komfortnou sprchou a veľký úložný priestor.
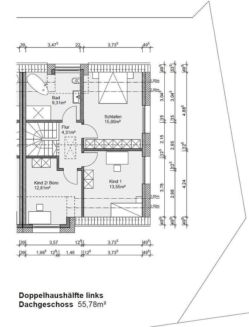
Dubové masívne drevené schody vedú do horného poschodia, ktoré ponúka 3 spálne a wellness kúpeľňu s voľne postavenou vaňou a walk-in sprchou.
Veľký podkrovný priestor, úplne izolovaný, poskytuje veľa úložného priestoru – dvojdom nie je suterénovaný.
V tomto KfW‑40 energeticky úspornom dome sú všade podlahové kúrenie s svetlosivými dlaždicami, ktoré majú noblesnú prírodnokameňovú optiku a ktoré sa opakujú aj na stenách kúpeľní.
Kúrenie je zabezpečené ekologicky vyrobeným diaľkovým teplom.
Pre tieňovanie sú v obytných miestnostiach inštalované elektricky ovládateľné vonkajšie žalúzie a v spálňach rolety.
Dvojdom je zvonku doplnený o štýlový Wing-Carport, ďalšie parkovacie miesto pre osobné auto pred ním a samostatný úložný priestor pre bicykle a záhradné náradie.
Hiddesen ponúka výbornú infraštruktúru s množstvom nákupných možností, lekármi a školami. Spojenie s verejnou dopravou je dobre zrealizované a okolité zelené plochy pozývajú na voľnočasové aktivity. Detmold tak spája mestský život s možnosťami oddychu v prírode.
Parametre nehnuteľnosti
| Vek | Nad 50 rokov |
|---|---|
| Stav | Veľmi dobrý |
| Číslo inzerátu | 991279 |
| Úžitková plocha | 128 m² |
| Celkové poschodia | 2 |
| Dostupné od | 1. 6. 2026 |
|---|---|
| Dispozícia | 4+1 |
| PENB | A - Mimoriadne úsporné |
| Plocha pozemku | 295 m² |
| Cena za jednotku | 15 € / m2 |
Čo táto nehnuteľnosť ponúka?
| Parkovanie | |
| Terasa |
| MHD 2 minúty pešo |
V okolí nehnuteľnosti nájdete
Stále hľadáte to pravé?
Nastavte si strážneho psa. Ponuky vybrané na mieru dostanete súhrnne 1× denne e-mailom. S Premium profilom máte po ruke rovno 5 strážcov a keď sa niečo objaví, informujú vás obratom.



















