
Predaj domu 4+1 • 124 m² bez realitkyGRUNDSTÜCK ORTSRAND EXKLUSIV NUR FÜR DANWOOD-HAUSBAU ST. Stefan ob Stainz Steiermark 8511
GRUNDSTÜCK ORTSRAND EXKLUSIV NUR FÜR DANWOOD-HAUSBAU ST. Stefan ob Stainz Steiermark 8511MHD do minúty pešo • GarážNapriek malej zastavanej ploche spĺňa tento dom všetky požiadavky moderného bývania. Toto priestorové zázrak splní všetky nároky moderného bývania – s maximálnou funkčnosťou. Ideálne pre tých, ktorí plánujú s vedomým prístupom a nechcú sa ničomu vzdať. Premyslený dom, ktorý prekvapí: s obývacou časťou naplnenou svetlom, chytrým usporiadaním priestorov a všetkým, čo moderné bývanie vyžaduje. Pre ľudí, ktorí milujú to podstatné – a vážia si komfort.
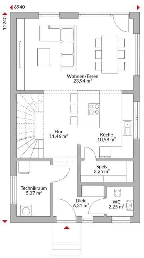
Funkčný, efektívny, pohodlný: Tento dom ukazuje, koľko kvality života sa skrýva v kompaktné architektúre. Pre všetkých, ktorí plánujú s dlhodobou víziou – a využívajú priestor inteligentne.
Na vašom pozemku alebo v…
Güssing: cca 2 600 m², poloha úplne rovinná. Veľkosti pozemkov a ich polohy sú voľne voliteľné. Rozmery od 500 m² do 1 500 m².
Tu sú stavebné pozemky prvej triedy! V najlepšej lokalite a s úchvatným výhľadom na nádherný hrad Güssing!
Güssing ponúka budúcnosti zabezpečený, dostupný a energeticky nezávislý život v prírode, čo robí investíciu do nehnuteľnosti tu strategickou hodnotovou investíciou.
Prečo Güssing
Energetický priekopník a udržateľnosť:
Mesto je energeticky autonómne a medzinárodne uznávané.
Vysoké pokrytie (viac ako 85 %) regionálnym teplom z biomasy vedie k stabilným a nízkym nákladom na vykurovanie.
Dostupné ceny nehnuteľností:
Ceny sú stále výrazne výhodnejšie ako priemerné v Rakúsku, čo umožňuje splnenie sna o vlastnom bývaní s veľkorysými pozemkami.
Silná infraštruktúra a kvalita života:
Ako predmestie okresu, Güssing zaručuje krátke vzdialenosti a najlepšiu dostupnosť služieb.
Plánované veľké investície:
Nový vzdelávací kampus a moderné lekárske centrum (od 2026).
Kultúrne centrum (hrad Güssing) a blízkosť termálnych kúpeľov.
Kompletné otvorenie S7 prináša značné výhody pre Güssing a jeho obyvateľov:
• Rýchlejšie spojenectvo s aglomeráciami: Rýchlostná cesta výrazne skracuje cestovný čas k diaľnici A2 na juh, čím sa výrazne znižujú časové vzdialenosti do Grazu a Viedne.
• Odľahčenie regiónu: Obejdenie miest, ktoré boli predtým zaťažené tranzitnou premávkou (ako Fürstenfeld a Rudersdorf), sa presmeruje na novú trasu.
• Ekonomické impulzy: Nové napojenie – medzi iným cez zjazd pri Rudersdorf/Dobersdorf a blízkosť spojenia s Königsdorfom – posilňuje Güssing ako predmestie okresu a hospodárske centrum vďaka lepšej dostupnosti a podpore nových priemyselných parkov.
Hodnotová stabilita a rozvojový potenciál:
Cielené komunálne investície do infraštruktúry, oživenia centra mesta a technologického centra zabezpečia dlhodobú hodnotovú stabilitu nehnuteľností.
Komunálna stratégia sa zameriava na zvládnutie demografických výziev a na etablovanie Güssingu ako atraktívneho miesta na bývanie aj podnikanie.
Cieľová skupina:
Rodiny, ktoré hľadajú budúcnosť, bezpečnosť a prírodu, ako aj všetkých, ktorí si cenia nízke náklady na energiu a ekologickú zodpovednosť.
Medzi vlastníkom pozemku a staviteľom domu neexistuje žiadne hospodárske prepojenie.
Technika
Technika, ktorá uľahčuje bývanie: Technický balík Today 3AL kombinuje modernú tepelné čerpadlovú technológiu, ohrevný zásobník teplej vody a inteligentný ventilačný systém. Výsledok: domov, ktorý sa automaticky postará o príjemnú vnútornú klímu – teplo v zime, sviežo v lete a efektívne počas celého roka.
Podlahové kúrenie zabezpečuje útulné teplo v každom priestore, zatiaľ čo centrálna ventilácia s rekuperáciou tepla šetrí energiu a zároveň zabezpečuje stálu čerstvosť vzduchu.
Technický balík, ktorý dokonale spája komfort, efektívnosť a budúcu bezpečnosť.
Elektrické žalúzie:
Žalúzie DANWOOD sú ideálnym doplnkom k energeticky účinnej konštrukcii DANWOOD. Chránia v lete pred horúčavou, v zime udržujú teplo v dome a vždy zabezpečujú súkromie a bezpečnosť. S elektrickým ovládaním alebo inteligentným riadením ich možno pohodlne a intuitívne používať – čo predstavuje každodenný komfortný prínos. Stručne povedané, pri DANWOOD sú žalúzie voliteľné, no technicky dokonale integrované – elektrické, odolné a ideálne pre modernú architektúru.
Sanitárne vybavenie:
• Sklenená sprchová stena – bezpečná, pohodlná
• Zavesená toaleta – ľahko sa čistí, hygienická
• Umývadlo
• Kvalitné armatúry – odolné, ľahko ovládateľné, teplotne stabilné
• Voliteľne podľa modelu:
– Vaňa – perfektná na oddych alebo spoločné večerné rituály
– Voliteľne dvojité umývadlové zariadenie – žiadne zhromažďovanie počas ranných hodín
– Zabudované armatúry – bezpečné, elegantné, ľahko čistiteľné
Všetko je navrhnuté tak, aby uľahčilo každodenný život a zároveň zostalo dlho estetické.
Maľovacie práce:
Steny a stropy – pripravené na sťahovanie.
Všetky vnútorné steny a stropy budú zrealizované v štandarde „na kľúč“. To znamená:
• Hladké, zagruntované a zbrúsené povrchy
• Biela finálna úprava vo forme kvalitnej disperznej farby
• Čistý, rovnomerný vzhľad vo všetkých obytných priestoroch.
DANWOOD dodáva už hotový povrch.
• Žiadne viditeľné spáry alebo prechody vďaka priemyselnej precíznosti.
Dom je okamžite obývateľný bez potreby dodatočných maľovacích prác.
Vinyl/Laminát/Dlaždice:
Obývacie a spálne – teplé, robustné, príjemné!
Všetky obývacie a spálne budú vybavené kvalitnými, ľahko udržiavateľnými podlahovými krytinami, ktoré spájajú teplo, komfort a každodennú praktickosť.
Štandardné prevedenie (v závislosti od modelu):
• Kvalitná dizajnová vinylová podlaha s dreveným vzhľadom
• Odolná, tichá, príjemná na chôdzu bosou nohou
• Ideálna pre rodiny, domácich miláčikov a každodenné využitie
• Harmonické farebné svety (svetlá dub, prírodná dub, sivá dub – podľa výberu v Design Centre Pinkafeld)
Voliteľné:
• Laminát v prémiovej kvalite
• Reálny drevený parket (za príplatok)
Alternatívne dizajnové línie (betónový vzhľad, tmavý drevený vzhľad, teplé prírodné tóny) DANWOOD
Poznámka: Všetky ceny domov platia od hornej hrany základovej dosky. Obrázky môžu zobrazovať voliteľné špeciálne vybavenia.
Parametre nehnuteľnosti
| Stav | Novostavba |
|---|---|
| Číslo inzerátu | 991109 |
| Plocha pozemku | 1 m² |
| Cena za jednotku | 2 248 € / m2 |
| Dispozícia | 4+1 |
|---|---|
| Úžitková plocha | 124 m² |
| Celkové poschodia | 2 |
Čo táto nehnuteľnosť ponúka?
| Garáž |
| MHD 0 minút pešo |
V okolí nehnuteľnosti nájdete
Stále hľadáte to pravé?
Nastavte si strážneho psa. Ponuky vybrané na mieru dostanete súhrnne 1× denne e-mailom. S Premium profilom máte po ruke rovno 5 strážcov a keď sa niečo objaví, informujú vás obratom.





















