
Predaj domu 4+1 • 124 m² bez realitkyGRUNDSTÜCK EXKLUSIV NUR FÜR DANWOOD-HAUSBAU ORTSRAND STAINZ St Stefan ob Stainz Steiermark 8511
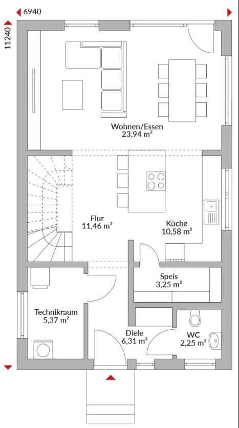
Napriek malej základej ploche tento dom spĺňa všetky požiadavky moderného bývania. Tento priestorový zázrak spĺňa všetky nároky moderného bývania – s maximálnou funkčnosťou. Ideálny pre tých, ktorí plánujú premyslene a nechcú si nič vyradiť. Premyslený dom, ktorý prekvapí: s priesvitným obytným priestorom, šikovným rozložením izieb a so všetkým, čo moderné bývanie vyžaduje. Pre ľudí, ktorí milujú podstatu vecí – a cenia si komfort.
Funkčný, efektívny, pohodlný: Tento dom ukazuje, koľko kvality života môže byť ukryté v kompaktnom architektonickom dizajne. Pre všetkých, ktorí plánujú s dlhodobým víziou – a využívajú priestor inteligentne.
Na vašom pozemku alebo v…
Güssingu: cca 2 600 m², poloha úplne rovinatá. Veľkosti pozemkov a ich umiestnenie sú voľne voliteľné. Veľkosti od 500 m² do 1 500 m².
Tu sú stavebné pozemky prvotriednej kvality! V najlepšej lokalite a s dychberúcim výhľadom na nádherný zámok Güssing!
Güssing ponúka budúcnostne zabezpečený, dostupný a energeticky nezávislý život v prírode, čo robí investíciu do nehnuteľnosti tam strategicky hodnotnou investíciou.
Prečo Güssing
Energetický priekopník a udržateľnosť:
Mesto je energeticky autonómne a medzinárodne uznávané.
Vysoké pokrytie (nad 85%) regionálnou biomasovou diaľkovou tepelnou energiou vedie k stabilným a výhodným nákladom na vykurovanie.
Dostupné ceny nehnuteľností:
Ceny sú stále výrazne nižšie ako priemerné v Rakúsku, čo umožňuje sen o vlastnom dome s priestrannými pozemkami.
Silná infraštruktúra a kvalita života:
Ako prímestská oblasť zaručuje Güssing krátke vzdialenosti a najlepšiu dostupnosť služieb.
Plánované veľké investície:
Nový vzdelávací campus a moderné lekárske centrum (od roku 2026).
Kultúrne centrum (zámok Güssing) a blízkosť termálnych kúpeľov.
Kompletné otvorenie S7 prináša významné výhody pre Güssing a jeho obyvateľov:
– Rýchlejšie spojenie s metropolitnými centrami: Rýchlostná cesta výrazne skracuje cestovný čas k diaľnici A2 juh, čím sa výrazne znižuje doba cestovania do Grazu a Viedne.
– Odľahčenie regiónu: Nová trasa presmerováva tranzitnú dopravu, ktorá predtým prechádzala cez silno zaťažené obce ako Fürstenfeld a Rudersdorf.
– Ekonomické impulzy: Nové spojenie, okrem iného prostredníctvom prípojky pri Rudersdorf/Dobersdorf a blízkosti k prípojke Königsdorf, posilňuje Güssing ako prímestskú oblasť a ekonomické centrum vďaka lepšej dostupnosti a podpore nových priemyselných parkov.
Hodnotová stabilita a rozvojový potenciál:
Cielené komunálne investície do infraštruktúry, oživenia centra mesta a technologického centra zabezpečujú dlhodobú hodnotovú stabilitu nehnuteľností.
Miestna stratégia sa zameriava na zvládnutie demografických výziev a etablovanie Güssingu ako atraktívnej lokality na bývanie a podnikanie.
Cieľová skupina:
Rodiny, ktoré hľadajú budúcnosť, bezpečnosť a prírodu, ako aj všetkých, ktorí si cenia nízke náklady na energiu a ekologickú zodpovednosť.
Ďalšie pozemky v:
Pozemok, 8323 Kohldorf: Stavebný pozemok so slnečným osvetlením v východnom štajerskom kopcovitom regióne, 15 km od Grazu!
Veľkosť: 758 m² Kúpna cena: € 66 000, --
Pozemok, 8323 Kohldorf: Slnečný stavebný pozemok v Kohldorfe, 15 km východne od Grazu!
Veľkosť: 787 m² Kúpna cena: € 69 000, --
Pozemok, 8311 Markt Hartmannsdorf: Úplne inžiniersky vybavený, slnečný stavebný pozemok v Markt Hartmannsdorf
Veľkosť: 920 m² Kúpna cena: € 53 000, --
Pozemok, 9335 Lölling Graben: Stavebný pozemok s úchvatným diaľkovým výhľadom v malebnom karintskom horskom prostredí
Veľkosť: 1 001 m² Kúpna cena: € 50 000, --
Pozemok, 8075 Hart pri Graze: Slnečný pozemok pred bránami Grazu
Veľkosť: 1 980 m² Kúpna cena: € 475 000, --
Pozemok na predaj v Stainze: Slnečný pozemok na okraji obce Stainz
Veľkosť: 825 m² Kúpna cena: € 149 000,
Medzi vlastníkom pozemku a staviteľom domu neexistuje žiadne ekonomické spojenie.
Rodinný dom so 4 izbami – exkluzívne vybavenie!
Kľúč odovzdaný, vrátane dodania a montáže od vrcholu základu.
️ Strešný konštrukčný systém zosilnený proti snežnej záťaži
️ Vzduch-voda tepelné čerpadlo a podlahové kúrenie
️ Ventilácia obytných priestorov s rekuperáciou tepla (letné chladenie)
️ Elektrické rolety v celom dome
️ Podlahové krytiny a sanitárne zariadenia podľa vlastného výberu
️ Príprava na fotovoltaiku
️ Kompletný balík „bez starostí“
Možnosť vlastnej účasti – úplne podľa vašich predstáv.
Poradenstvo a predaj:
Pani Tatjana Wyss
+43 676 553 77 47
tatjana.wyss@danwood.at
Zabezpečte si teraz úvodné poradenstvo!
Požiadajte o stavebný opis a katalógy!
Na tento účel je potrebné uviesť telefónne číslo, e-mailovú adresu a adresu.
Ďakujeme!
FINANCOVACÍ KALKULÁTOR
https://www.finaustria.at/finanzierungsrechner
ĎALŠIE PONUKY!
https://qr.scan.page/uploads/pdf/1752348182250_686ba1debcb60.pdf
Parametre nehnuteľnosti
| Stav | Novostavba |
|---|---|
| Číslo inzerátu | 987705 |
| Plocha pozemku | 1 m² |
| Cena za jednotku | 2 248 € / m2 |
| Dispozícia | 4+1 |
|---|---|
| Úžitková plocha | 124 m² |
| Celkové poschodia | 2 |
Čo táto nehnuteľnosť ponúka?
| Garáž |
| MHD 0 minút pešo |
V okolí nehnuteľnosti nájdete
Stále hľadáte to pravé?
Nastavte si strážneho psa. Ponuky vybrané na mieru dostanete súhrnne 1× denne e-mailom. S Premium profilom máte po ruke rovno 5 strážcov a keď sa niečo objaví, informujú vás obratom.






















