
Predaj bytu 1+kk • 40 m² bez realitkyHnězdenská, Praha - Troja
Nabízím k prodeji nadstandardně velký a světlý byt 1+kk se spací nikou v lokalitě Praha 8 Troja. Byt je orientovaný na jih do klidného vnitrobloku a nachází se ve 3. patře moderního domu s nadstandardním servisem a bezpečím.
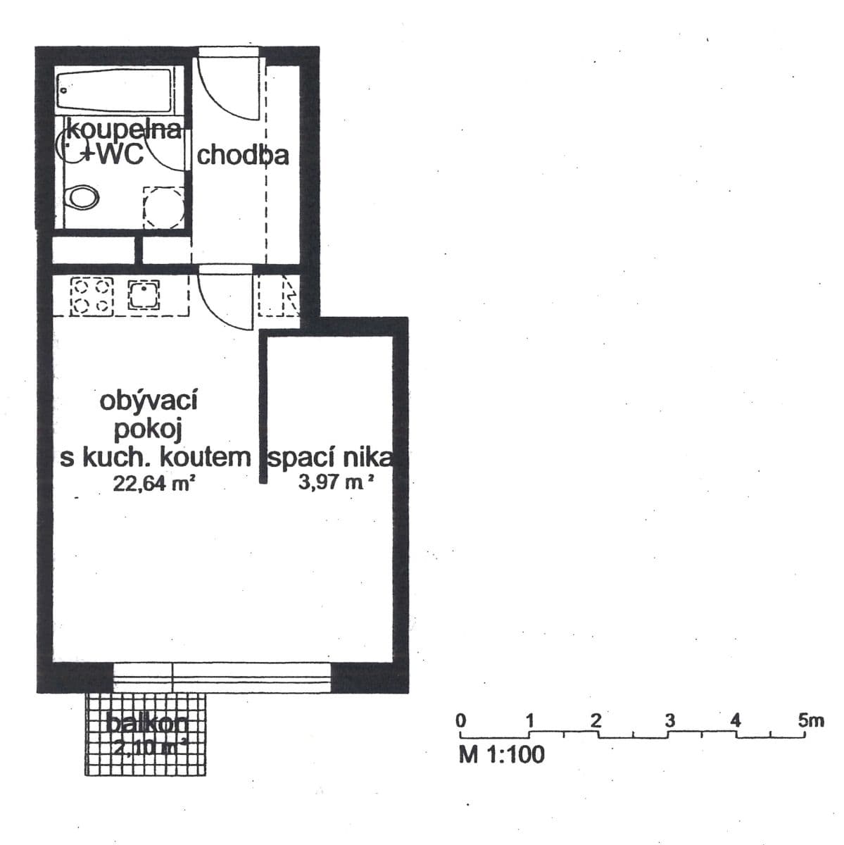
Dispozice a vybavení:
Interiér (35,9 m²): Velkorysý obývací pokoj s chytře řešenou spací nikou, která poskytuje soukromí oddělené od denní části, koupelna s vanou a předsíň s úložnými prostory.
Balkon (2,2 m²) do vnitrobloku.
Zděný sklep (2,6 m²) s bezpečnostními dveřmi.
Dům: Vchod je vybaven dvěma výtahy (jeden je větší, což oceníte při stěhování i velkých nákupech) a bezbariérovým přístupem. Dům je hlídán nonstop ostrahou. V domě je dostupná optika pro připojení k internetu.
Lokalita:
Doprava: Zastávka autobusu jen 150 m od domu (7 min na metro C Kobylisy). Parkování je možné u domu (nejsou zde zóny) nebo je možné si pronajmout parkovací stání v suterénu budovy.
Příroda: Je možná sousedská permanentka do Botanické zahrady za manipulační poplatek. V okolí také Čimický háj a mnoho další zeleně, včetně Trojské kotliny.
Vybavenost: V docházkové vzdálenosti OC Krakov, poliklinika, pošta a kompletní síť obchodů.
Parametre nehnuteľnosti
| Dostupné od | 13. 2. 2026 |
|---|---|
| Konštrukcia budovy | Skeletová |
| Vybavené | Čiastočne |
| Číslo inzerátu | 990916 |
| PENB | C - Hospodárne |
| Úžitková plocha | 40 m² |
| Stav | Veľmi dobrý |
|---|---|
| Dispozícia | 1+kk |
| Poschodie | 3. poschodie z 16 |
| Vlastníctvo | Osobné |
| Umiestnenie | Sídlisko |
| Cena za jednotku | 159 750 CZK / m2 |
Vyberáte byt?
Majte istotu, že máte všetky dôležité informácie!
Čo táto nehnuteľnosť ponúka?
| Balkón 2,2 m² | |
| Pivnica 2,6 m² | |
| Parkovanie |
| Bezbariérový prístup | |
| Výťah |
V okolí nehnuteľnosti nájdete
Stále hľadáte to pravé?
Nastavte si strážneho psa. Ponuky vybrané na mieru dostanete súhrnne 1× denne e-mailom. S Premium profilom máte po ruke rovno 5 strážcov a keď sa niečo objaví, informujú vás obratom.


















