
Predaj bytu 3+kk • 124 m² bez realitkyKoblberg 3 Soyen Koblberg Bayern 83564
Predávame náš udržiavaný 3,5-izbový byt v pokojnej lokalite na okraji obce Soyen, s priestorovou blízkosťou k Wasserburg am Inn.
Byt je obzvlášť vhodný pre páry, mladé rodiny, ako aj pre ľudí, ktorí si cenia tiché obytné prostredie a dobré možnosti pre homeoffice.
Tento byt bol pre nás po roky veľmi príjemným domovom – najmä kvôli pokoju, priestrannosti a flexibilnému usporiadaniu izieb.
Nachádza sa v 1. poschodí malého viacbytového domu so iba tromi bytovými jednotkami, v pokojnej slepej uličke bez priechodovej dopravy. Oficiálne patrí k Soyen, ale priestorovo je bližšie k Wasserburg am Inn než do centra Soyen.
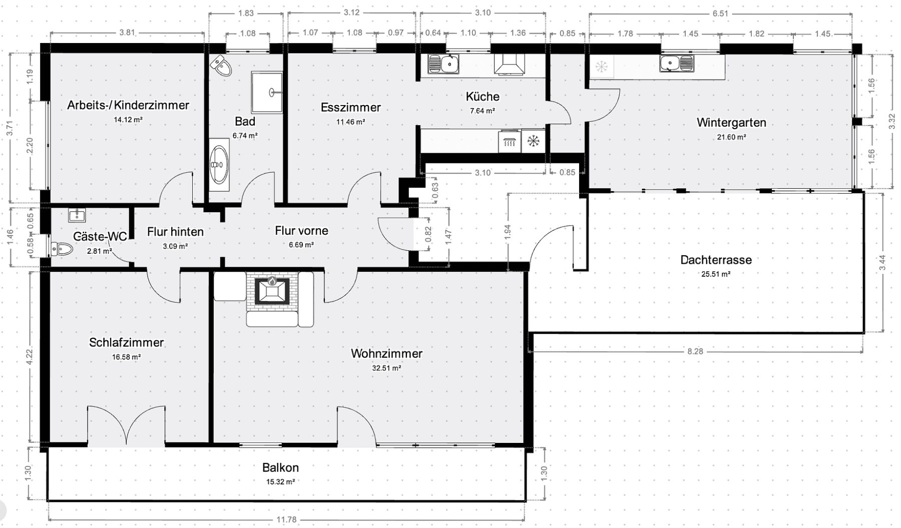
Približne 124 m² obytného priestoru je rozdelených na 3,5 izby:
• priestranná obývačka s prístupom na balkón
• spálňa taktiež s prístupom na balkón
• plnohodnotná pracovňa, ideálna pre homeoffice
• jedáleň, ktorá je otvorene spojená s kuchyňou, a preto sa počíta ako polovičná izba
Zimná záhrada nie je vykurovaná a nepočítava sa do obytného priestoru. Vďaka svojej dobrej izolácii ju však možno využívať počas celého roka. Odtiaľ je priamy prístup na veľkú strešnú terasu, ktorá patrí výlučne bytu. Navyše existuje zamykateľný vstup na terasu cez schodisko, čo je v každodennom živote veľmi praktické.
Byt je udržiavaný a je okamžite k nastúpeniu.
Kúpeľňa je vybavená sprchou a okrem toho je k dispozícii samostatné hostinské WC. Zabudovaná kuchyňa je funkčná a patrí bytu. V zime zase keramický kachlík v obývačke poskytuje príjemné teplo.
K bytu patria aj dve priestranné suterénne miestnosti, garáž s wallboxom pre elektromobily a dodatočné vonkajšie parkovacie miesto. Na streche je inštalovaná fotovoltaická elektráreň, ktorú spoločným spôsobom využíva domácnosť. V dome je tiež k dispozícii optické pripojenie.
Byt sa nachádza v pokojnej obytné oblasti na okraji obce Soyen, bez priechodovej dopravy, a je priestorovo bližšie k Wasserburg am Inn než do centra Soyen. Okolie je pokojné a príjemne osamotené, bez toho aby bolo vzdialené.
Wasserburg am Inn, s obchodmi, lekármi, školami, gastronómiou a železničnou stanicou, je dostupný za krátky čas. Zariadenia pre každodenné potreby sú k dispozícii smerom k Soyen aj k Wasserburg.
Lokalita je obzvlášť vhodná pre ľudí, ktorí chcú bývať v tichu, ale zároveň byť dobre napojení na okolie.
Parametre nehnuteľnosti
| Vek | Nad 50 rokov |
|---|---|
| Stav | Dobrý |
| Poschodie | 1. poschodie z 2 |
| PENB | D - Menej hospodárne |
| Cena za jednotku | 4 347 € / m2 |
| Dostupné od | 15. 2. 2026 |
|---|---|
| Dispozícia | 3+kk |
| Číslo inzerátu | 990719 |
| Úžitková plocha | 124 m² |
Čo táto nehnuteľnosť ponúka?
| Balkón | |
| Garáž | |
| MHD 1 minúta pešo |
| Pivnica | |
| Parkovanie |
V okolí nehnuteľnosti nájdete
Stále hľadáte to pravé?
Nastavte si strážneho psa. Ponuky vybrané na mieru dostanete súhrnne 1× denne e-mailom. S Premium profilom máte po ruke rovno 5 strážcov a keď sa niečo objaví, informujú vás obratom.




























