
Predaj domu 3+1 • 87 m² bez realitkyGRUNDSTÜCK 800M GRAZ EXKLUSIV NUR FÜR DANWOOD-HAUSBAU Hart bei Graz Steiermark 8075
GRUNDSTÜCK 800M GRAZ EXKLUSIV NUR FÜR DANWOOD-HAUSBAU Hart bei Graz Steiermark 8075MHD 2 minúty pešo • GarážBungalov: Nižšie v PDF nájdete niekoľko príkladov cien!
Vážené stavebné investorky a investori,
Chcete si splniť sen o vlastnom dome, ale nie ste si istí, ktorý dodávateľ je pre vás ten pravý alebo kto vám môže postaviť dom v želanej konštrukcii?
S DAN-WOOD-HOUSE môžete svoj vysnívaný dom zrealizovať – aj keď ešte nemáte konkrétny stavebný plán. Vyberte si z 130 rôznych typov domov a prispôsobte si ich bezplatne podľa svojich predstáv. K dispozícii sú tiež rôzne varianty stien.
Aká geniálna myšlienka: Nejde o to, čo DAN-WOOD alebo jednotlivé spoločnosti ponúkajú, ale ako vyzerajú vaše individuálne predstavy o dome snov! Tu vám ponúkneme odborné poradenstvo, ktoré vás nadchne!
Ponúkam vám svoje individuálne poradenstvo pre váš projekt! Začínam s úvodnou konzultáciou, ktorú najradšej vykonám priamo na vašom pozemku. Tvar, výškový rozdiel a orientácia pozemku sú tu absolútnymi hlavnými aktérmi!
Pozemok ešte nemáte? Žiadny problém! Rada vám poskytnem prehľad o mnohých skvelých možnostiach, ako môžete navrhnúť DAN-WOOD domy. Je tu toľko zaujímavých aspektov, ktoré treba prediskutovať: typ domu, dispozícia, tvar strechy, vykurovanie, elektroinštalácie, tienenie a možné vybavenie ako „Smart Home“.
Je naozaj dôležité poznať celkové finančné náklady vrátane vzorkovania!
S radosťou vám oznamujem, že pre tento účel vykonám predbežné vzorkovanie. Takto si môžete tieto náklady jednoducho naplánovať! Je to naozaj veľká pomoc! Vďaka tomu si nielen vytvoríte finančný plán, ale aj hľadáte financovanie.
Neváhajte a kontaktujte ma už teraz! 0676 5537747
Objednávka katalógu pod „Katalog Serie Today“ tatjana.wyss@danwood.at
Pri objednávke uveďte svoju adresu a telefónne číslo.
Na vašom pozemku alebo v…
Güssing: cca 2 600 m², lokalita úplne rovinatá, veľkosti a polohy pozemkov sú voľné. Veľkosti od 500 m² do 1500 m².
Tu sú stavebné pozemky najvyššej triedy! V najlepšej lokalite a s dychberúcim výhľadom na krásny hrad Güssing!
Güssing ponúka perspektívny, cenovo dostupný a energeticky nezávislý život v prírode, čo z investície do nehnuteľnosti tam robí strategický hodnotový prínos.
Prečo Güssing
Energetický priekopník a udržateľnosť:
Mesto je energeticky nezávislé a medzinárodne uznávané.
Vysoké pokrytie (precí 85 %) regionálnou biomásovou diaľkovou tepelnou sieťou vedie k stabilným, lacným nákladom na vykurovanie.
Dostupné ceny nehnuteľností:
Ceny sú stále výrazne nižšie ako priemer v Rakúsku, čo umožňuje splniť si sen o vlastnom dome s veľkorysými pozemkami.
Silná infraštruktúra a kvalita života:
Ako okresná predmestská oblasť zaručuje Güssing krátke vzdialenosti a najlepšie služby.
Plánované veľké investície:
Nový vzdelávací kampus a moderné lekárske centrum (od roku 2026).
Kultúrne centrum (hrad Güssing) a blízkosť termálnych kúpeľov.
Úplné otvorenie S7 prináša značné výhody pre Güssing a jeho obyvateľov:
Rýchlejšie spojenie s metropolitnými oblasťami: Rýchlostná cesta výrazne skracuje čas prejazdu k diaľnici A2 južná, čím sa cestovné časy do Grazu a Vied výrazne znižujú.
Odľahčenie regiónu: Nová trasa odvedie tranzitnú premávku, ktorá predtým zaťažovala obce ako Fürstenfeld a Rudersdorf.
Hospodárske impulzy: Nové spojenie, mimo iného cez uzol pri Rudersdorf/Dobersdorf a blízkosť k pripojeniu na Königsdorf, posilňuje Güssing ako okresnú predmestskú oblasť a podnikateľské centrum vďaka lepšej dostupnosti a podpore nových priemyselných zón.
Stabilita hodnoty a rozvojový potenciál:
Cielené komunálne investície do infraštruktúry, oživenia centra mesta a technologického centra zabezpečujú dlhodobú hodnotovú stabilitu nehnuteľností.
Obecná stratégia je zameraná na zvládnutie demografických výziev a etablovanie Güssingu ako atraktívnej lokality pre bývanie a podnikanie.
Cieľová skupina
Rodiny, ktoré hľadajú budúcnosť, bezpečie a prírodu, ako aj všetci, ktorí kladú dôraz na nízke náklady na energiu a ekologickú zodpovednosť.
Ďalšie pozemky v:
Pozemok, 8323 Kohldorf: Stavebný pozemok s množstvom slnka v východnom Štajerskom kopcovitom území, 15 km od Grazu!
Veľkosť 758 m², kúpna cena € 66 000, --
Pozemok, 8323 Kohldorf: Slnečný stavebný pozemok v Kohldorfe, 15 km východne od Grazu!
Veľkosť 787 m², kúpna cena € 69 000, --
Pozemok, 8311 Markt Hartmannsdorf: Kompletný, slnečný stavebný pozemok v Markt Hartmannsdorf
Veľkosť 920 m², kúpna cena € 53 000, --
Pozemok, 9335 Lölling Graben: Stavebný pozemok s úchvatným diaľkovým výhľadom v malebnom Koruňanom pohorí
Veľkosť 1001 m², kúpna cena € 50 000, --
Pozemok, 8075 Hart pri Graze: Slnečný pozemok pri bránach Grazu
Veľkosť 1980 m², kúpna cena € 475 000, --
Pozemok na predaj v Stainz: Slnečný pozemok na okraji mesta Stainz
Veľkosť 825 m², kúpna cena € 149 000,
Medzi vlastníka pozemku a staviteľa domu neexistuje žiadne hospodárske prepojenie.
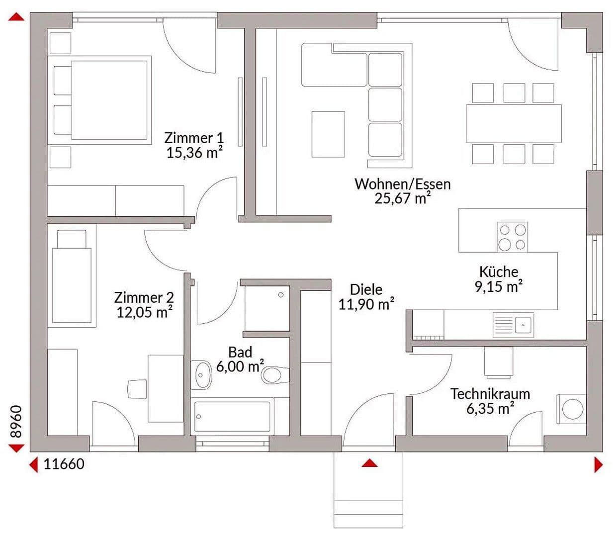
BUNGALOV – 3 izby, kúpeľňa s WC, exkluzívne vybavenie!
Pozemok: k dispozícii 500 m², 1000 m², 1500 m² podľa želania
V cene je zahrnuté:
Odovzdanie „na kľúč“ (vložený nábytok a okamžitý život!)
Doručenie a montáž od základov až po hornú hranu
Strešná konštrukcia zosilnená snehovou záťažou
Vzduchovo-vodná tepelná čerpadlo, podlahové vykurovanie
Decentralizovaná ventilácia obytných priestorov s rekuperáciou tepla (v lete chladenie)
Elektrické žalúzie vo všetkých miestnostiach domu
Všetky podlahové krytiny podľa vášho výberu
Všetky kúpeľňové zariadenia podľa vášho výberu.
Príprava pre fotovoltaiku
Balík kompletného pokojného bývania
VOLiteľne: Samostatná práca je samozrejme možná!
Poradenstvo – predaj, pani Tatjana Wyss
+43 676 553 77 47 tatjana.wyss@danwood.at
Okamžitá informácia alebo prvá konzultácia!
Ďalšie ponuky
https://qr.scan.page/uploads/pdf/1751712478803_686335a001f76.pdf
Požiadajte o stavebný opis a katalógy!
Na tento účel je nutné uviesť vaše telefónne číslo, e-mailovú adresu a adresu.
Ďakujeme!
Parametre nehnuteľnosti
| Vek | Nad 50 rokov |
|---|---|
| Dispozícia | 3+1 |
| Úžitková plocha | 87 m² |
| Celkové poschodia | 1 |
| Stav | Novostavba |
|---|---|
| Číslo inzerátu | 990079 |
| Plocha pozemku | 1 m² |
| Cena za jednotku | 2 564 € / m2 |
Čo táto nehnuteľnosť ponúka?
| Garáž |
| MHD 2 minúty pešo |
V okolí nehnuteľnosti nájdete
Stále hľadáte to pravé?
Nastavte si strážneho psa. Ponuky vybrané na mieru dostanete súhrnne 1× denne e-mailom. S Premium profilom máte po ruke rovno 5 strážcov a keď sa niečo objaví, informujú vás obratom.












