
Predaj domu 3+1 • 87 m² bez realitkyGRUNDSTÜCK AUFGESCHL: EXKLUSIV NUR FÜR DANWOOD-HAUSBAU Markt Hartmannsdorf Steiermark 8311
GRUNDSTÜCK AUFGESCHL: EXKLUSIV NUR FÜR DANWOOD-HAUSBAU Markt Hartmannsdorf Steiermark 8311MHD do minúty pešo • GarážBungalow: Nižšie v PDF nájdete niekoľko príkladových cien!
Vážení stavební investori,
chcete si splniť sen o vlastných štyroch stenách, ale nie ste si istí, ktorý dodávateľ je pre vás ten pravý alebo kto vám môže postaviť dom podľa vašich predstáv o stavebnom type?
S DAN-WOOD-HOUSE môžete zrealizovať svoj vysnívaný dom – aj keď ešte nemáte konkrétny stavebný plán. Vyberte si z 130 rôznych typov domov a prispôsobte si ich úplne zadarmo podľa vašich želaní. Okrem toho si môžete vybrať z rôznych variantov konštrukcie stien.
Aké genialne uvedomenie: Nejde o to, čo DAN-WOOD alebo jednotlivé spoločnosti ponúkajú, ale o to, ako vyzerajú vaše individuálne predstavy o vašom bývacom sne! Tu vám poskytneme dôkladné poradenstvo, ktoré vás nadchne!
Ponúkam vám svoje individuálne poradenstvo pre váš projekt! Začínam s úvodnou konzultáciou, ktorú preferujem vykonávať priamo na vašom stavebnom pozemku. Tvar, výškový rozdiel a orientácia pozemku sú tu absolútne hlavné!
Nemáte ešte pozemok? Žiadny problém! Rada vám poskytnem prehľad o všetkých skvelých možnostiach dizajnu DAN-WOOD domov. Je tu toľko zaujímavých aspektov, ktoré treba vyriešiť – typ domu, dispozícia, tvar strechy, vykurovanie, elektroinštalácia, tienenie a prípadné vybavenie, ako napríklad "Smart Home".
Je naozaj dôležité poznať celkové finančné náklady vrátane výberu vzoriek!
S radosťou vám oznamujem, že na to vykonám úvodnú vzorkovaciu skúšku. Takto si tieto náklady môžete jednoducho naplánovať! To je skutočne vynikajúca výpomoc! Vďaka tomu si môžete nielen vytvoriť finančný plán, ale aj hľadať financovanie.
Neváhajte a kontaktujte ma teraz! 0676 5537747
Objednanie katalógu pod "Katalog Serie Today" tatjana.wyss@danwood.at
Pri objednávke uveďte, prosím, svoju adresu a telefónne číslo.
Na vašom pozemku alebo v…
Güssing: cca 2 600 m², lokalita úplne rovinná, pozemkové rozmery a polohu si môžete voľne zvoliť. Rozmery od 500 m² do 1500 m².
Tu sú stavebné pozemky prvej triedy! V najlepšej lokalite a s úchvatným výhľadom na nádherný hrad Güssing!
Güssing ponúka budúcnosť, cenovo dostupný a energeticky nezávislý život v prírode, čo robí z investície do nehnuteľnosti v tejto oblasti strategickú a hodnotnú investíciu.
Prečo Güssing
Energetický priekopník a udržateľnosť:
Mesto je energeticky autonómne a medzinárodne uznávané.
Vysoké pokrytie (viac ako 85 %) regionálnou biomasy diaľkovým vykurovaním vedie k stabilným a nízkym nákladom na vykurovanie.
Dostupné ceny nehnuteľností:
Ceny sú ešte výrazne nižšie ako priemer v Rakúsku, čo umožňuje splniť sen o vlastnom dome s veľkorysými pozemkami.
Silná infraštruktúra a kvalita života:
Ako okrajová mestská časť zaručuje Güssing krátke vzdialenosti a najlepší prístup ku všetkému.
Plánované veľké investície:
Nový vzdelávací kampus a moderné lekárske centrum (od roku 2026).
Kultúrne centrum (hrad Güssing) a blízkosť kúpeľov.
Úplné otvorenie S7 prináša významné výhody pre Güssing a jeho obyvateľov:
Rýchlejšie spojenie s veľkými mestskými centrami: Rýchla cesta výrazne skracuje čas cesty na diaľnicu A2 Južnú, čím sa výrazne znížia cestovné časy do Grazu a Viedne.
Odľahčenie regiónu: Tranzitná doprava, ktorá predtým zaťažovala obce ako Fürstenfeld a Rudersdorf, bude nasmerovaná po novej trase.
Ekonomické impulzy: Nové spojenie, medzi iným aj s prístupom cez uzlové miesto pri Rudersdorf/Dobersdorf a blízkosťou spojenia Königsdorf, posilňuje Güssing ako okrajovú mestskú časť a podnikateľské centrum vďaka lepšej dostupnosti a podpore nových priemyselných parkov.
Stabilita hodnoty a rozvojový potenciál:
Cielené komunálne investície do infraštruktúry, oživenia centra mesta a technologického centra zabezpečujú dlhodobú hodnotovú stabilitu nehnuteľností.
Komunálna stratégia je zameraná na zvládnutie demografických výziev a etablovanie Güssing ako atraktívnej lokality na bývanie aj podnikanie.
Cieľová skupina
Rodiny, ktoré hľadajú budúcnosť, bezpečnosť a prírodu, ako aj všetkých, ktorí kladú dôraz na nízke náklady na energiu a ekologickú zodpovednosť.
Ďalšie pozemky v:
Pozemok, 8323 Kohldorf: Stavebný pozemok s množstvom slnečného svetla v stredovýchodnom Štajersku, 15 km od Grazu!
Rozloha 758 m², kúpna cena € 66 000, --
Pozemok, 8323 Kohldorf: Slnečný stavebný pozemok v Kohldorfe, 15 km východne od Grazu!
Rozloha 787 m², kúpna cena € 69 000, --
Pozemok, 8311 Markt Hartmannsdorf: Úplne pripravený, slnečný stavebný pozemok v Markt Hartmannsdorf
Rozloha 920 m², kúpna cena € 53 000, --
Pozemok, 9335 Lölling Graben: Stavebný pozemok s úžasným diaľkovým výhľadom v malebnom rakúskom pohorí Kärnten
Rozloha 1001 m², kúpna cena € 50 000, --
Pozemok, 8075 Hart pri Graze: Slnečný pozemok na okraji Grazu
Rozloha 1980 m², kúpna cena € 475 000, --
Pozemok na predaj v Stainz: Slnečný pozemok na okraji mesta Stainz
Rozloha 825 m², kúpna cena € 149 000,
Medzi vlastníkom pozemku a realizátorom domu neexistuje žiadne ekonomické spojenie.
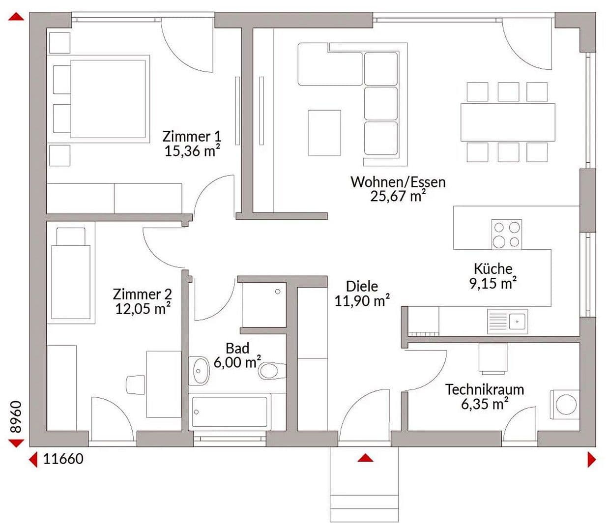
BUNGALOW 3 izby, kúpeľňa, WC, exkluzívne vybavenie!
Pozemok, 500 m², 1000 m², 1500 m² – podľa želania k dispozícii.
V cene je zahrnuté:
Realizácia na kľúč (nábytok je na mieste – stačí sa nasťahovať!)
Doručenie a montáž od základu po horný okraj
Strešná konštrukcia zosilnená pre snehovú záťaž
Vzduchovo-voda tepelné čerpadlo, podlahové kúrenie
Decentralizované vetranie obytných priestorov so spätným získavaním tepla (v lete chladí)
Elektrické rolety v celom dome
Všetky podlahové krytiny podľa vášho výberu
Všetky sanitárne zariadenia podľa vášho výberu.
Príprava na fotovoltaiku
Kompletný balík "bez starostí"
VOLiteľné: Samostatná práca je samozrejme možná!
Poradenstvo – predaj Fr. Tatjana Wyss
+43 676553 77 47, tatjana.wyss@danwood.at
Okamžité informácie alebo úvodná konzultácia!
Ďalšie ponuky:
https://qr.scan.page/uploads/pdf/1751712478803_686335a001f76.pdf
Požiadajte o stavebný popis a katalógy!
Na to je potrebné uviesť vaše telefónne číslo, e-mailovú adresu a adresu.
Ďakujeme!
Parametre nehnuteľnosti
| Vek | Nad 50 rokov |
|---|---|
| Dispozícia | 3+1 |
| Úžitková plocha | 87 m² |
| Celkové poschodia | 1 |
| Stav | Novostavba |
|---|---|
| Číslo inzerátu | 990078 |
| Plocha pozemku | 1 m² |
| Cena za jednotku | 2 564 € / m2 |
Čo táto nehnuteľnosť ponúka?
| Garáž |
| MHD 0 minút pešo |
V okolí nehnuteľnosti nájdete
Stále hľadáte to pravé?
Nastavte si strážneho psa. Ponuky vybrané na mieru dostanete súhrnne 1× denne e-mailom. S Premium profilom máte po ruke rovno 5 strážcov a keď sa niečo objaví, informujú vás obratom.












