Prenájom domu 5+1 • 129 m² bez realitky, Šlezvicko-Holštajnsko
Ahoj,
ponúkame na prenájom dve novostavby dvojdomových polovíc (cca 129 m²) triedy KfW 40 v 25866 Mildstedt od 1. apríla 2026. Dom je vybavený modernou vstavanou kuchyňou, podlahovým kúrením a vzduchovým tepelným čerpadlom. Ku každej polovici patrí slnečná terasa, časť záhrady (cca 400 m²) a prístupný podkrovný priestor. Carport s úložným priestorom a parkovacie miesto sú k dispozícii voliteľne. Záhrada bude zriadená.
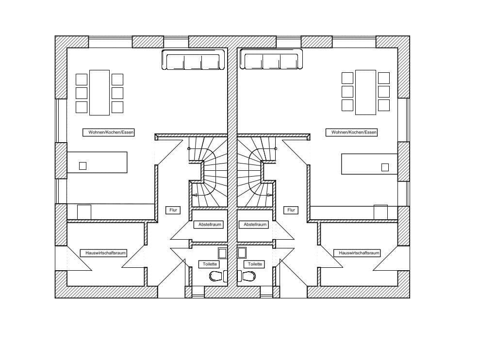
Prízemie ponúka ako vyzdvihnutý prvok priestrannú obývaciu časť s otvorenou kuchyňou. Ďalej obsahuje domácu práčovňu, hosťovské WC a malú úložňu.
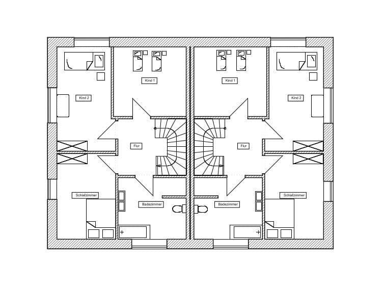
Poschodie pozostáva zo 3 spální a kúpeľne s vaňou a sprchou.
Podkrovie je taktiež priestranné.
Dom je vybavený fotovoltaickou inštaláciou a úložným systémom a ponúka možnosť pripojenia elektrického nabíjacieho zariadenia.
Vybavenie:
- Carport a parkovacie miesto sú pred domom k dispozícii
- Kúpeľňa s vaňou, ďalšie hosťovské WC
- Terasa (s južnou orientáciou) s vlastnou záhradou
- Úložný priestor pre bicykle
- Prízemie: obývacia časť s otvorenou kuchyňou, hosťovské WC, práčovňa
- Poschodie: tri izby, kúpeľňa
- Podkrovie: úložný priestor
Lokalita sa vyznačuje pokojnou polohou na konci ulice, no zároveň je centrálnou časťou Mildstedt. Rýchly prístup autom i na bicykli do Husumu je zabezpečený cez blízku cyklotrasu. Mildstedt ponúka vynikajúcu školu (základnú aj spoločnú) a všetky zariadenia bežného denného života. Lekári, lekáreň a obchody s občerstvením sú pešo dostupné za menej ako 5 minút. Ďalšie stredné školy a centrum mesta Husum sú dostupné do 15 minút bicyklom. Najbližšia zastávka MHD je približne 200 m od domu. Mildstedt má výrazný komunitný a združovaný život a je považovaný za mimoriadne atraktívne miesto na bývanie.
Rovnako sú väčšina zariadení strednej úrovne okresného mesta Husum (napr. bazén) veľmi dobre dostupné (cca 15 minút bicyklom). Kúpeľné a surfovacie miesta na Severnom mori sú dostupné cca 15 minút autom a cca 30 minút bicyklom. Ďalšie možnosti na kúpanie v otvorenom bazéne v Rantrum a pri rieke Treene v Schwabstedt sú tiež výborné dostupné na bicykli.
Mildstedt sa nachádza centrálne medzi Sankt-Peter-Ording a Sylt, ako aj medzi severofrízskymi ostrovmi, a je ideálnym východiskovým bodom pre výlety do týchto oblastí. Husumské nádražie je taktiež prístupné približne do 10 minút bicyklom od domu.
- Domáce zvieratá nie sú vítané
- Poplatky cca 100 €/mesiac
Pri záujme vás prosíme o vyplnenie sebaúdajov.
Parametre nehnuteľnosti
| Dostupné od | 1. 4. 2026 |
|---|---|
| Dispozícia | 5+1 |
| Úžitková plocha | 129 m² |
| Cena za jednotku | 13 € / m2 |
| Stav | Novostavba |
|---|---|
| Číslo inzerátu | 989197 |
| Plocha pozemku | 400 m² |
Čo táto nehnuteľnosť ponúka?
| MHD 0 minút pešo |
| Terasa |
V okolí nehnuteľnosti nájdete
Stále hľadáte to pravé?
Nastavte si strážneho psa. Ponuky vybrané na mieru dostanete súhrnne 1× denne e-mailom. S Premium profilom máte po ruke rovno 5 strážcov a keď sa niečo objaví, informujú vás obratom.




