Prenájom domu 3+1 • 73 m² bez realitkyOldenburg Oldenburg (Oldb) Niedersachsen 26133
Oldenburg Oldenburg (Oldb) Niedersachsen 26133MHD do minúty pešo • ParkovanieOkamžite k dispozícii!
Na prenájom je udržiavaná dvojdomovka s približne 73 m² obytnou plochou, nachádzajúca sa v pokojnej obytné časti Oldenburgu (26133).
Dom sa rozprestiera na prízemí aj poschodí pod strechou a ponúka príjemný, samostatný pocit z bývania.
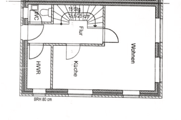
V prízemí sa nachádza otvorený obývací a jedálenský priestor s integrovanou kuchyňou, ako aj samostatné WC pre hostí. Odtiaľ je vstup na terasu.
Na poschodí pod strechou je spálňa, ďalšia izba (napríklad pracovňa alebo izba pre hostí) a kúpeľňa s denným svetlom a sprchou.
Okrem toho je k dispozícii aj podkrovie, ktoré môže byť využité ako úložný priestor.
Dvojdomovka sa nachádza v pokojnej obytné oblasti v oldenburskej štvrti Kreyenbrück (PSČ 26133). Okolie je charakterizované jednopodlažnými a dvojpodlažnými domami a udržiavanou obytnou zástavbou, čo vytvára príjemné a ustálené prostredie.
Obchodné možnosti pre každodenné potreby, supermarkety, pekárne, lekárne a lekári sa nachádzajú v krátkej vzdialenosti. Školy, materské školy aj športové a rekreačné zariadenia sú tiež veľmi dostupné. Viaceré autobusové linky zabezpečujú dobré spojenie s oldenburským centrom a ďalšími časťami mesta.
Oldenburská nemocnica je odtiaľ dosiahnuteľná za pár minút, čo robí lokalitu obzvlášť atraktívnou pre pracovníkov v zdravotníctve. Kombinácia pokojného bývania, mestských infraštruktúr a výborných dopravných spojení ponúka vysokú kvalitu bývania.
Dvojdomovka disponuje solídnym a udržiavaným vybavením. V prízemí sú položené dlaždice, ktoré sú nenáročné na údržbu, zatiaľ čo poschodie pod strechou je vybavené kobercom. Izby sú svetlé a funkčne rozdelené.
Otvorný obývací a jedálenský priestor s integrovanou kuchyňou tvorí centrálnu časť domu. Je k dispozícii zabudovaná kuchyňa. Okrem toho má prízemie samostatné WC pre hostí. Kúpeľňa na poschodí pod strechou je vybavená sprchou a denným svetlom.
Na oknách sú inštalované rolety, ktoré poskytujú ochranu pred pohľadom aj slnečným žiarením. Dom je vykurovaný prostredníctvom centrálneho plynového kúrenia. K nehnuteľnosti patrí aj terasa s ochranným krytom a parkovacie miesto priamo pri dome.
Parametre nehnuteľnosti
| Vek | Nad 50 rokov |
|---|---|
| Stav | Dobrý |
| Číslo inzerátu | 988968 |
| Úžitková plocha | 73 m² |
| Celkové poschodia | 2 |
| Dostupné od | 9. 2. 2026 |
|---|---|
| Dispozícia | 3+1 |
| PENB | B - Veľmi úsporné |
| Plocha pozemku | 222 m² |
| Cena za jednotku | 13 € / m2 |
Čo táto nehnuteľnosť ponúka?
| Parkovanie | |
| Terasa |
| MHD 0 minút pešo |
V okolí nehnuteľnosti nájdete
Stále hľadáte to pravé?
Nastavte si strážneho psa. Ponuky vybrané na mieru dostanete súhrnne 1× denne e-mailom. S Premium profilom máte po ruke rovno 5 strážcov a keď sa niečo objaví, informujú vás obratom.














