
Predaj bytu 3+1 • 66 m² bez realitkySudetenstr. 1, , Porýnie-Falcko
Sudetenstr. 1, , Porýnie-FalckoMHD 5minút pešo • ParkovanieCharakter "Haus-im-Haus" – Skutočné priestorové zázemie pre každú životnú etapu
Zabudnite na anonymné obytné bloky a stiesnené štandardné dispozície. Tento exkluzívny podkrovný mezonet na adrese Sudetenstraße 1 vám ponúka pocit bývania, aký nájdete inak len vo vlastnom dome. V upravenom dome, ktorý pozostáva z iba štyroch bytových jednotiek, si vychutnáte maximálnu súkromie, známe susedstvo a absolútnu pokoj bez tranzitného premávky, nachádzajúci sa na dopravne upokojenej bočnej ulici.
Tri cieľové skupiny – Vaše ideálne stretnutie:
• Vlastníci a mladé páry: Vychutnajte si veľkodušnosť približne 95 m² využiteľného priestoru za cenu štandardného bytu. Tu konečne nájdete priestor pre samostatnú domácu kanceláriu alebo dieťa, bez kompromisov v pohodlí bývania.
• Best-Ager: Zmenšite sa priestorovo, bez toho aby ste sa vzdali architektonickej kvality a modernej výbavy. Prehľadný, mimoriadne efektívny domov v stabilnej, vybudovanej spoločenstve vlastníkov.
• Investori: Využite výhodu nehnuteľnosti s „vstavanou garanciou prenájmu“. História dokazuje: Mladé páry (približne 30 rokov) túto nehnuteľnosť roky milovali pre jej 3 izby, štúdio a 2 parkovacie miesta.
• Záhradný hit: Ku domu patrí pekná spoločná záhrada. To, čo je výnimočné: Každá zo štyroch strán má možnosť postaviť si vlastnú malú záhradnú chatu. Tak si vytvoríte svoj súkromný útočisko v prírode pre grilovačky alebo ako priestor na uskladnenie bicyklov a náradia.
Inteligentné koncepčné riešenie – Váš výrazný zisk priestoru
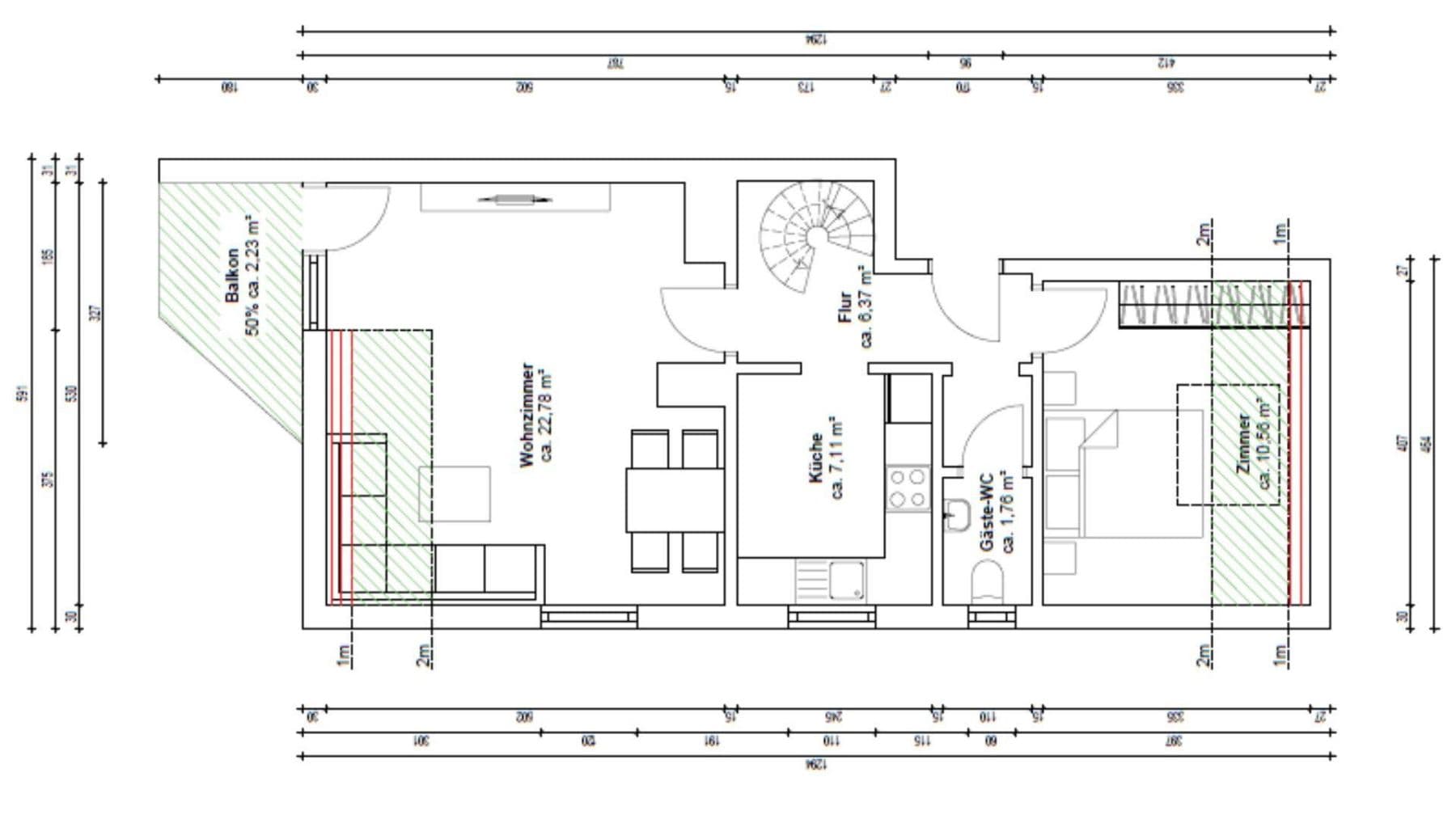
Oficiálna obytná plocha je 65,56 m² (podľa WoFlV). Nenechajte sa však statistikou zmiasť: Pozrite sa podrobne na priložené pôdorysy. Farebne vyznačené plochy ukazujú, že skutočná podlahová plocha je približne 95 m². Keďže podkrovie prudko stúpa, získate tu obrovské podlahové priestory, ktoré sa právne (kvôli výške stropu) hodnotia s 0 % alebo 50 %, ale v bežnom živote sú plne využiteľné.
• Úroveň 1 (Srdce domu – cca 50,81 m² WoFlV): Vaše centrum života. Veľkorysý obývací priestor (22,78 m²), samostatná kuchyňa (7,11 m²), hosťovské WC s oknom a rodičovská spálňa (10,56 m²). Západný balkón ponúka slnko až do neskorých hodín večera. Vysoké priestory pod šikmými stenami (obývačka 0,67 m / spálňa 0,72 m) umožňujú bez problémov umiestniť skrine a príborníky.
• Úroveň 2 (Úroveň ústupu – cca 14,75 m² WoFlV): Po schodoch sa dostanete na súkromnú poschodie s priestrannou svetlou hlavnou kúpeľňou (vaňa a sprcha) a detskou izbou (8,93 m²). Aj tu výrazne optimalizujú využiteľnosť priestoru nízke stropy od 0,42 m.
• Štúdio-extra (Váš bonus): Prístupné priamo z chodby, v najvyššej časti podkrovia na vás čaká kompletne zariadené, vykurované štúdio s denným svetlom (približne 10,84 m² podlahovej plochy). Ideálne riešenie pre koníčky alebo nerušenú prácu z domu.
Idylka južnej Pfalze so súkromnou záhradnou časťou
Sudetenstraße 1 v Offenbach an der Queich spája pokojné bývanie s dokonalým spojením do metropolitnej oblasti:
• Záhradný hit: Ku domu patrí pekná spoločná záhrada. To, čo je výnimočné: Každá zo štyroch strán má možnosť postaviť si vlastnú malú záhradnú chatu. Tak si vytvoríte svoje súkromné útočisko v prírode pre grilovačky alebo ako priestor na uskladnenie bicyklov a náradia.
• Infraštruktúra: Obchody, pekárne, lekári, lekáreň, ako aj školy a materské školy sú priamo v okolí a väčšinou pohodlne dostupné pešo.
• Dopravné spojenie: Len za približne 5 minút ste v univerzitnom meste Landau. Cesta po B10 a A65 ponúka výborné spojenie do Karlsruhe, Neustadt a Ludwigshafenu – ideálne pre dochádzajúcich do práce.
• Voľný čas: Západný balkón je orientovaný k tichšej strane. Vinice a cyklotrasy južnej Pfalze sa nachádzajú hneď pred dverami a pozývajú na oddych.
Kvalitná investícia do svetla, techniky a ochrany proti hluku
Tu prebehla nielen povrchová rekonštrukcia, ale aj zásadná modernizácia. Využite výhody vybavenia, ktoré ďaleko presahuje štandard:
• Exkluzívne sádrokartónové stavby a LED dizajn osvetlenia: V uplynulých rokoch bolo investovaných množstvo prostriedkov. Šikmé stropy v 1. poschodí, komplet schodisko vedúce na druhú úroveň, chodba a všetky izbové priestory hore (kúpeľňa, detská izba, úložný priestor) boli kompletne zrekonštruované z kvalitného sadrokartónu. V rámci tejto rekonštrukcie boli moderne integrované LED svetlá priamo do šikmých stien. Výsledok: Mimoriadne svetlé, moderné prostredie, optický priestor a významná úspora energie vďaka najmodernejším svetelným zdrojom.
• Elektrika & mediálne upgrady: Celá elektroinštalácia bola proaktívne rozšírená. Absolútna jedinečnosť: Každá izba disponuje vlastným SAT pripojením. Žiadne lietajúce káble, nič zbytočného pri streamovaní – plná flexibilita pre TV a multimédiá v každej miestnosti.
• Bezpečnosť a súkromie: Inštalované boli kvalitné vstupné dvere do bytu s vysokou úrovňou zvukovej a tepelnej izolácie. Vy si užijete absolútnu ticho a ochranu pred hlukom zo schodiska.
• Kuchyňa: Úplne nová, nepoužitá vstavaná kuchyňa (IKEA) vrátane modernej značkovej techniky (sporák, varná doska, kombinovaná chladnička-mraznička) – už zahrnutá v kúpnej cene. Flexibilita pri praní: V kuchyni je pripravené prípojné miesto pre vašu práčku. Alternatívou je spoločná práčovňa v suteréne s vlastným pripojením na elektrinu a vodu.
• Podlahy: Celkovo nové, kvalitné laminátové podlahy v dizajne dubovej pokožky a moderné veľkoformátové dlaždice (60x60) v nadčasovej sivej farbe v kuchyni a kúpeľni.
• Parkovanie a elektromobilita: Dve vlastné vonkajšie parkovacie miesta hneď pri dome. Obzvlášť budúce: Káblové vedenie pre wallbox (5x6mm²) je už pripravené od merača energií až k parkovaciemu miestu.
• Masívny suterén: Nie ide o drevené uskladniace priestory, ale o masívne zateplenú miestnosť so stropom výšky 2,4 m s oknom, elektrinou a skutočnými dverami – využiteľnou takmer ako malá dielňa alebo hobby miestnosť.
Nízke prevádzkové náklady a mimoriadne efektívna štruktúra spoločenstva vlastníkov (WEG)
Tento byt je raritou pre kupujúcich, ktorí sa nezameriavajú iba na kúpnu cenu, ale aj na dlhodobú finančnú stabilitu.
Mesačný poplatok do spoločenstva je iba približne 130 € (vrátane vykurovania, teplej vody a odpisov) – hodnota, ktorá sa v tejto triede nehnuteľností zriedka vyskytuje.
Dôvodom je veľmi efektívne, dobre organizované spoločenstvo 4 vlastníkov, ktoré rokmi spoľahlivo funguje:
• Žiadna externá správa domu: Správa prebieha interne, čím sa odpadávajú ďalšie náklady na správu.
• Nákladovo efektívna organizácia: Schodisko, zimná údržba a starostlivosť o záhradu sú organizované spoločne – bez drahých dodávateľov.
• Žiadne náklady na výťah: Absencia výťahu znamená trvalo nižšie náklady na údržbu a odpisy.
• Solídna údržba: Dom je priebežne udržiavaný a modernizovaný (napr. oplotenie odpadového miesta, vonkajšie osvetlenie).
• Technologicky aktuálne: Inštalované sú bezdrôtové merače vody a tepla, optické vlákno je zadané/prítomné.
• Finančne transparentné: Rezervný fond na údržbu k 31.12.2024 dosahuje celkovú sumu 17 782,15 €, pričom podiel tejto jednotky je 3 876,49 €.
Okrem toho už bola schválená rekonštrukcia balkóna. Táto investícia je financovaná z odpisov a má byť realizovaná po predaji, takže nový majiteľ bude môcť svoje už z rezervného fondu uhradené podlahové krytiny optimálne zladiť.
Pre investorov zaujímavé: Byt bol nedávno prenajímaný za približne 950 € mesačne (čo predstavuje približne 4,60 % hrubý výnos / faktor približne 21,7) a bol obzvlášť obľúbený medzi mladými pármi, ktorí cielene využívali funkčnosť mezonetovej koncepcie (obytný priestor + štúdio).
Právna poznámka k izbovému priestoru v podkroví (Úroveň 2): Oblasť označená na pôdoryse ako „Sklad / predelávaný priestor v podkroví“ (približne 10,84 m² podlahovej plochy) je z hľadiska stavebného práva deklarovaná ako užitočná plocha a nie je započítaná do oficiálnej obytné plochy 65,56 m². Táto časť bola bývateľne upravená, vykurovaná a vybavená denným svetlom. Predávana sa výslovne ako užitková plocha. Zodpovednosť za stavebné povolenie ako obytný priestor je vylúčená. Kupujúci akceptuje stav stavby tak, ako ho videl.
Parametre nehnuteľnosti
| Vek | Nad 50 rokov |
|---|---|
| Stav | Po rekonštrukcii |
| Poschodie | 1. poschodie z 2 |
| PENB | D - Menej hospodárne |
| Cena za jednotku | 3 750 € / m2 |
| Dostupné od | 11. 2. 2026 |
|---|---|
| Dispozícia | 3+1 |
| Číslo inzerátu | 988654 |
| Úžitková plocha | 66 m² |
Čo táto nehnuteľnosť ponúka?
| Balkón | |
| Parkovanie |
| Pivnica | |
| MHD 5 minút pešo |
V okolí nehnuteľnosti nájdete
Stále hľadáte to pravé?
Nastavte si strážneho psa. Ponuky vybrané na mieru dostanete súhrnne 1× denne e-mailom. S Premium profilom máte po ruke rovno 5 strážcov a keď sa niečo objaví, informujú vás obratom.






























