
Prenájom bytu 2+1 • 52 m² bez realitkyHornická, Tišnov - Tišnov, Jihomoravský kraj
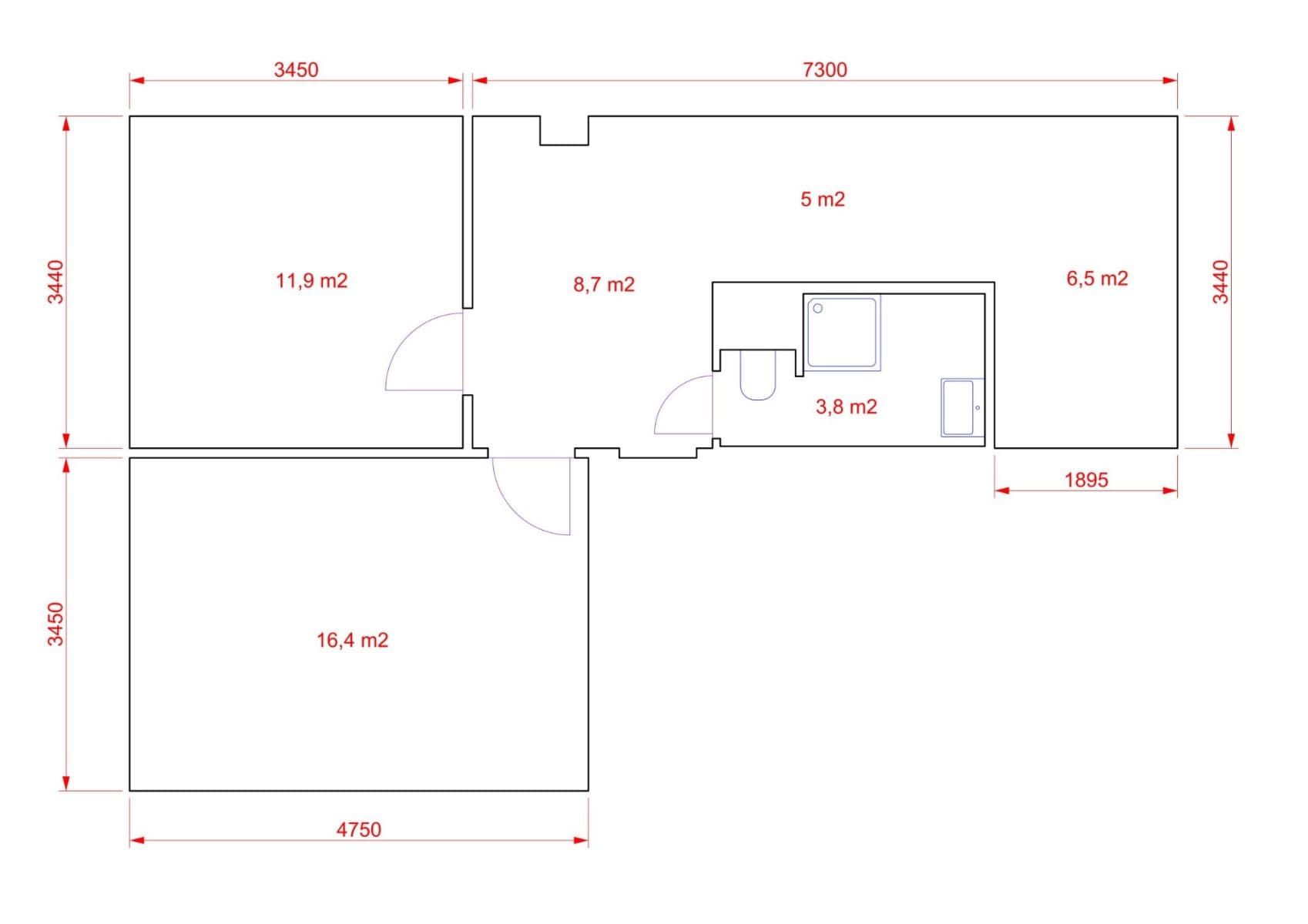
Nabízím k pronájmu nově rekonstruovaný byt 2+1 byt o rozloze 52 m², nacházející se v panelové budově se 4 podlažími. Byt je ve velmi dobrém stavu a připraven k okamžitému nastěhování. Interiér je nevybavený, což umožňuje nové majitelce nebo novému majiteli přizpůsobit prostor vlastním představám a stylu.
Dispozice bytu nabízí praktické řešení pro rodinné bydlení či mladý pár. Součástí bytu je rovněž balkon o ploše 2 m².. Pro řidiče je k dispozici venkovní parkování na přilehlé ulici.
Celková lokalita a jednoduchá dispozice panelového domu poskytují klidné a bezpečné prostředí. V případě zájmu o bližší informace či sjednání prohlídky je možné mě kontaktovat pomocí zpráv skrze komunikační platformu.
I offer for rent a newly renovated 2+1 apartment measuring 52 m², located in a panel building with 4 floors. The apartment is in excellent condition and ready for immediate move-in. The interior is unfurnished, allowing the new owner to adapt the space to their own ideas and style.
The apartment’s layout presents a practical solution for family living or a young couple. It also includes a balcony with an area of 2 m². For drivers, outdoor parking is available on the adjacent street.
The overall location and the simple layout of the panel building provide a quiet and secure environment. If you are interested in further information or in arranging a viewing, please feel free to contact me via messages through the communication platform.
Parametre nehnuteľnosti
| Dostupné od | 6. 2. 2026 |
|---|---|
| Konštrukcia budovy | Panel |
| Vybavené | Nevybavené |
| Číslo inzerátu | 988477 |
| Úžitková plocha | 52 m² |
| Stav | Veľmi dobrý |
|---|---|
| Dispozícia | 2+1 |
| Poschodie | Prízemie |
| Umiestnenie | Tichá lokalita |
| Cena za jednotku | 346 CZK / m2 |
Čo táto nehnuteľnosť ponúka?
| Balkón 2 m² |
| Parkovanie |
V okolí nehnuteľnosti nájdete

Prenájom bytuNa kovárně, Brno - Soběšice, Jihomoravský kraj- 2+kk
- 50 m²
16 000 CZK + 4 000 CZK17 000 CZK
Ušetríte 1 000 CZK



Stále hľadáte to pravé?
Nastavte si strážneho psa. Ponuky vybrané na mieru dostanete súhrnne 1× denne e-mailom. S Premium profilom máte po ruke rovno 5 strážcov a keď sa niečo objaví, informujú vás obratom.











