
Predaj bytu 3+1 • 76 m² bez realitkyStuttgart Botnang Baden-Württemberg 70195
Dobrý deň,
predávame náš krásny 3-izbový byt v Stuttgarte – Botnang. Byt sa nachádza v tichej uličke.
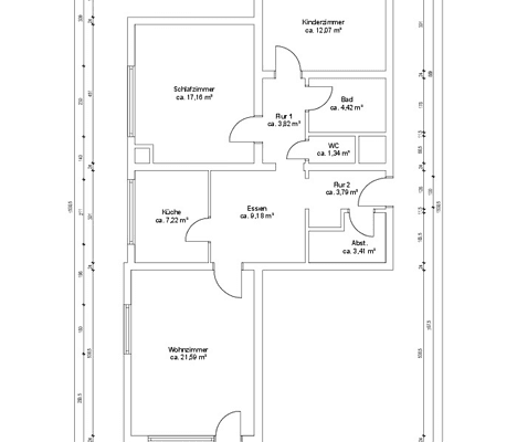
Byt sa nachádza v suteréne 8-byteneho domu a má rozlohu 76 m², rozdelených do 3 izieb.
Menšia izba (8 m²) je momentálne využívaná ako detská izba.
Spálňa s obytnou plochou 16,8 m² má dve okná smerom do zadného dvora, takže je veľmi tichá a je možné v nej spať aj s otvorenými oknami. Dva radiátory v spálni boli obnovené v roku 2025.
Kúpeľňa síce nie je obrovská, ale disponuje vaňou. Toaleta bola obnovená v roku 2025.
Obývacia a jedálenská časť má spolu šesť okien a je veľmi svetlá a preniknutá denným svetlom.
K tomu nadväzuje kuchynská linka. Kuchyňa bola inštalovaná v roku 2021 a je súčasťou predaja. Ďalej môže chladnička zostať v byte, ak si to kupujúci želá.
Osem z desiatich okien bytu bolo vymenených v roku 2023. Jedná sa o plastové okná s dvojitým zasklením. Na oknách v spálni, v detskej izbe, na malých oknách kuchyne a na okne kúpeľne sú navyše inštalované hmyzie sieťky.
Celý byt má parkety z masívneho dreva.
K domu patrí spoločná záhrada, ktorú môžu využívať všetci obyvatelia domu. V nej sa nachádza aj plocha so záhradným stolom a stoličkami, ktoré možno využiť na grilovanie počas leta.
Byt sa nachádza centrálne v Stuttgart Botnang, pár minút chôdze od mestskej trafostanice Beethovenstraße. Supermarkety, lekárne, ordinácie a materské školy sú dostupné pešo.
Predaj prebieha súkromne.
Dopyty od maklérov nie sú vítané.
Parametre nehnuteľnosti
| Vek | Nad 50 rokov |
|---|---|
| Stav | Dobrý |
| Číslo inzerátu | 987991 |
| Cena za jednotku | 5 132 € / m2 |
| Dostupné od | 15. 8. 2026 |
|---|---|
| Dispozícia | 3+1 |
| Úžitková plocha | 76 m² |
Čo táto nehnuteľnosť ponúka?
| Pivnica |
| MHD 2 minúty pešo |
V okolí nehnuteľnosti nájdete
Stále hľadáte to pravé?
Nastavte si strážneho psa. Ponuky vybrané na mieru dostanete súhrnne 1× denne e-mailom. S Premium profilom máte po ruke rovno 5 strážcov a keď sa niečo objaví, informujú vás obratom.

















