Prenájom domu 7+1 • 102 m² bez realitkyIn den Ruthen 19 - 19A, , Brandenbursko
In den Ruthen 19 - 19A, , BrandenburskoMHD 6minút pešo • ParkovanieKvalita vybavenia: vyššia až luxusná
Voľné na nastahovanie od 01.03.2026 prípadne po dohode
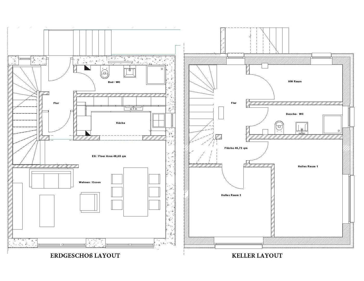
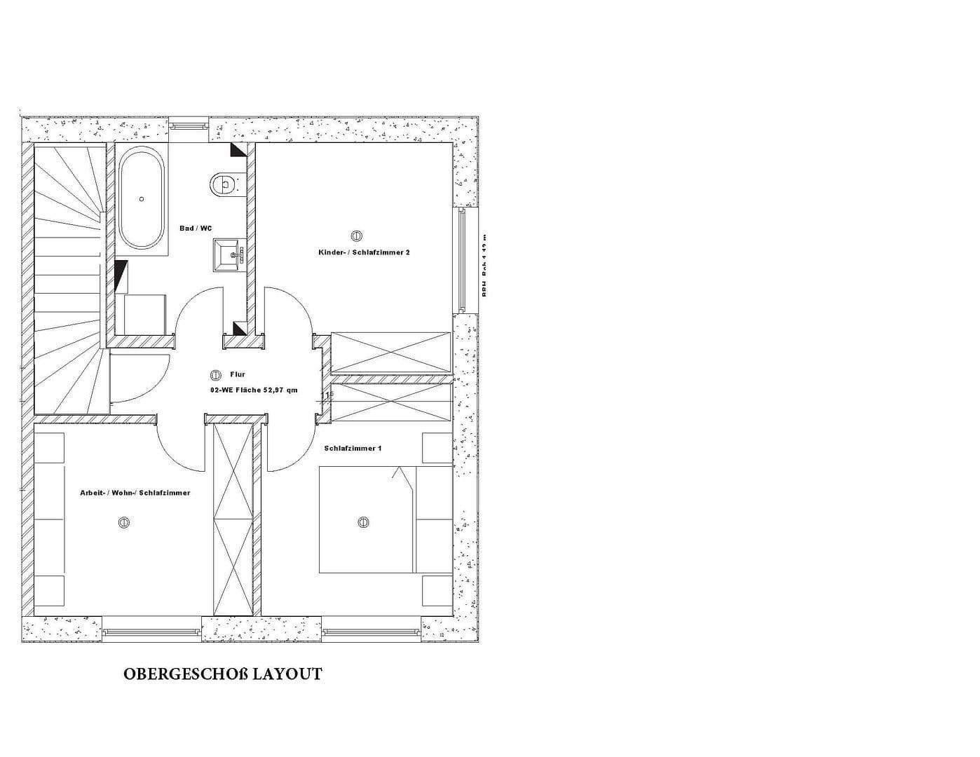
Tento pekný a pokojne situovaný novostavba, postavená v novembri 2023, je polodvojdom. Dom disponuje 4 izbami, vstavanou kuchyňou, 2 kúpeľňami a hosťovým WC so sprchou. Rozložený na 3 podlažia a s množstvom doplnkov, napríklad vykurovaných podlahovým kúrením – vrátane izieb v suteréne – ako aj s 2 ďalšími svetlými izbami (na záľuby, kanceláriu, skladovanie) a 1 domácnostnou miestnosťou v suteréne, pričom niektoré miestnosti sú už čiastočne zariadené a ponúkajú veľa šarmu pre pohodlné bývanie. Dom sa nachádza v nádhernej časti Schildow, obklopený prírodou, a ponúka pokojné, rodinne priateľské bývanie a dobré dopravné spojenie autom, vlakom aj autobusom.
Pekne upravený pozemok vás okamžite pozýva na relax, alebo si môžete užívať pokoj a krátke vzdialenosti pešo k okolitým obchodným možnostiam. Nachádza sa na slepom konci, takže bývate v pokoji, bez tranzitnej premávky, no napriek tomu centrálne, čo vám umožňuje veľa vecí dosiahnuť pešo.
Nehnuteľnosť sa nachádza v atraktívnej, zelenej štvrti rodinných domov. Ulica je slepá, a preto pokojnú. Oblasť Schildow zažíva rast na každom rohu – počet obyvateľov, stavebná činnosť, infraštruktúra, usadzovanie podnikov a podobne. K tomu prispieva aj výhodná poloha, pretože Schildow susedí priamo s Berlinom – Pankow a Reinickendorf, Glienicke/Nordbahn pri B96 a je plánovaný priamy prístup na S-Bahn.
Pre obyvateľov Berlína je Schildow bránou do prírodného parku Barnim, s romantickým kúpeľným jazerom a rozsiahlym lesným porastom. V okolí nájdete školu, tri materské školy, dve športové haly, mládežnícky klub, štyri verejné detské ihriská a oveľa viac.
Adresa nehnuteľnosti: In den Ruthen 19 – 19A, 16552 Mühlenbecker Land
Novostavba z novembra 2023 s 102 m² obytných a 47 m² užitkovej plochy (polodvojdom) disponuje:
• 1 obývačkou s jedálňou
• 3 spálňami
• 1 kuchyňou s plnohodnotnými vstavanými spotrebičmi
• 2 dodatočne vykurovanými izbami v suteréne (napr. ako záľubný priestor alebo skladovacia miestnosť)
• 2 kúpeľňami
• 1 hosťovým WC so sprchou
• 1 domácnostnou miestnosťou
Close up:
– Veľká, svetlom zaplnená obývacia izba s oknami od podlahy
– Energeticky efektívna konštrukcia
– Nízkoenergetický dom podľa štandardu KFW 55
– Okna s trojitým zasklením
– Riadený systém prívodu a odvodu vzduchu
– Moderná otvorená kuchyňa spojená s obývacou časťou
– Kvalitná vstavaná kuchyňa na 2 úrovniach (chladnička, mraziaca skriňa, varná doska, rúra, umývačka riadu, atď.)
– Kúpeľňa s oknom, vaňou aj sprchou
– Skladovacia komora
– Podlahové kúrenie s energeticky úsporným tepelným čerpadlom
– Parkovacie miesto pre automobil na oplotenom pozemku
– Optické internetové pripojenie s rýchlosťou až 1000 Mbit/s
– Vlastný záhradný priestor na využitie
– Automatický závlahový systém pre záhradu
– Kvalita vybavenia: vyššia
Poznámka:
Ide o súkromného poskytovateľa. Všetky údaje a informácie sú uvádzané bez záruky. Chyby a zmeny si vyhradzujeme právo. Vyhradzujeme si právo kedykoľvek zmeniť, aktualizovať, prepracovať alebo vymazať údaje.
Parametre nehnuteľnosti
| Vek | Nad 50 rokov |
|---|---|
| Stav | Veľmi dobrý |
| Číslo inzerátu | 987732 |
| Plocha pozemku | 579 m² |
| Cena za jednotku | 21 € / m2 |
| Dostupné od | 1. 3. 2026 |
|---|---|
| Dispozícia | 7+1 |
| Úžitková plocha | 102 m² |
| Celkové poschodia | 3 |
Čo táto nehnuteľnosť ponúka?
| Pivnica | |
| MHD 6 minút pešo |
| Parkovanie |
V okolí nehnuteľnosti nájdete
Stále hľadáte to pravé?
Nastavte si strážneho psa. Ponuky vybrané na mieru dostanete súhrnne 1× denne e-mailom. S Premium profilom máte po ruke rovno 5 strážcov a keď sa niečo objaví, informujú vás obratom.

























