
Predaj domu 4+1 • 128 m² bez realitkyBremerhaven Geestemünde-Süd Bremen 27570
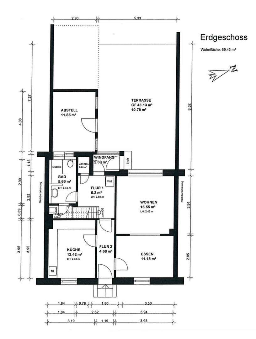
Táto zmodernizovaná radová vila v Bremerhavene spája súčasný štýl bývania na dvoch podlažiach s vysoko kvalitným vybavením, priestrannými vonkajšími priestormi a udržateľným energetickým riešením. Je ideálna pre rodiny alebo páry, ktoré hľadajú okamžite osťahovateľný dom s dostatočným priestorom v pokojnej lokalite. Na približne 127 m² obytného priestoru sú rozmiestnené päť optimalizovane navrhnutých izieb. Tri spálne v hornom podlaží poskytujú dostatočný priestor na oddych pre celú rodinu.
Komplexná rekonštrukcia v roku 2025 sa zameriava jasne na komfort bývania a energetickú efektívnosť. Medzi zlepšenia patrí použitý vinylový podlahový kryt s dreveným vzhľadom, svetlé dlaždice v kúpeľniach a biele drevené vnútorné dvere, ktoré vytvárajú príjemnú atmosféru bývania. Celému interiéru dodáva na komfort aj zmodernizovaná sprchovňa a samostatné návštevné WC.
Priestranná záhrada so slnečnou terasou je nenáročná na údržbu a vyzýva na oddych v zelene. Na pozemku o rozlohe približne 287 m² nájdu svoje miesto deti aj záhradkári, ktorí môžu realizovať rôzne nápady. Čiastočný sklep s približne 6 m² využiteľnej plochy poskytuje dodatočný úložný priestor.
Lokalita sa vyznačuje pokojným prostredím a výbornou dostupnosťou. Obchody, školy a verejná doprava sú ľahko prístupné, čo umožňuje ideálne spojené výhody pokojného bývania a dobrej infraštruktúry. Celkovo ide o premyslený balík s pevným základom, udržateľným vybavením a moderným komfortom bývania – okamžite osťahovateľný a pripravený na ďalší krok.
RMH sa nachádza v pokojnej časti Bremerhavenu, v mestskej štvrti Geestemünde. Hneď pri ulici sa nachádza skvelé ihrisko a Bad 2, ktorý slúži ako bazén.
Detské škôlky a školy sú situované priamo v bezprostrednej blízkosti.
- Zmodernizovaná radová vila s garážou
- Rok výstavby: cca 1921
- Obytná plocha: cca 126,88 m²
- Využitelná plocha: cca 18,89 m²
- Pozemková plocha: cca 288,89 m²
- Počet izieb: 4
- Tri svetlé spálne s optimálnym rozložením
- Zrekonštruovaná kúpeľňa (cca 2025)
- Podlahové krytiny: vinyl s dreveným vzhľadom a svetlé dlaždice (cca 2025)
- Náročná rekonštrukcia dokončená cca v roku 2025
- Čiastočný sklep s dodatočnou úložnou plochou
- Terasa orientovaná na slnko
- Pokojná a zároveň dobre dostupná lokalita v Bremerhavene
Dom sa predáva bez nábytku.
Prosím, žiadne dopyty od maklérov!
Parametre nehnuteľnosti
| Vek | Nad 50 rokov |
|---|---|
| Dispozícia | 4+1 |
| PENB | D - Menej hospodárne |
| Plocha pozemku | 290 m² |
| Cena za jednotku | 2 030 € / m2 |
| Stav | Dobrý |
|---|---|
| Číslo inzerátu | 987643 |
| Úžitková plocha | 128 m² |
| Celkové poschodia | 2 |
Čo táto nehnuteľnosť ponúka?
| Balkón | |
| Garáž | |
| Terasa |
| Pivnica | |
| MHD 1 minúta pešo |
V okolí nehnuteľnosti nájdete
Stále hľadáte to pravé?
Nastavte si strážneho psa. Ponuky vybrané na mieru dostanete súhrnne 1× denne e-mailom. S Premium profilom máte po ruke rovno 5 strážcov a keď sa niečo objaví, informujú vás obratom.














